Pronájem kanceláře, Ostrava, Smetanovo náměstí, 59 m2

Smetanovo náměstí, Moravská Ostrava

9 000 Kč /za měsíc Získejte výhodnou HYPOTÉKU

(+ služby 7331 Kč, provize 1 měs nájem + DPH. Kauce 2 x měs. nájem.)

Prověřené firmy v Ostravě

Informace k nemovitosti

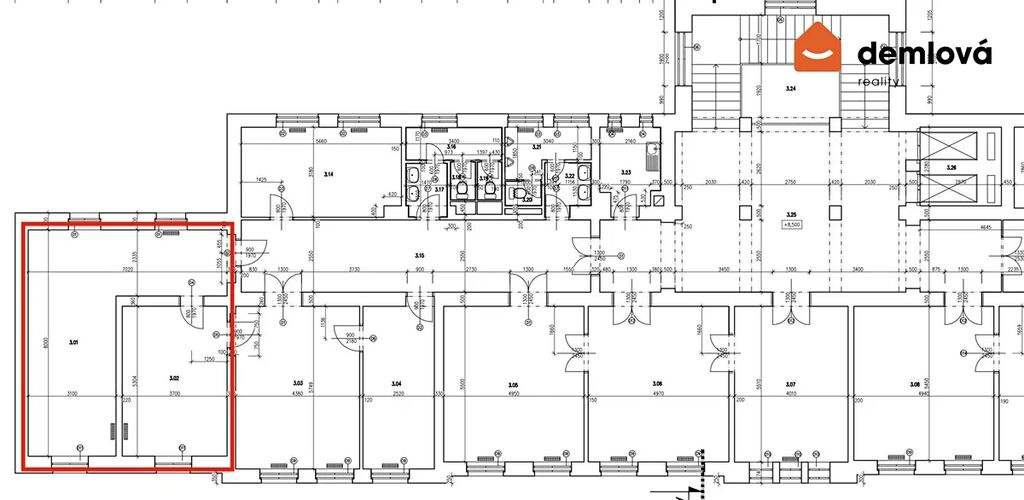
Nabízíme Vám k pronájmu atraktivní kancelářské prostory v komerční budově na Smetanově náměstí v centru Ostravy. Administrativní budova má recepci (po-pá 6-21h), přístup 24/7, každodenní úklid a dva výtahy. Celková výměra prostoru je 59 m2 a je rozdělen na 2 kanceláře (viz. půdorys ve fotogalerii). V jedné kanceláři je klimatizace. Sociální zázemí včetně kuchyňky je na chodbě u kanceláře. Kanceláře jsou zabezpečeny alarmem napojeným na PCO a kamerovým systémem. V bezprostřední blízkosti je dostatek parkovišť pro klienty. Nájem 9.000 Kč + služby 7331 Kč, provize 1 měs nájem + DPH. Kauce 2 x měs. nájem. Doporučuji prohlídku.

Parametry nemovitosti

Cena
9 000 Kč /za měsíc
Poznámka k ceně
+ služby 7331 Kč, provize 1 měs nájem + DPH. Kauce 2 x měs. nájem.
Aktualizováno
25. 11. 2025
Adresa
Smetanovo náměstí, Moravská Ostrava
ID
0197
Stavba
Cihlová
Stav objektu
Velmi dobrý
Patro
3. z 6
Vybaveno
Ne
Užitná plocha
59 m2
Zastavěná plocha
866 m2
Třída energetické náročnosti
D - Méně úsporná
Elektřina
230V
Odpad
Veřejná kanalizace
Telekomunikace
Internet
Doprava
Silnice, MHD
Voda
Vodovod
Topné těleso
Radiátory
Zdroj topení
Centrální dálkové
Výtah
Bezbarierový přístup

Kontaktovat makléře

Realitní kancelář

demlová s.r.o.

28. října 3346/91, Ostrava

Chystáte se prodat nemovitost?
Pomůžeme Vám!

Máte zájem o tuto nemovistost?

Tímto, v souladu s nařízením Evropského parlamentu a Rady (EU) 2016/679, v platném znění, prohlašuji, že mi je alespoň 16 let a uděluji tak svůj souhlas se zpracováním zadaných údajů (jméno, telefon, e-mail, ip adresa) společnosti B3 Technology, s.r.o., IČ: 07330600, se sídlem Novostavby 126/23, 435 11 Lom (správce dat), za účelem předání dotazu z tohoto formuláře Vámi vybranému inzerentovi a zpětného kontaktování mé osoby. Osobní údaje bude správce zpracovávat manuálně i automaticky přímo prostřednictvím svých zaměstnanců. Informace předané tímto formulářem budou uloženy v databázi správce maximálně po dobu 10 let. Odvolání souhlasu s uložením a zpracováním poskytnutých dat lze e-mailem na info@realitypro.eu. V případě podezření na neoprávněné použití Vámi poskytnutých údajů máte právo předat podnět k šetření Úřadu pro ochranu osobních údajů. Více informací
Chystáte se prodat nemovitost?
Pomůžeme Vám!

Inzerát si prohlédlo 0 lidí

Prodejce

Nikola Demlová

Nikola Demlová

Hlídací pes

Chcete dostávat emailem podobné nabídky pronájmu kanceláří v Ostravě?

Podobné nemovitosti