Prodej bytu 2+kk, Jimramov, náměstí Jana Karafiáta, 36 m2

náměstí Jana Karafiáta, Jimramov

2 590 000 Kč /za nemovitost HYPOTÉKA od 11 576 Kč /za měsíc
Prověřené firmy v Jimramově

Informace k bytu

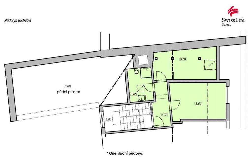
Nabízím k prodeji krásný, čistý byt o dispozici 2 + kk a o užitné ploše přibližně 36 m, který právě prošel zdařilou rekonstrukcí/výstavbou. Nachází se v podkroví menšího domu se třemi nově vytvořenými bytovými jednotkami na klidné ulici Jana Karafiáta v srdci Jimramova.

Interiér působí velmi moderně a útulně nová kuchyňská linka, el. vyhřívané podlahy, dveře, rozvody, koupelna i veškeré povrchy. Dispozice 2 + kk tohoto bytu poskytuje dostatek prostoru pro pohodlné bydlení pro jednotlivce či páry.

Dům stojí v klidné části obce s výbornou dostupností do centra i přírody. Parkování pohodlně před domem nebo přes ulici.

S bytem se prodává také podíl na zahradě za domem, která má rozlohu 378 m. Součástí domu je také menší stavení využitelné jako skladovací prostory pro jednotlivé byty.

Jimramov nabízí vše potřebné pro pohodlný život:
základní a mateřskou školu
obchody s potravinami
poštu, lékárnu a zdravotní středisko
restaurace a kavárny
krásné historické centrum, řeku a mnoho možností pro volnočasové aktivity

Pro více informací či domluvení prohlídky mě neváhejte kontaktovat.

Parametry bytu

Cena
2 590 000 Kč /za nemovitost Spočítat hypotéku
Aktualizováno
24. 11. 2025
Adresa
náměstí Jana Karafiáta, Jimramov
ID
24797
Stavba
Smíšená
Stav objektu
Dobrý
Patro
3. z 3
Typ objektu
Patrový
Vlastnictví
Osobní
Užitná plocha
36 m2
Podlahová plocha
36 m2
Třída energetické náročnosti
G - Mimořádně nehospodárná
Topení
Lokální elektrické
Voda
Vodovod
Sklep
Bezbarierový přístup
Parkování

Kontaktovat makléře

Máte zájem o tento byt?

Tímto, v souladu s nařízením Evropského parlamentu a Rady (EU) 2016/679, v platném znění, prohlašuji, že mi je alespoň 16 let a uděluji tak svůj souhlas se zpracováním zadaných údajů (jméno, telefon, e-mail, ip adresa) společnosti B3 Technology, s.r.o., IČ: 07330600, se sídlem Novostavby 126/23, 435 11 Lom (správce dat), za účelem předání dotazu z tohoto formuláře Vámi vybranému inzerentovi a zpětného kontaktování mé osoby. Osobní údaje bude správce zpracovávat manuálně i automaticky přímo prostřednictvím svých zaměstnanců. Informace předané tímto formulářem budou uloženy v databázi správce maximálně po dobu 10 let. Odvolání souhlasu s uložením a zpracováním poskytnutých dat lze e-mailem na info@realitypro.eu. V případě podezření na neoprávněné použití Vámi poskytnutých údajů máte právo předat podnět k šetření Úřadu pro ochranu osobních údajů. Více informací
Chystáte se prodat nemovitost?
Pomůžeme Vám!

Inzerát si prohlédlo 0 lidí

Prodejce

Bc. Jiří Máca

Bc. Jiří Máca

Hlídací pes

Chcete dostávat emailem podobné nabídky prodeje bytů 2+kk v Jimramově?

Podobné nemovitosti