Prodej bytu 3+kk, Přísnotice, Žabčická, 99 m2

Žabčická, Přísnotice

8 600 000 Kč /za nemovitost HYPOTÉKA od 38 437 Kč /za měsíc

(včetně provize, včetně právního servisu)

Prověřené firmy v Přísnoticích

Informace k bytu

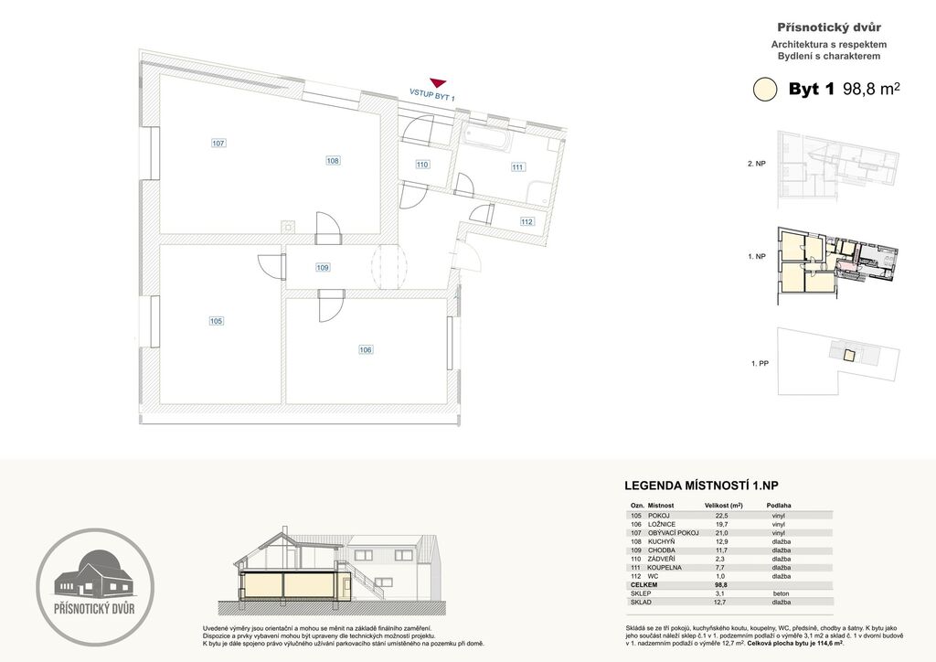
Rádi Vám představujeme moderní projekt Přísnotický dvůr, který nabízí tři ojedinělé bytové jednotky v malebné obci Přísnotice na jižní Moravě. Dům s pouhými třemi byty vytváří klidné, komorní prostředí a nachází se v centru obce, při ulici Žabčická – Přibická. Díky výborné dostupnosti do Brna a Židlochovic jde o místo, které dlouhodobě přitahuje zájemce o kvalitní, tiché a pohodlné bydlení. Každý z bytů nese jméno inspirované historií obce – Bartoloměj, Florián a Urban. Nabízená jednotka Urban je situována v přízemí domu.

Byt o dispozici 3+KK nabízí užitnou plochu 98,8 m² s orientací na SV–J–Z. Dominantou bytu je velkorysý obývací pokoj s kuchyní a jídelní částí, který poskytuje dostatek prostoru pro rodinný život i pohodlné zázemí pro setkávání. Součástí bytu je také sklep 3,1 m², venkovní sklad 12,7 m² a parkovací místo, to vše ve výlučném užívání. Celková užitná plocha činí 114,6 m² + parkovací stání. Velký sklad je ideální na pneumatiky, nosiče na auto, sportovní vybavení a díky velikosti se sem bez problémů vejde i motorka.
Projekt je navržen s důrazem na kvalitní provedení, energetickou úspornost a především vysoký akustický komfort, stropy mají skladbu bezmála 0,5 metru, i příčky mezi byty i uvnitř jednotky zajišťují pocit soukromí a minimální přenos hluku. Tiché prostředí a vysoký standard provedení tak poskytují komfort srovnatelný s moderní novostavbou vyšší kategorie.
V kupní ceně je zahrnuto kompletní dokončení s možností volby dekorů obkladů, dlažeb, podlah v dekoru dřeva i dveřního kování. Spolupracujeme s ověřenými kuchyňskými studii, která mohou připravit návrh kuchyně (pozn. kuchyň není v ceně).

Hlavní přednosti bytu Urban:
• Elektrické podlahové vytápění s WI-FI termostaty
• Příprava na krbová kamna
• Izolační trojskla s výbornými tepelnými i akustickými vlastnostmi
• Energetická třída B – nízké náklady na provoz
• SPC minerální podlahy v dekoru dřeva
• Luxusní dveře DANA 2100 mm ve standardu
• Zdivo YTONG Lambda 375 mm
• Koupelna s vanou i sprchovým koutem, WC odděleně
• Kovové brány na míru, příprava na žaluzie

Přísnotice - ideální pro rodiny i aktivní život. Najdete zde MŠ i ZŠ, knihovnu, kulturní akce, sportovní aktivity, fotbal, lehkou atletiku, aktivní Klub Lhéta, zahrádkáře i dobrovolné hasiče. Pro širší občanskou vybavenost obyvatelé běžně využívají nedaleké Židlochovice, kde se nachází supermarkety, lékaři, služby i restaurace.
Dopravní dostupnost je skvělá: ze stanice Žabčice - pravidelná vlaková linka S3 na Brno-Hl. nádraží (cca 20–30 minut) a BUS linka IDS JMK 520 spojuje Přísnotice se Žabčicemi, Židlochovicemi i Vranovicemi.

Stavba je dokončena z 85 %, s plánovaným dokončením na jaro až léto 2026. Standardní financování 20 % / 30 % / 30 % / 20 % je možné upravit dle individuální situace klienta, aby byl celý proces co nejpohodlnější.

Byt Urban nabízí kombinaci prostoru, kvality, klidu a možnosti dotvořit si interiér podle vlastních představ.
Kontaktujte nás pro více informací nebo si domluvte prohlídku.

Parametry bytu

Cena
8 600 000 Kč /za nemovitost Spočítat hypotéku
Poznámka k ceně
včetně provize, včetně právního servisu
Aktualizováno
23. 11. 2025
Adresa
Žabčická, Přísnotice
ID
202533
Stavba
Cihlová
Stav objektu
Novostavba
Patro
1. z 2
Druh objektu
Rohový
Lokalita objektu
Centrum obce
Vlastnictví
Osobní
Užitná plocha
99 m2
Podlahová plocha
115 m2
Třída energetické náročnosti
B - Velmi úsporná
Ukazatel energetické náročnosti
61.5 kWh/m2 za rok
Elektřina
230V, 400V
Odpad
Veřejná kanalizace
Topení
Lokální tuhá paliva, Jiné
Komunikace
Dlážděná, Asfaltová
Telekomunikace
Telefon, Internet, Kabelová televize
Doprava
Vlak, Dálnice, Silnice, MHD, Autobus
Voda
Vodovod
Sklep
Parkování
Nízkoenergetický

Kontaktovat makléře

Máte zájem o tento byt?

Tímto, v souladu s nařízením Evropského parlamentu a Rady (EU) 2016/679, v platném znění, prohlašuji, že mi je alespoň 16 let a uděluji tak svůj souhlas se zpracováním zadaných údajů (jméno, telefon, e-mail, ip adresa) společnosti B3 Technology, s.r.o., IČ: 07330600, se sídlem Novostavby 126/23, 435 11 Lom (správce dat), za účelem předání dotazu z tohoto formuláře Vámi vybranému inzerentovi a zpětného kontaktování mé osoby. Osobní údaje bude správce zpracovávat manuálně i automaticky přímo prostřednictvím svých zaměstnanců. Informace předané tímto formulářem budou uloženy v databázi správce maximálně po dobu 10 let. Odvolání souhlasu s uložením a zpracováním poskytnutých dat lze e-mailem na info@realitypro.eu. V případě podezření na neoprávněné použití Vámi poskytnutých údajů máte právo předat podnět k šetření Úřadu pro ochranu osobních údajů. Více informací
Chystáte se prodat nemovitost?
Pomůžeme Vám!

Inzerát si prohlédlo 0 lidí

Prodejce

Boris Tonev

Boris Tonev

Hlídací pes

Chcete dostávat emailem podobné nabídky prodeje bytů 3+kk v Přísnoticích?

Podobné nemovitosti