Pronájem kanceláře, Brno, Kobližná, 57 m2 (ID: 2739398)

Kobližná, Brno-město

9 900 Kč /za měsíc Získejte výhodnou HYPOTÉKU

(+ zálohy na energie a služby 8.800,-Kč/měs. + DPH)

Prověřené firmy v Brně

Informace k nemovitosti

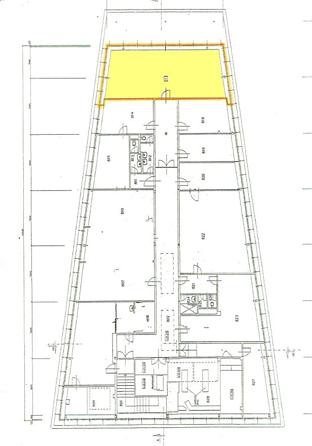
Nabízíme k pronájmu kancelář o rozloze 57 m2 v 7. patře OD Centrum na ulici Kobližná v Brně. Kancelář má okna s výhledem do tří stran - do Malinovského náměstí, do ulice Kobližná a Jánská. Sociální zázemí sousedí s touto kanceláří. Je zde pánské WC, dámské WC a denní místnost s kuchyňkou, které užívají jen někteří z nájemců kanceláří v 7. patře. . V roce 2016 byly v domě vybudovány dva nové moderní výtahy. V OD Centrum je již nově nájemcům umožněn přístup do prostor každý den i včetně víkendů, a to od 7.00 hod až do 24.00 hod. V přízemí venkovní části domu z ulice Kobližná je možnost pronájmu vývěsky – nerezové prosklené vitrínky a to za nájemné 1.000,- Kč/měsíc + DPH, eventuálně 1.100,- Kč/měsíc osvobozených od DPH. Toto ale není podmínkou pronájmu kanceláře.
Prostory jsou vytápěny radiátory, které mají instalovány měřiče tepla.

Nájemce nabízí možnost odkoupení stávajícího vybavení interiéru, části nebo celku kancelářského nábytku.
Prostory budou volné k pronájmu od 1.2.2026, eventuálně i v dřívějším termínu po dohodě se stávajícím nájemcem.

PENB nebyl dodán, uvádíme tedy G.

Pro více informací nebo sjednání prohlídky je Vám k dispozici realitní makléřka


Cena:


- Měsíční nájemné 9.900,- Kč + DPH, eventuálně 10.800,- Kč v případě neplátce DPH

- Měsíční zálohy za služby a energie 10.252,- Kč včetně DPH (4.400,- Kč + 21 % DPH + 4.400,- Kč + 12 % DPH).

- Jistota 1 x měsíční nájemné včetně záloh za energie

- Provize za služby realitní makléřky

Parametry nemovitosti

Cena
9 900 Kč /za měsíc
Poznámka k ceně
+ zálohy na energie a služby 8.800,-Kč/měs. + DPH
Aktualizováno
21. 11. 2025
Adresa
Kobližná, Brno-město
ID
SR521
Stavba
Skeletová
Stav objektu
Dobrý
Patro
7.
Vybaveno
Ano
Lokalita objektu
Centrum obce
Užitná plocha
57 m2
Třída energetické náročnosti
G - Mimořádně nehospodárná
Elektřina
230V
Telekomunikace
Internet
Doprava
MHD
Topné těleso
Radiátory
Zdroj topení
Ústřední dálkové
Výtah
Bezbarierový přístup

Kontaktovat makléře

Realitní kancelář

Ludmila Lejsková

Lidická 700/19, Brno, Veveří

Chystáte se prodat nemovitost?
Pomůžeme Vám!

Máte zájem o tuto nemovistost?

Tímto, v souladu s nařízením Evropského parlamentu a Rady (EU) 2016/679, v platném znění, prohlašuji, že mi je alespoň 16 let a uděluji tak svůj souhlas se zpracováním zadaných údajů (jméno, telefon, e-mail, ip adresa) společnosti B3 Technology, s.r.o., IČ: 07330600, se sídlem Novostavby 126/23, 435 11 Lom (správce dat), za účelem předání dotazu z tohoto formuláře Vámi vybranému inzerentovi a zpětného kontaktování mé osoby. Osobní údaje bude správce zpracovávat manuálně i automaticky přímo prostřednictvím svých zaměstnanců. Informace předané tímto formulářem budou uloženy v databázi správce maximálně po dobu 10 let. Odvolání souhlasu s uložením a zpracováním poskytnutých dat lze e-mailem na info@realitypro.eu. V případě podezření na neoprávněné použití Vámi poskytnutých údajů máte právo předat podnět k šetření Úřadu pro ochranu osobních údajů. Více informací
Chystáte se prodat nemovitost?
Pomůžeme Vám!

Inzerát si prohlédlo 1 lidí

Prodejce

Ludmila Lejsková

Ludmila Lejsková

Hlídací pes

Chcete dostávat emailem podobné nabídky pronájmu kanceláří v Brně?

Podobné nemovitosti