Prodej bytu 3+kk, Praha - Holešovice, Dobrovského, 70 m2 (ID: 2737880)

Dobrovského, Praha, Holešovice

13 500 000 Kč /za nemovitost HYPOTÉKA od 60 337 Kč /za měsíc
Prověřené firmy v Praze 7

Stěhovací služby

Výkup a prodej starého nábytku

Informace k bytu

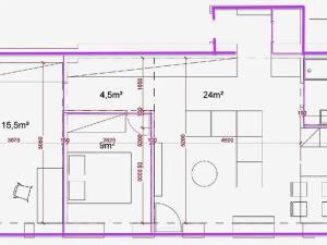
V přímém zastoupení majitele nabízíme k prodeji jedinečný byt o dispozici 3+kk v žádané lokalitě Prahy, v oblasti Letné. Tento byt, který se nachází v sedmém podlaží, prošel kompletní rekonstrukcí a nabízí moderní bydlení s nádechem elegance. Velmi pohodlná užitná plocha 70 m² poskytuje dostatek prostoru pro komfortní život.

Byt je koncipován jako jednopodlažní a všechna jeho okna směřují jihozápadním směrem. Jeho součástí je balkon o rozloze cca 3 m², odkud je krásný výhled na okolí. Byt je o dispozici 3+kk, má vlastní plynový kotel, na podlahách jsou položeny dřevěné parkety, dlažba a koberec. Součástí bytu je plně vybavená kuchyňská linka s el. troubou, varnou deskou, digestoří, mikrovlnkou, myčkou a lednicí s mrazákem. Je zde dostatek úložných prostor, vestavěné skříně jsou v chodbě i v ložnici. Do předsíně byl vyhotoven botník na míru a knihovna do obývacího pokoje.

K bytu dále náleží sklep v suterénu domu, který disponuje nadstandardní plochou cca 12 m2.

Byt se nachází ve velmi žádané a vyhledávané lokalitě s dostatkem zeleně a veškerou občanskou vybaveností. Letenské sady se nacházejí pouhé 2 minuty od domu, v bezprostředním okolí naleznete též mnoho zajímavých restaurací a kaváren. Vynikající dopravní spojení, zastávky tramvají Letenské náměstí nebo Kamenická se nacházejí 5 min.od domu.

Prohlídky jsou možné po předchozí domluvě. Pro více informací o této nemovitosti nebo sjednání prohlídky nás prosím kontaktujte, rádi Vám pomůžeme.

Parametry bytu

Cena
13 500 000 Kč /za nemovitost Spočítat hypotéku
Aktualizováno
20. 11. 2025
Adresa
Dobrovského, Praha, Holešovice
ID
202519
Stavba
Cihlová
Stav objektu
Po rekonstrukci
Patro
7.
Vlastnictví
Osobní
Užitná plocha
70 m2
Balkon

Kontaktovat makléře

Máte zájem o tento byt?

Tímto, v souladu s nařízením Evropského parlamentu a Rady (EU) 2016/679, v platném znění, prohlašuji, že mi je alespoň 16 let a uděluji tak svůj souhlas se zpracováním zadaných údajů (jméno, telefon, e-mail, ip adresa) společnosti B3 Technology, s.r.o., IČ: 07330600, se sídlem Novostavby 126/23, 435 11 Lom (správce dat), za účelem předání dotazu z tohoto formuláře Vámi vybranému inzerentovi a zpětného kontaktování mé osoby. Osobní údaje bude správce zpracovávat manuálně i automaticky přímo prostřednictvím svých zaměstnanců. Informace předané tímto formulářem budou uloženy v databázi správce maximálně po dobu 10 let. Odvolání souhlasu s uložením a zpracováním poskytnutých dat lze e-mailem na info@realitypro.eu. V případě podezření na neoprávněné použití Vámi poskytnutých údajů máte právo předat podnět k šetření Úřadu pro ochranu osobních údajů. Více informací
Chystáte se prodat nemovitost?
Pomůžeme Vám!

Inzerát si prohlédlo 1 lidí

Prodejce

Mgr. Barbora Šťovíčková

Mgr. Barbora Šťovíčková

Hlídací pes

Chcete dostávat emailem podobné nabídky prodeje bytů 3+kk v Praze 7?

Podobné nemovitosti