Pronájem obchodního prostoru, Hodonín, Cihlářská čtvrť, 61 m2

Cihlářská čtvrť, Hodonín

12 000 Kč /za měsíc Získejte výhodnou HYPOTÉKU

(+ zálohy na energie)

Prověřené firmy v Hodoníně

Informace k nemovitosti

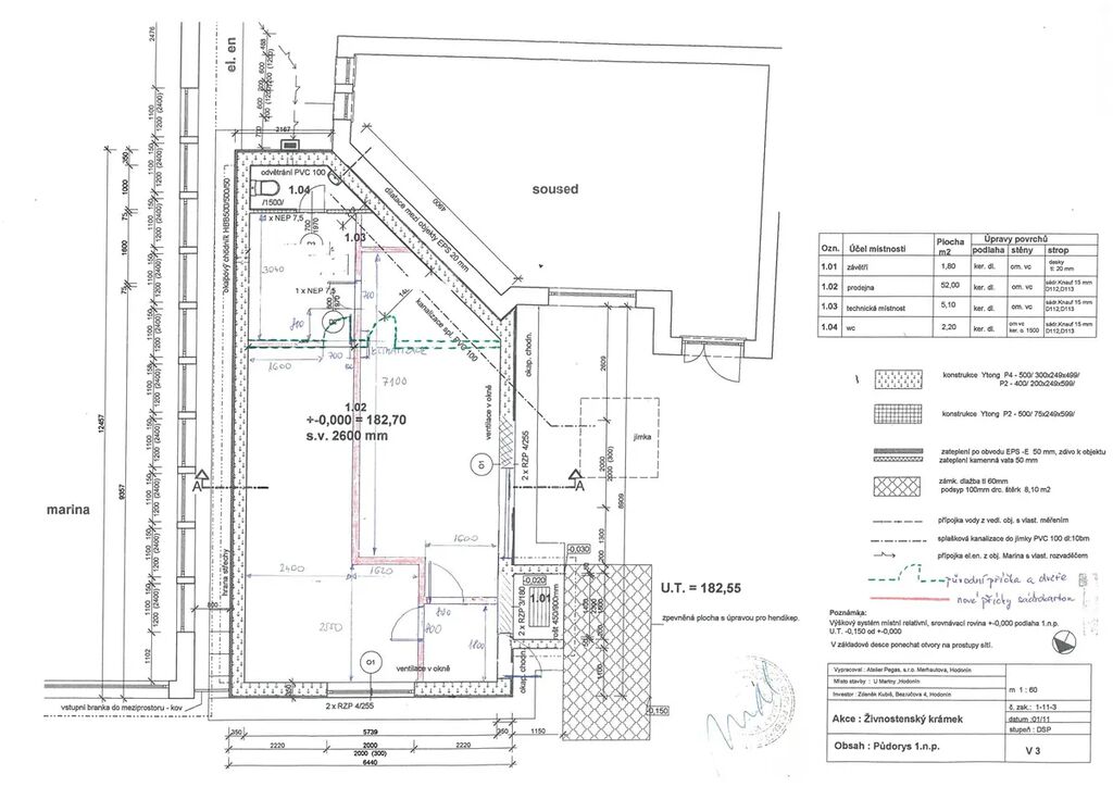
Pronájem nebytového prostoru v Hodoníně na ulici Cihlářská čtvrť v katastru nemovitostí vedený, jako zastavěná plocha a nádvoří o výměře 109 m2, obchod.

Kolaudace prostoru – obchodu v roce 2016. V roce 2023 vydaný souhlas se změnou užívání na provozování kosmetických služeb.

Celková užitná plocha 61 m2, bezbariérový vstup přímo z ulice, velká plastová okna (výlohy).

Dispozice: zádveří 1,8 m2, prodejní plocha 52 m2 (rozdělena sádrokartonovou příčkou na 2 prostory) technická místnost (kuchyňka se skladem) 5,1 m2, WC s umyvadlem 2,2 m2.

Vybavení:
plastové vstupní dveře i okna (dvojskla) + parapety, rovná plechová střecha, povrch podlah dlažba, kovové zárubně, elektřina 220/380 (vlastní elektroměr, nízký a vysoký tarif, MND), voda (vlastní vodoměr, bojler na ohřev teplé vody, Vodárny a kanalizace Hodonín), plyn zaveden není, odpadní jímka (septik) společný s vedlejším nevyužívaným nebytovým prostorem (obchod – vývoz 1 ročně, kosmetika – vývoz 4x ročně), vytápění – klimatizace + stropní elektrické přímotopy, internet, osvětlení – obchodní prostor zářivky, v ostatních prostorách nástěnné světlo, 3x interiérové dveře.

Prostor je vyklizený, ihned k dispozici.

Majitelé požadují kauci ve výši 15.000,-Kč, která bude vrácena po skončená nájmu v případě, že prostor nebude poškozen a nebude dluh na nájemném a energiích.

Parametry nemovitosti

Cena
12 000 Kč /za měsíc
Poznámka k ceně
+ zálohy na energie
Aktualizováno
19. 11. 2025
Adresa
Cihlářská čtvrť, Hodonín
ID
53246
Stavba
Cihlová
Stav objektu
Dobrý
Užitná plocha
61 m2
Třída energetické náročnosti
G - Mimořádně nehospodárná

Kontaktovat makléře

Máte zájem o tuto nemovistost?

Tímto, v souladu s nařízením Evropského parlamentu a Rady (EU) 2016/679, v platném znění, prohlašuji, že mi je alespoň 16 let a uděluji tak svůj souhlas se zpracováním zadaných údajů (jméno, telefon, e-mail, ip adresa) společnosti B3 Technology, s.r.o., IČ: 07330600, se sídlem Novostavby 126/23, 435 11 Lom (správce dat), za účelem předání dotazu z tohoto formuláře Vámi vybranému inzerentovi a zpětného kontaktování mé osoby. Osobní údaje bude správce zpracovávat manuálně i automaticky přímo prostřednictvím svých zaměstnanců. Informace předané tímto formulářem budou uloženy v databázi správce maximálně po dobu 10 let. Odvolání souhlasu s uložením a zpracováním poskytnutých dat lze e-mailem na info@realitypro.eu. V případě podezření na neoprávněné použití Vámi poskytnutých údajů máte právo předat podnět k šetření Úřadu pro ochranu osobních údajů. Více informací
Chystáte se prodat nemovitost?
Pomůžeme Vám!

Inzerát si prohlédlo 6 lidí

Prodejce

Nikola Charvátová

Nikola Charvátová

Hlídací pes

Chcete dostávat emailem podobné nabídky pronájmu obchodních prostor v Hodoníně?

Podobné nemovitosti