Prodej činžovního domu, Děčín, U Tvrze, 2711 m2

U Tvrze, Děčín VI-Letná

25 500 000 Kč /za nemovitost HYPOTÉKA od 113 970 Kč /za měsíc
Prověřené firmy v Děčíně

Okna a dveře

Rekonstrukce

Zámečnické práce

Informace k nemovitosti

Multifunkční objekt v městské části Děčín VI Letná, ulice U Tvrze, je ideální investicí, přinášející stabilní a pravidelný příjem z pronájmu. Součástí objektu je 17 bytových jednotek, kancelářské prostory, skladové prostory, garáže a venkovní parkovací stání. Objekt bytového domu a garáží je dlouhodobě plně pronajatý s celkovým měsíčním výnosem 131.972, Kč. Z toho výnos z pronájmu bytů činí 104 518, Kč a výnos z pronájmu nebytových prostor, garáží a parkování činí 27.454, Kč. Další možností navýšení výnosu z pronájmu je dosud nerealizovaný pronájem individuálního venkovního parkovacího stání na vlastních pozemcích. K hornímu pozemku je připraven projekt na parkovací stání pro 10 osobních aut, další parkovací stání je možné vybudovat i na spodním pozemku.
Předmětem prodeje je pozemek p.č. 2889/40 zastavěná plocha a nádvoří o výměře 1.659 m2, součástí je stavba bytového domu se zastavěnou plochou 478 m2, pozemek p.č. 2807/4 zastavěná plocha a nádvoří o výměře 12 m2 a pozemek p.č. 2889/53 ostatní plocha o výměře 1.040 m2.
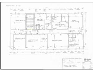
Dispozice bytového domu:
I. PP kancelářské a skladové prostory, celkem 7 místností
I. NP b.j. č. 1, gasoniéra 18 m2,b.j.č. 2,2+kk,36 m2,b.j.č. 3,2+kk,34 m2, b.j.č. 4,2+kk,37 m2,b.j.č. 5,2+kk,37 m2, b.j.č.6,1+1,35 m2, b.j.č.7,1+1,36 m2, b.j. č.17 (bezbariérový s vlastním vchodem),3+1,97 m2
II. NP b.j.č.8,4+kk,112 m2, b.j.č.9,2+kk,35 m2,b.j.č.10,3+kk,53 m2,b.j.č.11, 2+kk,33 m2,b.j.č.12,2+kk,34 m2, b.j.č.13,2+kk,36 m2,b.j.č.14,1+1,37 m2
III. NP b.j.č.15,3+1,90 m2,b.j.č.16,3+1,73 m2, dále 7 kanceláří.
Vedlejší stavby: celkem 4 zděné garáže, z toho jedna určena pro větší auto (dodávka).
Byty jsou vybaveny standardními kuchyňskými linkami se spotřebiči, sociálním zařízením a základními podlahovými krytinami.
Teplo a OTUV dodáváno společností Termo Dc, a.s., v domě je výměníková stanice. Radiátory jsou opatřeny měřidly spotřeby tepla a odečty probíhají dálkově. Každý byt má vlastní měřidlo spotřeby teplé a studené vody. Spotřeba elektrické energie je v jednotlivých bytech a nebytových prostorách měřena podružnými elektroměry, náklady na spotřebu elektřiny jsou u bytů účtovány v měsíčních zálohách, u nebytových prostor měsíčně paušálně.
Stavba dokončena v roce 2008 jako administrativní budova s bytem správce. V letech 2014 2016 byly kanceláře přestavěny na byty. Stavba je panelový skelet s vnitřními lehčími konstrukcemi. Objekt je zateplen polystyrenem. Střecha byla v roce 2024 kompletně opravena, včetně zateplení a odkanalizování. Jsou osazena plastová okna a dveře. Celý objekt, včetně venkovního prostoru, je zabezpečen kamerovým systémem se záznamem.
Máme k dispozici projektovou a stavební dokumentaci, evidenci nájemních smluv s vyúčtováním služeb, kompletní dokumentaci ročních vyúčtování spotřeby energií (vodné a stočné, elektrická energie, teplo a OTUV), revizní zprávy, pojistnou smlouvu a výši daně z nemovitostí. V případě vážného zájmu o koupi objektu Vám rádi poskytneme kompletní info.

Parametry nemovitosti

Cena
25 500 000 Kč /za nemovitost Spočítat hypotéku
Aktualizováno
19. 11. 2025
Adresa
U Tvrze, Děčín VI-Letná
ID
3143
Stavba
Panelová
Stav objektu
Velmi dobrý
Vybaveno
Ne
Užitná plocha
2711 m2
Zastavěná plocha
475 m2
Podlahová plocha
2711 m2
Třída energetické náročnosti
G - Mimořádně nehospodárná
Elektřina
230V
Odpad
Veřejná kanalizace
Komunikace
Asfaltová
Telekomunikace
Telefon, Internet, Kabelová televize
Doprava
Vlak, Silnice, MHD, Autobus
Voda
Vodovod
Topné těleso
Radiátory
Zdroj topení
Ústřední dálkové
Garáž
Parkování

Kontaktovat makléře

Realitní kancelář

REALITY ŠIROKÝ

Masarykovo náměstí 2/2, Děčín

Chystáte se prodat nemovitost?
Pomůžeme Vám!

Máte zájem o tuto nemovistost?

Tímto, v souladu s nařízením Evropského parlamentu a Rady (EU) 2016/679, v platném znění, prohlašuji, že mi je alespoň 16 let a uděluji tak svůj souhlas se zpracováním zadaných údajů (jméno, telefon, e-mail, ip adresa) společnosti B3 Technology, s.r.o., IČ: 07330600, se sídlem Novostavby 126/23, 435 11 Lom (správce dat), za účelem předání dotazu z tohoto formuláře Vámi vybranému inzerentovi a zpětného kontaktování mé osoby. Osobní údaje bude správce zpracovávat manuálně i automaticky přímo prostřednictvím svých zaměstnanců. Informace předané tímto formulářem budou uloženy v databázi správce maximálně po dobu 10 let. Odvolání souhlasu s uložením a zpracováním poskytnutých dat lze e-mailem na info@realitypro.eu. V případě podezření na neoprávněné použití Vámi poskytnutých údajů máte právo předat podnět k šetření Úřadu pro ochranu osobních údajů. Více informací
Chystáte se prodat nemovitost?
Pomůžeme Vám!

Inzerát si prohlédlo 0 lidí

Prodejce

Lenka Behinová

Lenka Behinová

Hlídací pes

Chcete dostávat emailem podobné nabídky prodeje činžovních domů v Děčíně?

Podobné nemovitosti