Prodej bytu 4+1, Most, K. H. Máchy, 86 m2

K. H. Máchy, Most

3 290 000 Kč /za nemovitost HYPOTÉKA od 14 704 Kč /za měsíc
Prověřené firmy v Mostě

Okna a dveře

Rekonstrukce

Zámečnické práce

Informace k bytu

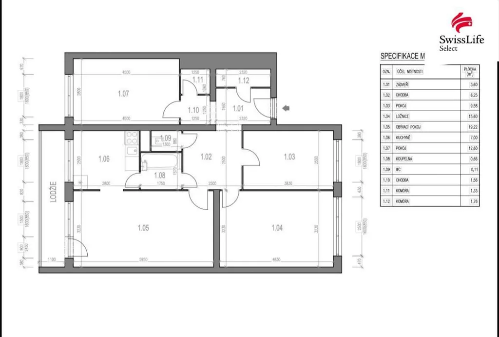
Nabízím vám jedinečnou příležitost ke koupi nadstandardně prostorného bytu 4+1 o velikosti 86 m, který se nachází v 8. nadzemním podlaží udržovaného panelového domu v klidné a vyhledávané části Mostu ulice K. H. Máchy. Byt s družstevním vlastnictvím nabízí skvělou kombinaci velkorysé dispozice, dokonalého soukromí a příjemných výhledů do okolí.
Samotný byt je v pečlivě udržovaném stavu a umožňuje novému majiteli dotvořit si interiér podle vlastních představ i nároků na komfort. Díky čtyřem samostatným pokojům je ideální pro větší rodinu, pracující z domova, nebo každého, kdo ocení dostatek prostoru a klid.
Dům je panelové konstrukce, je vybaven moderním výtahovým systémem a je napojen na dálkové vytápění, které zajišťuje stabilně nízké měsíční náklady. Celá lokalita je velmi dobře občansky vybavena školy, školky, obchody, hřiště, zeleň i dostupná městská doprava jsou v docházkové vzdálenosti. Díky umístění domu v širším centru města máte zároveň výbornou dostupnost kamkoliv, ale stále s pocitem klidného bydlení.
Tento byt je skvělou volbou jak pro vlastní rodinné bydlení, tak i pro investiční záměr o velké byty v této lokalitě je dlouhodobě vysoký zájem.
Prodejní cena: 3 290 000 Kč
Pokud hledáte prostorný, klidný a flexibilní byt s výbornou adresou, tenhle je přesně pro vás. Rád vám ho osobně představím.V případě více zájemců o nemovitost, si majitel vyhrazuje právo prodat nemovitost zájemci s nejvyšší nabídkou.

Parametry bytu

Cena
3 290 000 Kč /za nemovitost Spočítat hypotéku
Aktualizováno
18. 11. 2025
Adresa
K. H. Máchy, Most
ID
24808
Stavba
Panelová
Stav objektu
Dobrý
Patro
8. z 8
Vybaveno
Ne
Typ objektu
Patrový
Vlastnictví
Družstevní
Užitná plocha
86 m2
Podlahová plocha
86 m2
Třída energetické náročnosti
G - Mimořádně nehospodárná
Elektřina
120V
Plyn
Plynovod
Odpad
Veřejná kanalizace
Topení
Ústřední dálkové
Komunikace
Asfaltová
Telekomunikace
Internet, Kabelová televize, Kabelové rozvody
Doprava
Vlak, Silnice, MHD, Autobus
Voda
Vodovod
Sklep
Lodžie
Výtah
Bezbarierový přístup
Převod do OV

Kontaktovat makléře

Máte zájem o tento byt?

Tímto, v souladu s nařízením Evropského parlamentu a Rady (EU) 2016/679, v platném znění, prohlašuji, že mi je alespoň 16 let a uděluji tak svůj souhlas se zpracováním zadaných údajů (jméno, telefon, e-mail, ip adresa) společnosti B3 Technology, s.r.o., IČ: 07330600, se sídlem Novostavby 126/23, 435 11 Lom (správce dat), za účelem předání dotazu z tohoto formuláře Vámi vybranému inzerentovi a zpětného kontaktování mé osoby. Osobní údaje bude správce zpracovávat manuálně i automaticky přímo prostřednictvím svých zaměstnanců. Informace předané tímto formulářem budou uloženy v databázi správce maximálně po dobu 10 let. Odvolání souhlasu s uložením a zpracováním poskytnutých dat lze e-mailem na info@realitypro.eu. V případě podezření na neoprávněné použití Vámi poskytnutých údajů máte právo předat podnět k šetření Úřadu pro ochranu osobních údajů. Více informací
Chystáte se prodat nemovitost?
Pomůžeme Vám!

Inzerát si prohlédlo 0 lidí

Prodejce

Jiří Liesner

Jiří Liesner

Hlídací pes

Chcete dostávat emailem podobné nabídky prodeje bytů 4+1 v Mostě?

Podobné nemovitosti