Pronájem bytu 2+kk, Praha - Modřany, Československého exilu, 50 m2 (ID: 2735276)

Československého exilu, Modřany - Praha 12

24 900 Kč /za měsíc Získejte výhodnou HYPOTÉKU

(vratná jistota, náklady na bydlení 6.200 Kč, poplatek za podnájem)

Prověřené firmy v Praze 4

Stěhovací služby

Výkup a prodej starého nábytku

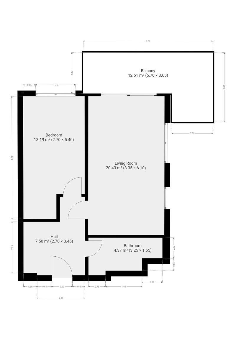
Informace k bytu

K dlouhodobému pronájmu nabízíme světlý a moderní byt 2+kk v klidné a vyhledávané lokalitě Praha 12 – Modřany. Byt o celkové ploše 50 m² se nachází ve 4. patře novostavby s výtahem. Součástí bytu je balkon s příjemným výhledem a praktický sklep.

Byt je nezařízený, což umožňuje přizpůsobit si interiér podle vlastního vkusu. Kuchyně je vybavena lednicí s mrazákem, elektrickou troubou, indukční varnou deskou, digestoří a myčkou. Obytná část je prostorná a světlá – ideální pro sedací soupravu i jídelní kout. Z obývacího pokoje je přímý vstup na balkon. Samostatný pokoj může sloužit jako ložnice. Koupelna je vybavena sprchovým koutem, umyvadlem a toaletou.

V bezprostředním okolí najdete kompletní občanskou vybavenost – supermarket Kaufland, lékařskou péči, restaurace, cyklostezky i další možnosti sportovního vyžití. Pro volný čas je ideální nedaleká Modřanská rokle, vzdálená jen pár minut chůze. Dopravní dostupnost je výborná – poblíž je autobusová i tramvajová zastávka, díky čemuž se snadno dostanete do centra i do dalších částí Prahy.

Byt je k nastěhování ihned.

Energetická třída: G (průkaz nedodán).

Parametry bytu

Cena
24 900 Kč /za měsíc
Poznámka k ceně
vratná jistota, náklady na bydlení 6.200 Kč, poplatek za podnájem
Aktualizováno
17. 11. 2025
Adresa
Československého exilu, Modřany - Praha 12
ID
N6953
Stavba
Cihlová
Stav objektu
Novostavba
Patro
4. z 15
Vybaveno
Ne
Typ objektu
Patrový
Lokalita objektu
Klidná část obce
Vlastnictví
Osobní
Užitná plocha
50 m2
Podlahová plocha
50 m2
Třída energetické náročnosti
G - Mimořádně nehospodárná
Elektřina
230V
Topení
Ústřední dálkové
Doprava
Silnice, MHD, Autobus
Balkon
Sklep
Výtah
Bezbarierový přístup

Kontaktovat makléře

Máte zájem o tento byt?

Tímto, v souladu s nařízením Evropského parlamentu a Rady (EU) 2016/679, v platném znění, prohlašuji, že mi je alespoň 16 let a uděluji tak svůj souhlas se zpracováním zadaných údajů (jméno, telefon, e-mail, ip adresa) společnosti B3 Technology, s.r.o., IČ: 07330600, se sídlem Novostavby 126/23, 435 11 Lom (správce dat), za účelem předání dotazu z tohoto formuláře Vámi vybranému inzerentovi a zpětného kontaktování mé osoby. Osobní údaje bude správce zpracovávat manuálně i automaticky přímo prostřednictvím svých zaměstnanců. Informace předané tímto formulářem budou uloženy v databázi správce maximálně po dobu 10 let. Odvolání souhlasu s uložením a zpracováním poskytnutých dat lze e-mailem na info@realitypro.eu. V případě podezření na neoprávněné použití Vámi poskytnutých údajů máte právo předat podnět k šetření Úřadu pro ochranu osobních údajů. Více informací
Chystáte se prodat nemovitost?
Pomůžeme Vám!

Inzerát si prohlédlo 1 lidí

Prodejce

Miloslava Kačerová

Miloslava Kačerová

Hlídací pes

Chcete dostávat emailem podobné nabídky pronájmu bytů 2+kk v Praze 4?

Podobné nemovitosti