Prodej bytu 2+kk, Brno, Na pískové cestě, 47 m2

Na Pískové cestě, Brno, Bohunice

6 959 000 Kč /za nemovitost HYPOTÉKA od 31 103 Kč /za měsíc
Prověřené firmy v Brně

Informace k bytu

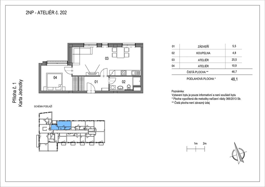
ATELIÉR 202 v novém EDISON HOUSE

Hledáte klidné a moderní bydlení, které vás bude hýčkat?
Ateliér 202 v Edison House nabízí 48,1 m² prakticky navrženého prostoru, kde se každý metr využívá naplno.

V ceně ateliéru máte kompletní Loxone Smart Home systém:

- chytrá ventilace udržuje ideální kvalitu vzduchu
- automatické osvětlení reaguje na denní dobu
- stínění sledující polohu slunce
- chytré řízení teploty, které vám ohřeje byt, než dorazíte
- chytrý ventil, který vypne přívod vody, když vyteče pračka.

A starat se o vás bude spousta dalších funkcí Domov, které šetří čas i energii a přizpůsobí se Vám pro pohodlný život.

Edison House je celý postavený ve standardu PENB A: mimořádně úsporná budova.

Má nízké provozní náklady a stabilní hodnotu do budoucna
Stojí v Bohunicích – lokalitě, která kombinuje pohodlí, dostupnost i jistotu dlouhodobé hodnoty. Ideální pro vlastní bydlení i chytrou investici. Dům už je dostavěný a zbývá pár posledních jednotek.
Poptávka po chytrém bydlení stoupá. Koupí bytu v Edisonu kupujete byt, o který bude i do budoucna vysoký zájem a lépe si bude držet svoji cenu.

Má ale jednu nevýhodu: chytré byty rychle mizí.
Tohle je náš poslední byt s cenou pod 7 MKč.
Ozvěte se, než budou všechny prodané!

Parametry bytu

Cena
6 959 000 Kč /za nemovitost Spočítat hypotéku
Aktualizováno
14. 2. 2026
Adresa
Na Pískové cestě, Brno, Bohunice
ID
11202501
Stavba
Cihlová
Stav objektu
Novostavba
Patro
2. z 4
Vybaveno
Ne
Vlastnictví
Osobní
Užitná plocha
47 m2
Třída energetické náročnosti
A - Mimořádně úsporná
Ukazatel energetické náročnosti
58 kWh/m2 za rok
Výtah
Bezbarierový přístup

Kontaktovat makléře

Realitní kancelář

Estarea

Libušina třída 826/23, Brno

Chystáte se prodat nemovitost?
Pomůžeme Vám!

Máte zájem o tento byt?

Tímto, v souladu s nařízením Evropského parlamentu a Rady (EU) 2016/679, v platném znění, prohlašuji, že mi je alespoň 16 let a uděluji tak svůj souhlas se zpracováním zadaných údajů (jméno, telefon, e-mail, ip adresa) společnosti B3 Technology, s.r.o., IČ: 07330600, se sídlem Novostavby 126/23, 435 11 Lom (správce dat), za účelem předání dotazu z tohoto formuláře Vámi vybranému inzerentovi a zpětného kontaktování mé osoby. Osobní údaje bude správce zpracovávat manuálně i automaticky přímo prostřednictvím svých zaměstnanců. Informace předané tímto formulářem budou uloženy v databázi správce maximálně po dobu 10 let. Odvolání souhlasu s uložením a zpracováním poskytnutých dat lze e-mailem na info@realitypro.eu. V případě podezření na neoprávněné použití Vámi poskytnutých údajů máte právo předat podnět k šetření Úřadu pro ochranu osobních údajů. Více informací
Chystáte se prodat nemovitost?
Pomůžeme Vám!

Inzerát si prohlédlo 8 lidí

Prodejce

Ing. Jan Veselý

Ing. Jan Veselý

Hlídací pes

Chcete dostávat emailem podobné nabídky prodeje bytů 2+kk v Brně?

Podobné nemovitosti