Prodej bytu 4+kk, Písek, Dolní, 76 m2 (ID: 2734244)

Dolní, Písek

8 200 000 Kč /za nemovitost HYPOTÉKA od 36 649 Kč /za měsíc
Prověřené firmy v Písku

Výkup a prodej starého nábytku

Informace k bytu

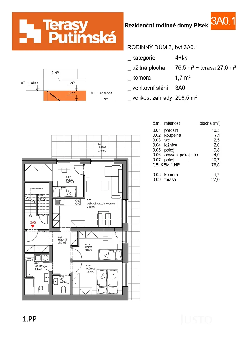
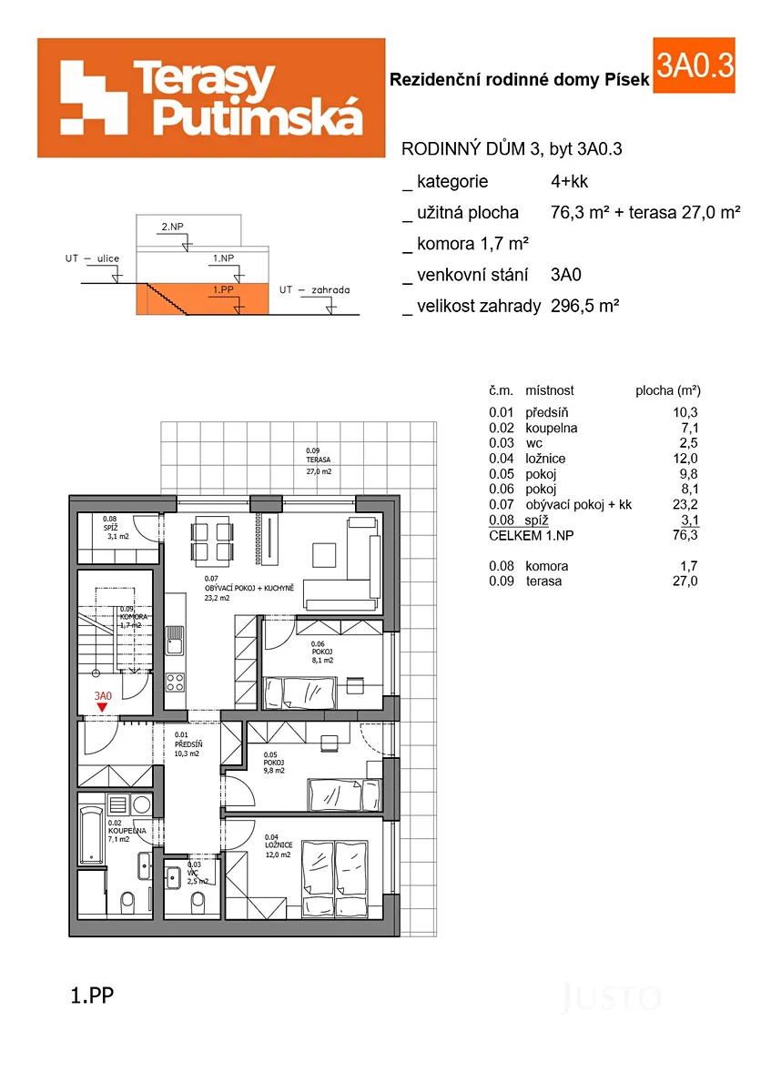
Novostavba – moderní byt ve výstavbě | 76,3 m² + terasa 34,5m² + komora 1, 7 m² + zahrada 296,5 m² + parkovací stání

V zastoupení developera nabízíme k prodeji moderní bytovou jednotku o dispozici 4+kk, která vzniká v rámci projektu Terasy Písek – II. etapa (Putimská Vysoká).

Byt se nachází v 1. nadzemním podlaží domu, vstup do domu je z úrovně 2. nadzemního podlaží, do bytu tedy vedou jedny schody dolů.

Dispozice a výměry:
podlahová plocha bytu: 76,3 m²
terasa: 27 m²
komora: 1,7 m²
zahrada: 296,5 m²
venkovní parkovací stání v ceně

Byt je koncipován s důrazem na praktické využití prostoru, světlo a přímý kontakt s exteriérem. V případě tohoto bytu bylo myšleno na početnější rodinu nebo majitele, který potřebuje více místností. Architekt navrhl dvě možnosti s dispozicí 4+kk a jednu variantu bytu 3+kk, kterou můžete změnit na 4+kk v průběhu času.

Z obývací části je vstup na prostornou terasu orientovanou do zeleně, která dál navazuje na vlastní zahradu.

Standard zahrnuje moderní provedení koupelny, přípravu pro kuchyňskou linku dle výběru budoucího vlastníka, podlahové vytápění a kvalitní stavební materiály odpovídající současným energetickým a technickým požadavkům.

Lokalita – Putimská Vysoká:
Putimská Vysoká představuje jednu z nejžádanějších rezidenčních částí Písku – tiché, bezpečné a plně etablované místo pro klidné rodinné bydlení.
Zástavbu zde tvoří převážně nízkopodlažní rodinné domy a menší bytové domy, které jsou obklopeny vzrostlou zelení.
Lokalita nabízí výjimečnou kombinaci klidu, soukromí a dostupnosti města – do centra Písku se dostanete autem během pár minut, v pěší či cyklistické vzdálenosti se nachází supermarkety, zastávky MHD, vlakové i autobusové nádraží, školy i příroda.

Projekt Terasy Písek – kvalita s lokálním podpisem:
Projekt navazuje na úspěšnou první etapu Terasy K Lipám, která byla dokončená v roce 2022 na Hradišti. Za výstavbou stojí renomovaná písecká stavební společnost, která klade důraz na precizní zpracování, kvalitní materiály a dlouhodobou hodnotu nemovitostí.
Byty jsou navrženy tak, aby spojovaly moderní architekturu s příjemnou městskou atmosférou a blízkostí přírody.

Shrnutí hlavních výhod:
novostavba ve výstavbě, možnost úprav dle přání klienta
prostorná terasa s přímou návazností na zahradu, na zahradě je možné zbudovat zahradní domek, pro uložení všeho potřebného
parkovací stání v ceně
moderní energeticky úsporné bydlení
oblíbená a klidná lokalita Putimská Vysoká

Parametry bytu

Cena
8 200 000 Kč /za nemovitost Spočítat hypotéku
Aktualizováno
15. 11. 2025
Adresa
Dolní, Písek
ID
J12091
Stavba
Cihlová
Stav objektu
Ve výstavbě
Patro
1.
Lokalita objektu
Klidná část obce
Vlastnictví
Osobní
Užitná plocha
76 m2
Podlahová plocha
104 m2
Plocha zahrady
296 m2
Plyn
Plynovod
Odpad
Veřejná kanalizace
Topení
Ústřední plynové
Voda
Vodovod
Topné těleso
Radiátory
Zdroj topení
Plynový kondenzační kotel
Zdroj teplé vody
Plynový kondenzační kotel
Terasa
Výtah
Parkování

Kontaktovat makléře

Máte zájem o tento byt?

Tímto, v souladu s nařízením Evropského parlamentu a Rady (EU) 2016/679, v platném znění, prohlašuji, že mi je alespoň 16 let a uděluji tak svůj souhlas se zpracováním zadaných údajů (jméno, telefon, e-mail, ip adresa) společnosti B3 Technology, s.r.o., IČ: 07330600, se sídlem Novostavby 126/23, 435 11 Lom (správce dat), za účelem předání dotazu z tohoto formuláře Vámi vybranému inzerentovi a zpětného kontaktování mé osoby. Osobní údaje bude správce zpracovávat manuálně i automaticky přímo prostřednictvím svých zaměstnanců. Informace předané tímto formulářem budou uloženy v databázi správce maximálně po dobu 10 let. Odvolání souhlasu s uložením a zpracováním poskytnutých dat lze e-mailem na info@realitypro.eu. V případě podezření na neoprávněné použití Vámi poskytnutých údajů máte právo předat podnět k šetření Úřadu pro ochranu osobních údajů. Více informací
Chystáte se prodat nemovitost?
Pomůžeme Vám!

Inzerát si prohlédlo 14 lidí

Prodejce

Bc. Ilona Vazačová

Bc. Ilona Vazačová

Hlídací pes

Chcete dostávat emailem podobné nabídky prodeje bytů 4+kk v Písku?

Podobné nemovitosti