Pronájem bytu 3+kk, Praha - Vinohrady, Mánesova, 80 m2

Mánesova, Praha, Vinohrady

35 000 Kč /za měsíc Získejte výhodnou HYPOTÉKU
Prověřené firmy v Praze 2

Stěhovací služby

Výkup a prodej starého nábytku

Informace k bytu

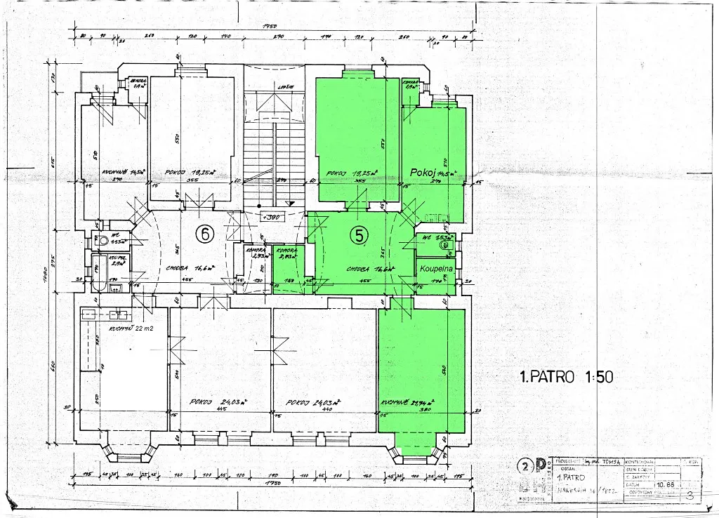
Nabízíme na pronájem luxusní, krásný, světlý, zrekonstruovaný byt 3+kk, 80 m2, s přístupem na menší balkón u schodiště, Mánesova ulice, Praha 2, Vinohrady. Byt se nachází ve druhém podlaží klasického činžovního domu z roku 1911 s výtahem, po kompletní rekonstrukci. Byt má tři neprůchozí pokoje, chodbu, koupelnu s umyvadlem a sprchovým koutem, WC, komoru a walk-in closet . V jednom z pokojů je vkusná bílá kuchyňská linka s lednicí, mrazákem, varnou deskou, elektrickou troubou, myčkou a mikrovlnou troubou. Na podlaze jsou parkety a dlažba. Vytápění a ohřev teplé vody zajišťuje plynový kotel. V teplém počasí je možné využít udržovaný dvorek k příjemnému posezení či grilování. Jedná se o velmi příjemnou lokalitu s výbornou dostupností do centra, v okolí je veškerá občanská vybavenost. Do Riegrových sadů pár minut chůze, 400 metrů na metro A ( náměstí Míru a Jiřího z Poděbrad ). Vhodné i k dlouhodobému pronájmu.
Volné od 15. února.
K bytu je možnost pronajmout sklepní koj za 300 Kč/měs.
Srdečně vás zveme na prohlídku.
Nájem 35.000,-Kč
Poplatky ( voda, odpad, výtah, úklid/osvětlení domu, roční čistění kotle, komínu ) 600 Kč/měs./osoba )
Kauce dva nájmy včetně záloh na služby
Elektřina a plyn bude převedena na nájemce.
Provize 37.000,-Kč

Parametry bytu

Cena
35 000 Kč /za měsíc
Aktualizováno
13. 11. 2025
Adresa
Mánesova, Praha, Vinohrady
Stavba
Cihlová
Stav objektu
Velmi dobrý
Patro
2.
Vybaveno
Ne
Vlastnictví
Osobní
Užitná plocha
80 m2
Sklep
Výtah

Kontaktovat makléře

Realitní kancelář

Eva Mikešková

Horní 1474/1, Praha, Nusle

Chystáte se prodat nemovitost?
Pomůžeme Vám!

Máte zájem o tento byt?

Tímto, v souladu s nařízením Evropského parlamentu a Rady (EU) 2016/679, v platném znění, prohlašuji, že mi je alespoň 16 let a uděluji tak svůj souhlas se zpracováním zadaných údajů (jméno, telefon, e-mail, ip adresa) společnosti B3 Technology, s.r.o., IČ: 07330600, se sídlem Novostavby 126/23, 435 11 Lom (správce dat), za účelem předání dotazu z tohoto formuláře Vámi vybranému inzerentovi a zpětného kontaktování mé osoby. Osobní údaje bude správce zpracovávat manuálně i automaticky přímo prostřednictvím svých zaměstnanců. Informace předané tímto formulářem budou uloženy v databázi správce maximálně po dobu 10 let. Odvolání souhlasu s uložením a zpracováním poskytnutých dat lze e-mailem na info@realitypro.eu. V případě podezření na neoprávněné použití Vámi poskytnutých údajů máte právo předat podnět k šetření Úřadu pro ochranu osobních údajů. Více informací
Chystáte se prodat nemovitost?
Pomůžeme Vám!

Inzerát si prohlédlo 1 lidí

Prodejce

Eva Mikešková

Eva Mikešková

Hlídací pes

Chcete dostávat emailem podobné nabídky pronájmu bytů 3+kk v Praze 2?

Podobné nemovitosti