Pronájem bytu 4+1, Ústí nad Labem, SNP, 82 m2

SNP, Ústí nad Labem-centrum

17 500 Kč /za měsíc Získejte výhodnou HYPOTÉKU

(Elektřina se převádí na nájemce)

Prověřené firmy v Ústí nad Labem

Okna a dveře

Rekonstrukce

Zámečnické práce

Informace k bytu

Možné termíny prohlídek jsou 14.11. od 13:00 do 17:30. Kontaktujte mě prosím prioritně e-mailem.
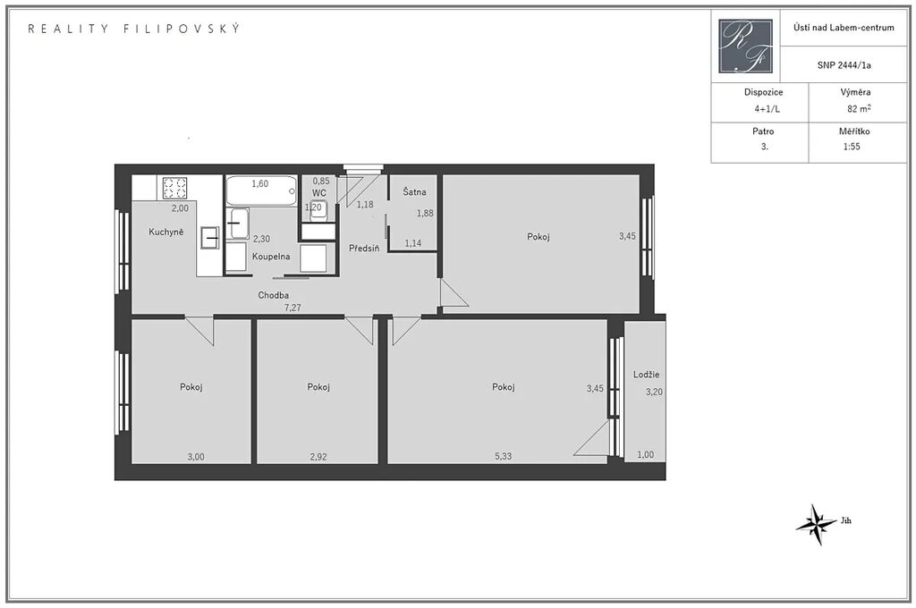
Dovoluji si Vám nabídnout pronájem velmi pěkného bytu 4+1 s lodžií, který se nachází ve 3. patře nízkopodlažního panelového domu s výtahem

Ulice SNP je velmi žádanou ústeckou adresou, kam se budete určitě rádi vracet a kde se Vám zaručeně podaří vybudovat skutečný domov. V blízkosti se nachází veškerá občanská vybavenost, včetně dvou oblíbených základních škol, MŠ, marketů a Masarykovy nemocnice. Vše je dostupné do deseti minut chůze či tři stanice MHD, do centra města dojdete pěšky za deset minut.

Byt prošel zdařilou rekonstrukcí. Součástí vybavení je kuchyňská linka se spotřebiči včetně myčky nádobí i lednice. Koupelna je vybavena automatickou pračkou a sušičkou a jistě oceníte úložné prostory v ložnici, pokoji a na chodbě. Velkou výhodou je také šatna oddělená posuvnými dveřmi. K bytu samozřejmě náleží sklep. Perfektní je dostatečně velká lodžie a k dispozici je i sklad v mezipatře.

Jedná se o jedinečnou příležitost, jak získat krásné a klidné bydlení se skvělou dostupností do centra města za přijatelnou cenu.

Nájemné činí 17 500 Kč/měs., poplatky 4 500 Kč měs., zálohy na elektřinu se převádějí na nájemce. Kauce 25 000 Kč, provize RK 15 000 Kč

Budu se těšit na setkání s Vámi.

Parametry bytu

Cena
17 500 Kč /za měsíc
Poznámka k ceně
Elektřina se převádí na nájemce
Náklady na bydlení
4500
Aktualizováno
10. 11. 2025
Adresa
SNP, Ústí nad Labem-centrum
ID
624
Stavba
Panelová
Stav objektu
Po rekonstrukci
Patro
4.
Vlastnictví
Osobní
Užitná plocha
82 m2
Třída energetické náročnosti
D - Méně úsporná
Odpad
Veřejná kanalizace
Topné těleso
Radiátory, Přímotop, Infrapanel
Zdroj topení
Centrální dálkové, Pára s výměníkem, Akumulační kamna
Zdroj teplé vody
Centrální dálkový ohřev
Sklep
Lodžie

Kontaktovat makléře

Máte zájem o tento byt?

Tímto, v souladu s nařízením Evropského parlamentu a Rady (EU) 2016/679, v platném znění, prohlašuji, že mi je alespoň 16 let a uděluji tak svůj souhlas se zpracováním zadaných údajů (jméno, telefon, e-mail, ip adresa) společnosti B3 Technology, s.r.o., IČ: 07330600, se sídlem Novostavby 126/23, 435 11 Lom (správce dat), za účelem předání dotazu z tohoto formuláře Vámi vybranému inzerentovi a zpětného kontaktování mé osoby. Osobní údaje bude správce zpracovávat manuálně i automaticky přímo prostřednictvím svých zaměstnanců. Informace předané tímto formulářem budou uloženy v databázi správce maximálně po dobu 10 let. Odvolání souhlasu s uložením a zpracováním poskytnutých dat lze e-mailem na info@realitypro.eu. V případě podezření na neoprávněné použití Vámi poskytnutých údajů máte právo předat podnět k šetření Úřadu pro ochranu osobních údajů. Více informací
Chystáte se prodat nemovitost?
Pomůžeme Vám!

Inzerát si prohlédlo 1 lidí

Prodejce

Marek Filipovský - certifikovaný obchodník s nemovitostmi

Marek Filipovský - certifikovaný obchodník s nemovitostmi

Hlídací pes

Chcete dostávat emailem podobné nabídky pronájmu bytů 4+1 v Ústí nad Labem?

Podobné nemovitosti