Pronájem bytu 2+kk, Litomyšl, Komenského nám., 73 m2

Komenského nám., Litomyšl-Město

14 900 Kč /za měsíc Získejte výhodnou HYPOTÉKU

(+ energie, peněžitá jistota 2 nájmy)

Prověřené firmy v Litomyšli

Informace k bytu

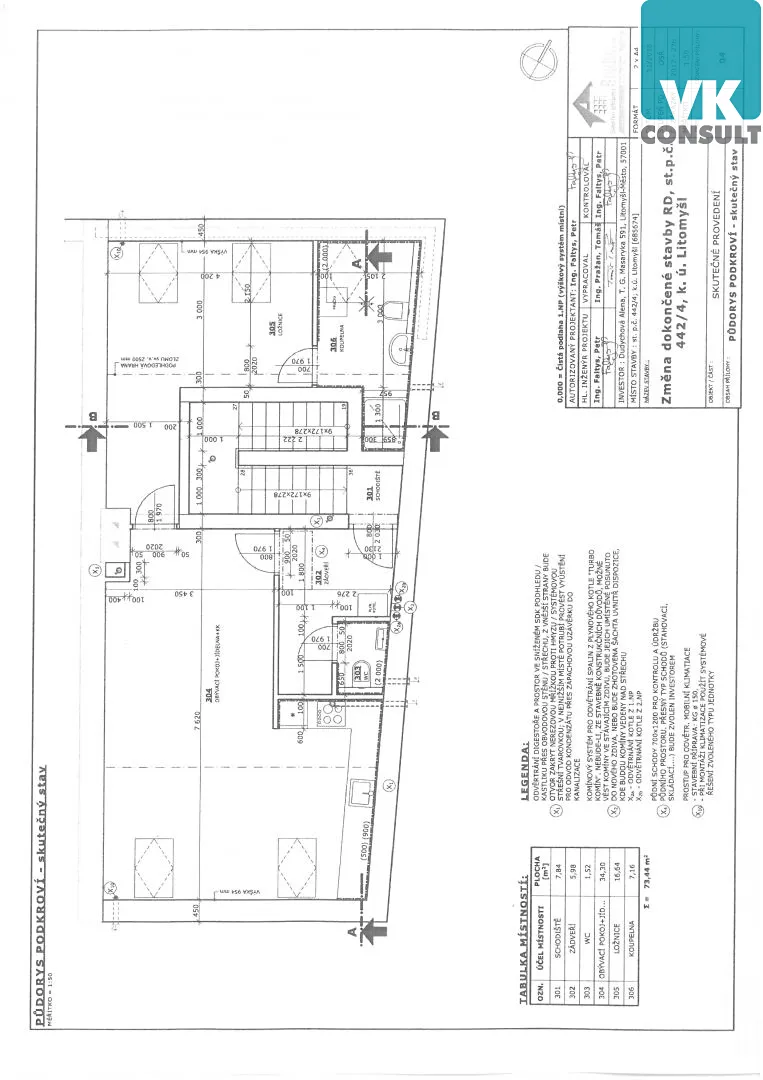
Nabízíme Vám k pronájmu podkrovní byt 2+kk (73 m2) ve III. NP na Komenského náměstí v Litomyšli. Dispozice: kuchyňský kout se spotřebiči (el. trouba, sklokeramická deska, digestoř, dřez, lednička s mrazničkou) a navazující jídelnou, pokoj, koupelna s WC, samostatné WC pro hosty, předsíň. Podlahové vytápění vlastním kotlem. K bytu náleží sklepní kóje v I.PP. Vstup do domu z Komenského náměstí, parkování dle možností v okolí domu. Atraktivní lokalita přímo v centru města. Peněžitá jistota ve výši 2x nájemné a provize RK ve výši 1x nájemné + DPH - na straně budoucího nájemce. Nájem na dobu určitou 1 roku s možností prodloužení. Elektřina a plyn budou placeny zálohově - nízké náklady. K užívání dohodou - předpoklad od 01.12.2025. ENB C/92 kWh/(m2.rok)

Parametry bytu

Cena
14 900 Kč /za měsíc
Poznámka k ceně
+ energie, peněžitá jistota 2 nájmy
Aktualizováno
10. 11. 2025
Adresa
Komenského nám., Litomyšl-Město
ID
1896
Stavba
Cihlová
Stav objektu
Velmi dobrý
Patro
3. z 3
Vybaveno
Ano
Lokalita objektu
Centrum obce
Vlastnictví
Osobní
Užitná plocha
73 m2
Podlahová plocha
73 m2
Třída energetické náročnosti
C - Úsporná
Ukazatel energetické náročnosti
92 kWh/m2 za rok
Topení
Ústřední plynové
Topné těleso
Radiátory
Zdroj topení
Plynový kondenzační kotel
Zdroj teplé vody
Plynový kondenzační kotel
Sklep

Kontaktovat makléře

Máte zájem o tento byt?

Tímto, v souladu s nařízením Evropského parlamentu a Rady (EU) 2016/679, v platném znění, prohlašuji, že mi je alespoň 16 let a uděluji tak svůj souhlas se zpracováním zadaných údajů (jméno, telefon, e-mail, ip adresa) společnosti B3 Technology, s.r.o., IČ: 07330600, se sídlem Novostavby 126/23, 435 11 Lom (správce dat), za účelem předání dotazu z tohoto formuláře Vámi vybranému inzerentovi a zpětného kontaktování mé osoby. Osobní údaje bude správce zpracovávat manuálně i automaticky přímo prostřednictvím svých zaměstnanců. Informace předané tímto formulářem budou uloženy v databázi správce maximálně po dobu 10 let. Odvolání souhlasu s uložením a zpracováním poskytnutých dat lze e-mailem na info@realitypro.eu. V případě podezření na neoprávněné použití Vámi poskytnutých údajů máte právo předat podnět k šetření Úřadu pro ochranu osobních údajů. Více informací
Chystáte se prodat nemovitost?
Pomůžeme Vám!

Inzerát si prohlédlo 1 lidí

Prodejce

Lenka Lorencová

Lenka Lorencová

Hlídací pes

Chcete dostávat emailem podobné nabídky pronájmu bytů 2+kk v Litomyšli?

Podobné nemovitosti