Prodej bytu 3+kk, Praha - Vinohrady, Balbínova, 75 m2

Balbínova, Praha, Vinohrady

11 980 000 Kč /za nemovitost HYPOTÉKA od 53 543 Kč /za měsíc
Prověřené firmy v Praze 2

Stěhovací služby

Výkup a prodej starého nábytku

Informace k bytu

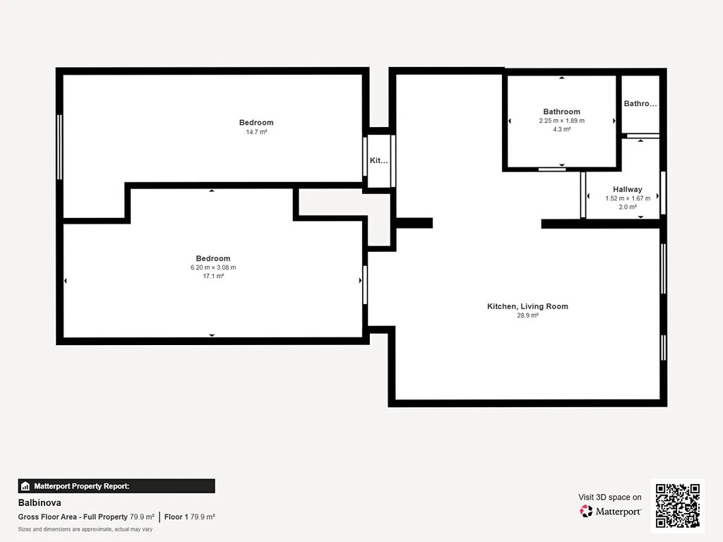
Prodej světlého bytu 3+kk o velikosti cca 75 m² ve 4. NP s výtahem, v žádané lokalitě Praha 2 – Vinohrady, ul. Balbínova. Byt po rekonstrukci (nové rozvody, okna), zachovalé parkety, vysoké stropy 3,3 m, neprůchozí pokoje a jihozápadní orientace. Skvělá dostupnost — pěšky Václavské náměstí, Nám. Míru i I. P. Pavlova. Vytápění a ohřev plynovým kotlem, nízké provozní náklady.
Výhody:
• prestižní lokalita Vinohrad
• výtah v domě
• světlý byt orientovaný na jihozápad
• neprůchozí pokoje, zachovalé parkety + vysoké stropy, pěší dostupnost centra
Ukazatel energetické náročnosti : G ( v tuto chvíli probíhá vypracování PENB, údaj bude aktualizován).

Parametry bytu

Cena
11 980 000 Kč /za nemovitost Spočítat hypotéku
Aktualizováno
10. 11. 2025
Adresa
Balbínova, Praha, Vinohrady
ID
Bal1
Stavba
Cihlová
Stav objektu
Velmi dobrý
Patro
4.
Vlastnictví
Osobní
Užitná plocha
75 m2

Kontaktovat makléře

Máte zájem o tento byt?

Tímto, v souladu s nařízením Evropského parlamentu a Rady (EU) 2016/679, v platném znění, prohlašuji, že mi je alespoň 16 let a uděluji tak svůj souhlas se zpracováním zadaných údajů (jméno, telefon, e-mail, ip adresa) společnosti B3 Technology, s.r.o., IČ: 07330600, se sídlem Novostavby 126/23, 435 11 Lom (správce dat), za účelem předání dotazu z tohoto formuláře Vámi vybranému inzerentovi a zpětného kontaktování mé osoby. Osobní údaje bude správce zpracovávat manuálně i automaticky přímo prostřednictvím svých zaměstnanců. Informace předané tímto formulářem budou uloženy v databázi správce maximálně po dobu 10 let. Odvolání souhlasu s uložením a zpracováním poskytnutých dat lze e-mailem na info@realitypro.eu. V případě podezření na neoprávněné použití Vámi poskytnutých údajů máte právo předat podnět k šetření Úřadu pro ochranu osobních údajů. Více informací
Chystáte se prodat nemovitost?
Pomůžeme Vám!

Inzerát si prohlédlo 1 lidí

Prodejce

Jiří Mitošinka

Jiří Mitošinka

Hlídací pes

Chcete dostávat emailem podobné nabídky prodeje bytů 3+kk v Praze 2?

Top nabídky

Podobné nemovitosti