Pronájem bytu 2+1, Praha - Letňany, Chlebovická, 61 m2

Chlebovická, Letňany - Praha 18

23 000 Kč /za měsíc Získejte výhodnou HYPOTÉKU

(vratná jistota, náklady na bydlení 6 155 Kč, poplatek za podnájem)

Prověřené firmy v Praze 9

Stěhovací služby

Výkup a prodej starého nábytku

Informace k bytu

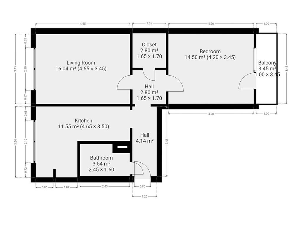
K dlouhodobému podnájmu nabízíme světlý byt o dispozici 2+1 v klidné rezidenční lokalitě Praha 18- Letňany. Byt o celkové výměře 61 m² se nachází v 8. patře udržovaného panelového domu s výtahem. K bytu náleží také balkon a praktický sklep.

Byt je nabízen částečně vybavený, což dává možnost doladit si interiér podle vlastního vkusu. Kuchyně je vybavena lednicí s mrazákem, elektrickou troubou, sporákem, digestoří a jídelním koutem. Obývací pokoj disponuje vhodným prostorem pro vybavení dle potřeb nájemníka. K dispozici je rovněž samostatný pokoj, který nejlépe poslouží jako ložnice. Pokoj disponuje přímým vstupem na balkon. Koupelna je vybavena sprchovým koutem, koupelnovou skříňkou, umyvadlem a toaletou. Součástí bytu je také praktická úložná místnost.

V okolí domu je kompletní občanská vybavenost – OC Letňany, obchod s potravinami, lékařská péče, pošta, školy a školky, restaurace. Pro volný čas je ideální Lesopark Letňany, vzdálený jen pár minut chůze. Výbornou dopravní dostupnost zajišťují blízké zastávky autobusů a také stanice metra C - Letňany.

Byt je volný k nastěhování ihned.

Energetická třída: G (průkaz nedodán).

Parametry bytu

Cena
23 000 Kč /za měsíc
Poznámka k ceně
vratná jistota, náklady na bydlení 6 155 Kč, poplatek za podnájem
Aktualizováno
7. 11. 2025
Adresa
Chlebovická, Letňany - Praha 18
ID
N6923
Stavba
Panelová
Stav objektu
Velmi dobrý
Patro
8. z 8
Vybaveno
Částečně
Typ objektu
Patrový
Lokalita objektu
Klidná část obce
Vlastnictví
Osobní
Užitná plocha
61 m2
Podlahová plocha
61 m2
Třída energetické náročnosti
G - Mimořádně nehospodárná
Elektřina
230V
Topení
Ústřední dálkové
Doprava
Silnice, MHD, Autobus
Balkon
Sklep
Výtah

Kontaktovat makléře

Máte zájem o tento byt?

Tímto, v souladu s nařízením Evropského parlamentu a Rady (EU) 2016/679, v platném znění, prohlašuji, že mi je alespoň 16 let a uděluji tak svůj souhlas se zpracováním zadaných údajů (jméno, telefon, e-mail, ip adresa) společnosti B3 Technology, s.r.o., IČ: 07330600, se sídlem Novostavby 126/23, 435 11 Lom (správce dat), za účelem předání dotazu z tohoto formuláře Vámi vybranému inzerentovi a zpětného kontaktování mé osoby. Osobní údaje bude správce zpracovávat manuálně i automaticky přímo prostřednictvím svých zaměstnanců. Informace předané tímto formulářem budou uloženy v databázi správce maximálně po dobu 10 let. Odvolání souhlasu s uložením a zpracováním poskytnutých dat lze e-mailem na info@realitypro.eu. V případě podezření na neoprávněné použití Vámi poskytnutých údajů máte právo předat podnět k šetření Úřadu pro ochranu osobních údajů. Více informací
Chystáte se prodat nemovitost?
Pomůžeme Vám!

Inzerát si prohlédlo 1 lidí

Prodejce

Miloslava Kačerová

Miloslava Kačerová

Hlídací pes

Chcete dostávat emailem podobné nabídky pronájmu bytů 2+1 v Praze 9?

Podobné nemovitosti