Pronájem bytu 2+1, Teplice, Kollárova, 85 m2

Kollárova, Teplice

12 990 Kč /za měsíc Získejte výhodnou HYPOTÉKU

(+ zálohy na služby 4500 Kč + provize RK ve výši jednoho měsíčního nájmu + kauce)

Prověřené firmy v Teplicích

Okna a dveře

Rekonstrukce

Zámečnické práce

Informace k bytu

Dovolujeme si Vám nabídnout prostorný byt o dispozici 2+1, který se nachází ve 4. nadzemním podlaží renesanční budovy v centru města Teplice, v ulici Kollárova.

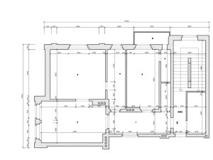
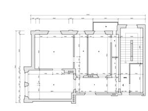
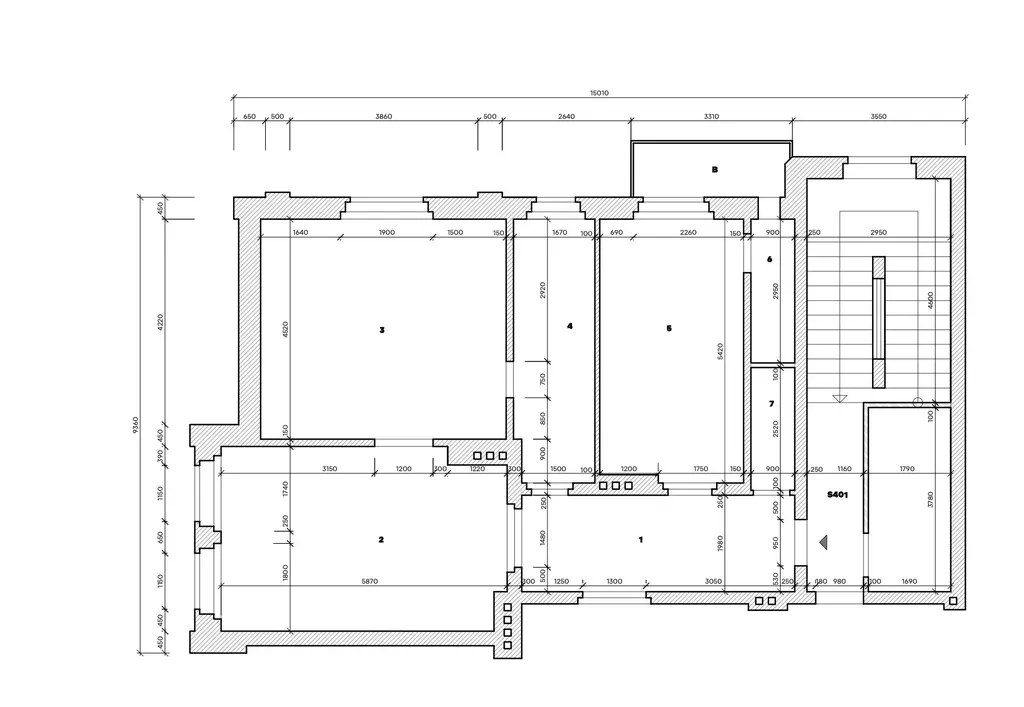
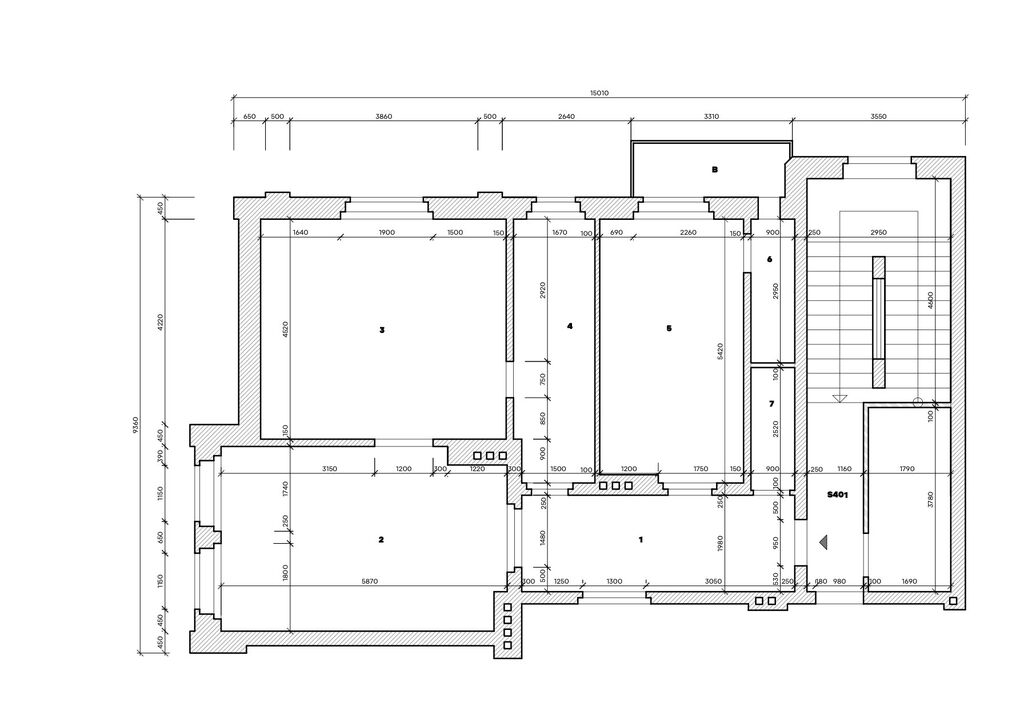
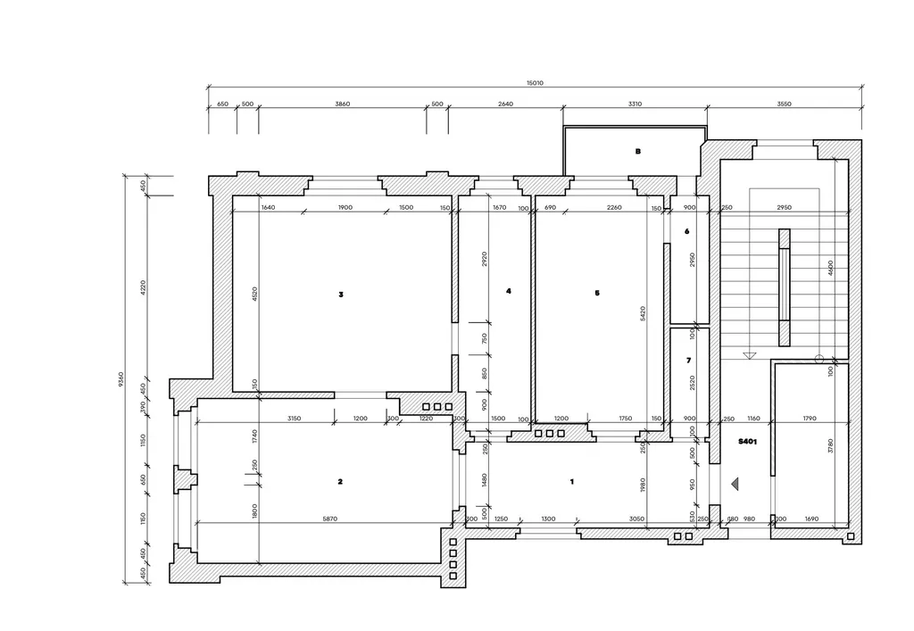
Byt má prakticky řešenou dispozici, viz půdorys.

Kuchyně je moderní, s vestavěnými spotřebiči. Z kuchyně je přístup na balkon, situovaný směrem do dvora a na jižní stranu. Na podlahách jsou původní, renovované parkety a dlažba. Celkově byt působí velmi světlým a prostorným dojmem – kombinuje prvky historické architektury s moderním standardem bydlení.

Pronajímatel je připraven byt vybavit nábytkem.

Podmínky nájmu:
- Nájem: 12 490 Kč
- Zálohy na služby: 4 500 Kč vč. elektřiny
- Provize: 12 490 Kč + DPH
- Jistota: ve výši 1-2x nájemného

Byt je volný od 1.1.2026.

Parametry bytu

Cena
12 990 Kč /za měsíc
Poznámka k ceně
+ zálohy na služby 4500 Kč + provize RK ve výši jednoho měsíčního nájmu + kauce
Aktualizováno
17. 12. 2025
Adresa
Kollárova, Teplice
ID
N425
Stavba
Cihlová
Stav objektu
Po rekonstrukci
Patro
4. z 4
Typ objektu
Patrový
Vlastnictví
Osobní
Užitná plocha
85 m2
Podlahová plocha
85 m2
Třída energetické náročnosti
G - Mimořádně nehospodárná
Balkon
Výtah

Kontaktovat makléře

Máte zájem o tento byt?

Tímto, v souladu s nařízením Evropského parlamentu a Rady (EU) 2016/679, v platném znění, prohlašuji, že mi je alespoň 16 let a uděluji tak svůj souhlas se zpracováním zadaných údajů (jméno, telefon, e-mail, ip adresa) společnosti B3 Technology, s.r.o., IČ: 07330600, se sídlem Novostavby 126/23, 435 11 Lom (správce dat), za účelem předání dotazu z tohoto formuláře Vámi vybranému inzerentovi a zpětného kontaktování mé osoby. Osobní údaje bude správce zpracovávat manuálně i automaticky přímo prostřednictvím svých zaměstnanců. Informace předané tímto formulářem budou uloženy v databázi správce maximálně po dobu 10 let. Odvolání souhlasu s uložením a zpracováním poskytnutých dat lze e-mailem na info@realitypro.eu. V případě podezření na neoprávněné použití Vámi poskytnutých údajů máte právo předat podnět k šetření Úřadu pro ochranu osobních údajů. Více informací
Chystáte se prodat nemovitost?
Pomůžeme Vám!

Inzerát si prohlédlo 7 lidí

Prodejce

Call Centrum CAPITAL Trust, a.s .

Call Centrum CAPITAL Trust, a.s .

Hlídací pes

Chcete dostávat emailem podobné nabídky pronájmu bytů 2+1 v Teplicích?

Podobné nemovitosti