Pronájem kanceláře, České Budějovice - České Budějovice 3, Pražská tř., 164 m2

Pražská tř., České Budějovice 3

Prodáno
26 740 Kč /za měsíc Získejte výhodnou HYPOTÉKU
Prověřené firmy v Českých Budějovicích

Výkup a prodej starého nábytku

Informace k nemovitosti

Jedná se o pronájem atraktivních administrativních prostor, o podlahové ploše 134 m2, plocha sestává ze dvou prostorných, samostatných, klimatizovaných, administrativních místností, chodba, samostatná WC (dámy + pánové) a kuchyňský koutek, + 2 x vymezené venkovní parkovací stání, prostory se nachází v přízemí nové administrativně obchodní budovy, v atraktivní a dobře dopravně dostupné části města, na Pražské tř., Č. Budějovice 3.
V případě potřeby možný rovněž pronájem skladových prostor, až 115m2 v nevytápěné hale v sousedství hlavní budovy.
Napojeno na PCO - střeženo.
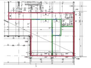
Ve foto půdorys podlaží, kde červeně ohraničen je obrys pronajímané plochy.
Současné obsazení dalších prostor budovy: obchod, zdravotní služby, rehabilitace, technické revize.
Cena nájmu je 26.740Kč bez DPH / měsíc + 3.000Kč zálohy (teplo, voda. elektřina, klimatizace, úklid společných prostor, popelnice, ostraha)
Rezervační záloha (Provize RK): 30 000Kč vč. DPH.
Veškeré info. u makléře zakázky.

Parametry nemovitosti

Stav
Prodáno
Cena
26 740 Kč /za měsíc
Aktualizováno
18. 12. 2025
Adresa
Pražská tř., České Budějovice 3
ID
06319
Stavba
Skeletová
Stav objektu
Velmi dobrý
Patro
3.
Typ objektu
Patrový
Lokalita objektu
Rušná část obce
Užitná plocha
164 m2
Podlahová plocha
134 m2
Třída energetické náročnosti
G - Mimořádně nehospodárná
Elektřina
230V
Odpad
Veřejná kanalizace
Topení
Ústřední plynové
Komunikace
Asfaltová
Telekomunikace
Internet
Doprava
Dálnice, Silnice, MHD
Voda
Vodovod
Topné těleso
Radiátory
Zdroj topení
Plynový kondenzační kotel
Zdroj teplé vody
Plynový kondenzační kotel
Výtah
Bezbarierový přístup
Parkování

Kontaktovat makléře

Realitní kancelář

Logo RK Stejskal & Šandera

RK Stejskal & Šandera

Krajinská 17, České Budějovice

Chystáte se prodat nemovitost?
Pomůžeme Vám!

Máte zájem o tuto nemovistost?

Tímto, v souladu s nařízením Evropského parlamentu a Rady (EU) 2016/679, v platném znění, prohlašuji, že mi je alespoň 16 let a uděluji tak svůj souhlas se zpracováním zadaných údajů (jméno, telefon, e-mail, ip adresa) společnosti B3 Technology, s.r.o., IČ: 07330600, se sídlem Novostavby 126/23, 435 11 Lom (správce dat), za účelem předání dotazu z tohoto formuláře Vámi vybranému inzerentovi a zpětného kontaktování mé osoby. Osobní údaje bude správce zpracovávat manuálně i automaticky přímo prostřednictvím svých zaměstnanců. Informace předané tímto formulářem budou uloženy v databázi správce maximálně po dobu 10 let. Odvolání souhlasu s uložením a zpracováním poskytnutých dat lze e-mailem na info@realitypro.eu. V případě podezření na neoprávněné použití Vámi poskytnutých údajů máte právo předat podnět k šetření Úřadu pro ochranu osobních údajů. Více informací
Chystáte se prodat nemovitost?
Pomůžeme Vám!

Inzerát si prohlédlo 7 lidí

Prodejce

Petr Migl

Petr Migl

Hlídací pes

Chcete dostávat emailem podobné nabídky pronájmu kanceláří v Českých Budějovicích?

Podobné nemovitosti