Soccer reality

Prodej bytu 4+kk, Nehvizdy, Pražská, 107 m2 (ID: 2723733)

Pražská, Nehvizdy

8 200 000 Kč /za nemovitost HYPOTÉKA od 36 649 Kč /za měsíc

(včetně provize, včetně právního servisu)

Prověřené firmy v Nehvizdech

Informace k bytu

Prostorný mezonet 4+kk, 107 m², Nehvizdy – skvělá dostupnost do Prahy

Hledáte velký, světlý byt s výborným spojením do Prahy?

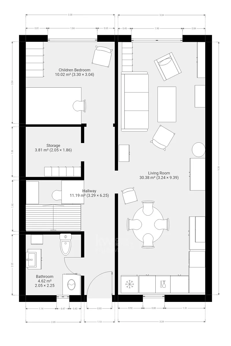
V oblíbeném městysu Nehvizdy, pouhých 8 km od Horních Počernic, nabízíme k prodeji prostorný mezonet 4+kk v osobním vlastnictví o podlahové ploše 107 m². Nachází se ve 2. a 3. nadzemním podlaží cihlového domu z roku 2001 v ulici Pražská.

Dispozice

Do bytu vstupujete samostatným vstupem z pavlače ve 2. patře.

Spodní patro: obývací pokoj s kuchyní (30,4 m²), ložnice (10 m²), Komora předsíň (4 m²) , koupelna s WC (4,25 m²), chodba a schodiště (11,2m²).

Horní patro: chodba (2,84 m²), pokoj (14,92 m²), ložnice (23 m²), koupelna s wc (7,14 m²).

Vybavení a technické údaje

- Vlastní plynový kotel s průtokovým ohřevem TUV
- Samostatný elektroměr, plynoměr a podružný vodoměr
- Koupelna s vanou, umyvadlem a WC
- Cihlový dům rozdělený na 12 bytových jednotek
- Parkování na ulici

Výhody lokality

Nehvizdy jsou vyhledávaným místem pro rodiny – nabízejí kompletní občanskou vybavenost:
ZŠ, MŠ, obchody, restaurace, lékař, sportoviště, sokolovna, cyklostezky, zoopark.

Autobus 30 min na metro B – Černý Most, autem cca 15 min do Prahy

Plánovaný terminál vysokorychlostní trati Praha–Brno pro ještě rychlejší spojení

Pro koho je byt vhodný:

Rodinné bydlení s dostatkem prostoru
Investice k dlouhodobému pronájmu

Ihned k nastěhování

Jiří Koucký – realitní makléř

​​Uvedené výměry jsou orientační. V případě více zájemců bude nemovitost prodána nejlepší nabídce a majitel si vyhrazuje právo vybrat kupujícího na základě jim zvolených kritérií. Veškeré zveřejněné údaje obsažené v tomto inzerátu mají pouze informativní charakter a nejsou nabídkou ve smyslu § 1731 nebo § 1732 občanského zákoníku, ani se nejedná o veřejný příslib dle § 1733 občanského zákoníku.

Parametry bytu

Cena
8 200 000 Kč /za nemovitost Spočítat hypotéku
Poznámka k ceně
včetně provize, včetně právního servisu
Aktualizováno
5. 11. 2025
Adresa
Pražská, Nehvizdy
ID
28318
Stavba
Cihlová
Stav objektu
Dobrý
Patro
2. z 3
Vybaveno
Částečně
Lokalita objektu
Klidná část obce
Vlastnictví
Osobní
Užitná plocha
107 m2
Třída energetické náročnosti
G - Mimořádně nehospodárná
Elektřina
230V
Plyn
Plynovod
Odpad
Veřejná kanalizace
Telekomunikace
Telefon, Internet
Voda
Vodovod
Zdroj topení
Plynový kondenzační kotel
Zdroj teplé vody
Plynový kotel
Parkování

Kontaktovat makléře

Máte zájem o tento byt?

Tímto, v souladu s nařízením Evropského parlamentu a Rady (EU) 2016/679, v platném znění, prohlašuji, že mi je alespoň 16 let a uděluji tak svůj souhlas se zpracováním zadaných údajů (jméno, telefon, e-mail, ip adresa) společnosti B3 Technology, s.r.o., IČ: 07330600, se sídlem Novostavby 126/23, 435 11 Lom (správce dat), za účelem předání dotazu z tohoto formuláře Vámi vybranému inzerentovi a zpětného kontaktování mé osoby. Osobní údaje bude správce zpracovávat manuálně i automaticky přímo prostřednictvím svých zaměstnanců. Informace předané tímto formulářem budou uloženy v databázi správce maximálně po dobu 10 let. Odvolání souhlasu s uložením a zpracováním poskytnutých dat lze e-mailem na info@realitypro.eu. V případě podezření na neoprávněné použití Vámi poskytnutých údajů máte právo předat podnět k šetření Úřadu pro ochranu osobních údajů. Více informací
Chystáte se prodat nemovitost?
Pomůžeme Vám!

Inzerát si prohlédlo 9 lidí

Prodejce

Jiří Koucký

Jiří Koucký

Hlídací pes

Chcete dostávat emailem podobné nabídky prodeje bytů 4+kk v Nehvizdech?

Podobné nemovitosti