Prodej vícegeneračního domu, Skorošice, 1220 m2

Skorošice

Cena na vyžádání /za nemovitost Získejte výhodnou HYPOTÉKU

(včetně provize a právního servisu spojeného s převodem nemovitosti)

Prověřené firmy v Skorošicích

Pojištění a finance

Informace k domu

Ve výhradním zastoupení společností RE/MAX Future, Vám tímto nabízíme ke koupi výrobně skladovací areál se 2 bytovými jednotkami a pozemkem o celkové výměře včetně zastavěných ploch 2 442 m², který díky své poloze a velikosti nabízí širokou škálu možného využití.

Dvoupodlažní budova s celkovou užitnou plochou 1 220 m², je aktuálně v 1. nadzemním podlaží dispozičně rozdělena na prostory výrobní, skladové a administrativní s odpovídajícím sociálním zázemím. Dominantním prostorem je 148 m² veliká dílna s výsuvnými vraty, která byla využívána pro servisování nákladních automobilů. K dispozici jsou rovněž 2 dvojgaráže.

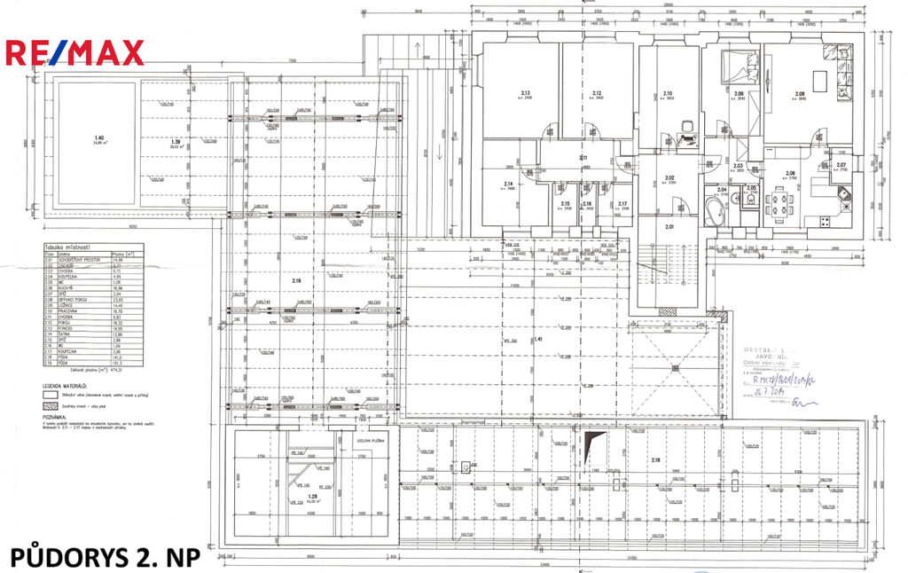
Druhé nadzemní podlaží, do kterého se dostanete pohodlně skrze široké schodiště, nabízí 2 bytové jednotky. První byt o dispozici 2+1 a výměře 70 m² je rozdělen na obývací pokoj, ložnici, kuchyň s jídelnou, spíž, koupelnu s vanou a sprchovým koutem, toaletu, chodbu. Byt je připraven k užívání. Druhý byt o dispozici 3+1 a výměře 87 m² nabízí 3 samostatné pokoje, přípravu pro kuchyň, spíž, přípravu pro koupelnu, přípravu pro toaletu, chodbu.

Další prostory s možností budoucího užívání představuje prostorná půda a sklep.

Areál se nachází u silnice I. třídy I/60, která vede z Jeseníku přes Žulovou a Javorník až do Polska. Jedná se o výborně dopravně dostupnou lokalitu.

Vzhledem k užitné ploše, velikosti pozemku a celkovému objemu budovy, tuto nabídku za naši kancelář hodnotíme jako vysoce zajímavou.

V případě zájmu o bližší informace mě prosím kontaktujte pomocí e-mailu nebo telefonicky.

Jiří Samek - výhradní prodejce
Prodávající si vyhrazuje právo vybrat kupujícího na základě jím zvolených kritérií.

Parametry domu

Cena
Cena na vyžádání Spočítat hypotéku
Poznámka k ceně
včetně provize a právního servisu spojeného s převodem nemovitosti
Aktualizováno
4. 5. 2026
Adresa
Skorošice
ID
211-NP04505
Stavba
Cihlová
Stav objektu
Dobrý
Typ objektu
Patrový
Druh objektu
Samostatný
Lokalita objektu
Okraj obce
Užitná plocha
1220 m2
Zastavěná plocha
869 m2
Plocha pozemku
2442 m2
Plocha zahrady
2442 m2
Elektřina
230V, 400V
Odpad
Veřejná kanalizace
Komunikace
Asfaltová
Voda
Vodovod
Převod do OV

Kontaktovat makléře

Realitní kancelář

Logo RE/MAX Future

RE/MAX Future

U Koruny 1742/16, Hradec Králové

Chystáte se prodat nemovitost?
Pomůžeme Vám!

Máte zájem o tento dům?

Tímto, v souladu s nařízením Evropského parlamentu a Rady (EU) 2016/679, v platném znění, prohlašuji, že mi je alespoň 16 let a uděluji tak svůj souhlas se zpracováním zadaných údajů (jméno, telefon, e-mail, ip adresa) společnosti B3 Technology, s.r.o., IČ: 07330600, se sídlem Novostavby 126/23, 435 11 Lom (správce dat), za účelem předání dotazu z tohoto formuláře Vámi vybranému inzerentovi a zpětného kontaktování mé osoby. Osobní údaje bude správce zpracovávat manuálně i automaticky přímo prostřednictvím svých zaměstnanců. Informace předané tímto formulářem budou uloženy v databázi správce maximálně po dobu 10 let. Odvolání souhlasu s uložením a zpracováním poskytnutých dat lze e-mailem na info@realitypro.eu. V případě podezření na neoprávněné použití Vámi poskytnutých údajů máte právo předat podnět k šetření Úřadu pro ochranu osobních údajů. Více informací
Chystáte se prodat nemovitost?
Pomůžeme Vám!
Theleadway banner

Inzerát si prohlédlo 77 lidí

Prodejce

Jiří Samek

Jiří Samek

Hlídací pes

Chcete dostávat emailem podobné nabídky prodeje vícegeneračních domů v Skorošicích?