Prodej činžovního domu, Česká Kamenice, Lipová, 300 m2

Lipová, Česká Kamenice

8 990 000 Kč /za nemovitost HYPOTÉKA od 40 180 Kč /za měsíc

(včetně poplatků a právního servisu)

Prověřené firmy v České Kamenici

Okna a dveře

Rekonstrukce

Zámečnické práce

Informace k nemovitosti

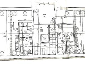
Prodej nájemního domu v České Kamenici Dovoluji si vám nabídnout investiční dům v České Kamenici se 4 byty a nebytovým prostorem, který je nyní využíván jako školka. Tato nemovitost se nachází na kraji obce a její celková zastavěná včetně garáží je cca 224m2. Celková plocha pozemku je 1139m2. Je tedy dostatečně veliký a lze ho tedy využít podle libosti.
Byty mají dispozici 2x 2kk cca 53m2, 2kk cca 67m2, 3kk cca 70m2, školka cca 50 m2. Dále jsou zde 2 garáže.
Celkový výnos domu je nyní cca 480 tis. Kč za rok!!
V České Kamenici je veliký nedostatek bytů a díky tomu tato nabídka nabývá na atraktivitě.
Místo je velice strategické. V Děčíně i České Lípě jste autem do 20 minut. Liberec cca 45 minut jízdy autem. Vlakové nádraží je pár minut pěšky odsud. Veškerá občanská vybavenost je tedy v místě a nebo ve zmíněném Děčíně.
Samotné město Česká Kamenice je malebné historické městečko na úpatí národního parku České Švýcarsko.
Pokud vás tato nabídka zaujala zavolejte si o více informací a prohlídku.
Tomáš Fodor realitní makléř.

Parametry nemovitosti

Cena
8 990 000 Kč /za nemovitost Spočítat hypotéku
Poznámka k ceně
včetně poplatků a právního servisu
Aktualizováno
2. 11. 2025
Adresa
Lipová, Česká Kamenice
ID
837
Stavba
Cihlová
Stav objektu
Velmi dobrý
Typ objektu
Patrový
Druh objektu
V bloku
Lokalita objektu
Okraj obce
Užitná plocha
300 m2
Zastavěná plocha
224 m2
Podlahová plocha
330 m2
Plocha pozemku
330 m2
Třída energetické náročnosti
G - Mimořádně nehospodárná

Kontaktovat makléře

Realitní kancelář

Logo RealitasFIN s.r.o.

RealitasFIN s.r.o.

Masarykova 750/316, Ústí nad Labem

Chystáte se prodat nemovitost?
Pomůžeme Vám!

Máte zájem o tuto nemovistost?

Tímto, v souladu s nařízením Evropského parlamentu a Rady (EU) 2016/679, v platném znění, prohlašuji, že mi je alespoň 16 let a uděluji tak svůj souhlas se zpracováním zadaných údajů (jméno, telefon, e-mail, ip adresa) společnosti B3 Technology, s.r.o., IČ: 07330600, se sídlem Novostavby 126/23, 435 11 Lom (správce dat), za účelem předání dotazu z tohoto formuláře Vámi vybranému inzerentovi a zpětného kontaktování mé osoby. Osobní údaje bude správce zpracovávat manuálně i automaticky přímo prostřednictvím svých zaměstnanců. Informace předané tímto formulářem budou uloženy v databázi správce maximálně po dobu 10 let. Odvolání souhlasu s uložením a zpracováním poskytnutých dat lze e-mailem na info@realitypro.eu. V případě podezření na neoprávněné použití Vámi poskytnutých údajů máte právo předat podnět k šetření Úřadu pro ochranu osobních údajů. Více informací
Chystáte se prodat nemovitost?
Pomůžeme Vám!

Inzerát si prohlédlo 1 lidí

Prodejce

Tomáš Fodor

Tomáš Fodor

Hlídací pes

Chcete dostávat emailem podobné nabídky prodeje činžovních domů v České Kamenici?

Podobné nemovitosti