Prodej bytu 2+kk, Cihelna, Kunětická, 42 m2

Kunětická, Cihelna

3 990 000 Kč /za nemovitost HYPOTÉKA od 17 833 Kč /za měsíc

(cena včetně služeb RK, může být zvýšena vlivem vyššího počtu zájemců)

Prověřené firmy

Informace k bytu

Dobrý den, vítám Vás na stránce s nabídkou bytu o dispozici 2+kk, který se nachází v 6.NP bytového domu v ulici Kunětická, na pardubickém sídlišti zvaném Cihelna.

Tento byt by se dal také nazvat jako investiční nebo startovní bydlení pro mladý pár nebo naopak pro rozvedeného či singl žijícího uživatele. A nejen to, v bytě se dá bydlet i s dítětem do určitého věku.

V minulosti proběhla rekonstrukce bytového jádra. Byt působí vzdušně a světle. Orientovaný je na západní světovou stranu.

Aktuálně je obsazen nájemcem s nájemní smlouvou na dobu určitou, a to do 30.04.2026. Stávající nájemce by rád v nájmu pokračoval. Je nájemcem již více jak 4 roky. Byt je zajímavou investicí, protože byty v této lokalitě se velmi dobře pronajímají.

Doplňující informace:
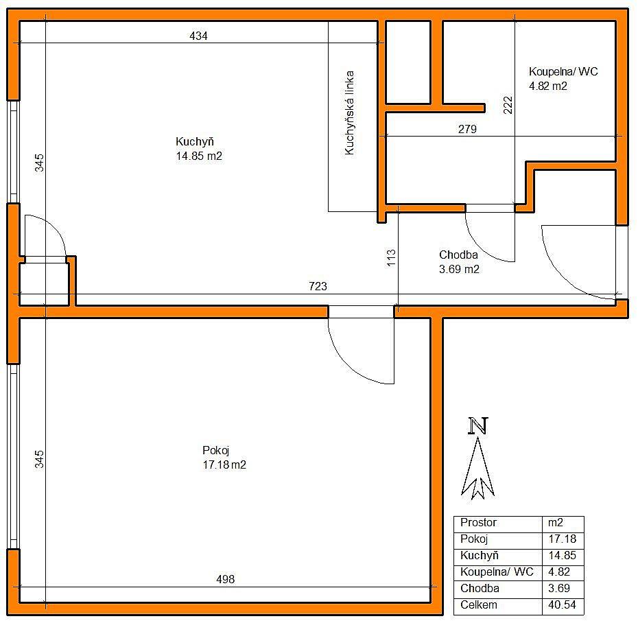
Plocha bytu: podle dokumentace 42,6 m2 včetně sklepní kóje o výměře 1,4 m2.
Umístění bytu: 6.NP bytového domu.
Lokalita: ulice Kunětická č.p.115, Pardubice.
Fond oprav: 1065 Kč měsíčně.
Průkaz energetické náročnosti budovy - C.

Pět důvodů proč uvažovat o koupi:
1. Investiční potenciál.
2. Oblíbená lokalita.
3. Technický stav bytu.
4. Dostupnost služeb.
5. Jeden z nejzajímavějších malých bytů v aktuální nabídce.

Děkuji, Václav Růžička, realitní specialista.

Prodávající si vyhrazuje právo na výběr kupujícího dle vlastní úvahy (způsob úhrady a výše kupní ceny, serióznost jednání apod.).

Parametry bytu

Cena
3 990 000 Kč /za nemovitost Spočítat hypotéku
Poznámka k ceně
cena včetně služeb RK, může být zvýšena vlivem vyššího počtu zájemců
Aktualizováno
2. 11. 2025
Adresa
Kunětická, Cihelna
ID
XA-170B
Stavba
Panelová
Stav objektu
Dobrý
Patro
6.
Typ objektu
Přízemní
Vlastnictví
Osobní
Užitná plocha
42 m2
Podlahová plocha
42 m2
Třída energetické náročnosti
C - Úsporná
Elektřina
230V
Plyn
Plynovod
Odpad
Veřejná kanalizace
Topení
Ústřední dálkové
Komunikace
Asfaltová
Telekomunikace
Internet
Doprava
MHD
Voda
Vodovod
Topné těleso
Radiátory
Zdroj topení
Ústřední dálkové
Sklep
Výtah
Bezbarierový přístup

Kontaktovat makléře

Realitní kancelář

RV Reality

Bratranců Veverkových 355, Pardubice

Chystáte se prodat nemovitost?
Pomůžeme Vám!

Máte zájem o tento byt?

Tímto, v souladu s nařízením Evropského parlamentu a Rady (EU) 2016/679, v platném znění, prohlašuji, že mi je alespoň 16 let a uděluji tak svůj souhlas se zpracováním zadaných údajů (jméno, telefon, e-mail, ip adresa) společnosti B3 Technology, s.r.o., IČ: 07330600, se sídlem Novostavby 126/23, 435 11 Lom (správce dat), za účelem předání dotazu z tohoto formuláře Vámi vybranému inzerentovi a zpětného kontaktování mé osoby. Osobní údaje bude správce zpracovávat manuálně i automaticky přímo prostřednictvím svých zaměstnanců. Informace předané tímto formulářem budou uloženy v databázi správce maximálně po dobu 10 let. Odvolání souhlasu s uložením a zpracováním poskytnutých dat lze e-mailem na info@realitypro.eu. V případě podezření na neoprávněné použití Vámi poskytnutých údajů máte právo předat podnět k šetření Úřadu pro ochranu osobních údajů. Více informací
Chystáte se prodat nemovitost?
Pomůžeme Vám!

Inzerát si prohlédlo 1 lidí

Prodejce

Václav Růžička

Václav Růžička

Hlídací pes

Chcete dostávat emailem podobné nabídky prodeje bytů 2+kk?

Top nabídky

Podobné nemovitosti