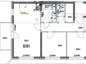
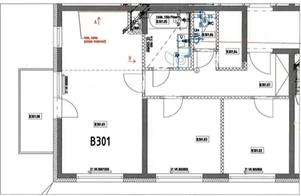
Pronájem bytu 3+kk, Praha - Hlubočepy, Fabiánové, 67 m2

Fabiánové, Praha, Hlubočepy

24 000 Kč /za měsíc Získejte výhodnou HYPOTÉKU

(+ poplatky za služby 4.000,- Kč)

Prověřené firmy v Praze 5

Stěhovací služby

Výkup a prodej starého nábytku

Informace k bytu

Nabízíme k dlouhodobému pronájmu byt 3+kk s balkonem, včetně sklepa a garážového stání v právě dokončeném developerském projektu na Barrandově. Byt si Vás získá krásným výhledem z obývacího pokoje s balkonem na Prokopské údolí. Byt je vybaven velkou kuchyní na míru s vestavěnými spotřebiči AEG. Množství oken zajistí dostatek světla v bytě. Promyšlená dispozice se šatnou, koupelnou s vanou a samostatným WC s umyvátkem. Součástí bytu je prostorný sklep a garážové stání. Užijte si bydlení v krásném novém domě, ve skvělé čtvrti Prahy 5 - Barrandova, kde naleznete kompletní vybavenost a přitom přírodu lákající k procházkám a sportu máte u domu. Tramvaj kousek od domu zajistí rychlé spojení na Anděl.

Měsíční poplatky spojené s bytem činí 4.000,- Kč + převod elektřiny na nájemce. Vratná kauce je 28.000,- Kč. Provize RK 28.000,- Kč + 21% DPH

Parametry bytu

Cena
24 000 Kč /za měsíc
Poznámka k ceně
+ poplatky za služby 4.000,- Kč
Aktualizováno
1. 11. 2025
Adresa
Fabiánové, Praha, Hlubočepy
ID
BAR301
Stavba
Skeletová
Stav objektu
Novostavba
Patro
3. z 10
Vybaveno
Částečně
Lokalita objektu
Klidná část obce
Vlastnictví
Osobní
Užitná plocha
67 m2
Třída energetické náročnosti
B - Velmi úsporná
Doprava
Silnice, MHD
Topné těleso
Radiátory
Zdroj topení
Ústřední dálkové
Zdroj teplé vody
Centrální dálkový ohřev
Balkon
Garáž
Sklep
Výtah
Bezbarierový přístup

Kontaktovat makléře

Máte zájem o tento byt?

Tímto, v souladu s nařízením Evropského parlamentu a Rady (EU) 2016/679, v platném znění, prohlašuji, že mi je alespoň 16 let a uděluji tak svůj souhlas se zpracováním zadaných údajů (jméno, telefon, e-mail, ip adresa) společnosti B3 Technology, s.r.o., IČ: 07330600, se sídlem Novostavby 126/23, 435 11 Lom (správce dat), za účelem předání dotazu z tohoto formuláře Vámi vybranému inzerentovi a zpětného kontaktování mé osoby. Osobní údaje bude správce zpracovávat manuálně i automaticky přímo prostřednictvím svých zaměstnanců. Informace předané tímto formulářem budou uloženy v databázi správce maximálně po dobu 10 let. Odvolání souhlasu s uložením a zpracováním poskytnutých dat lze e-mailem na info@realitypro.eu. V případě podezření na neoprávněné použití Vámi poskytnutých údajů máte právo předat podnět k šetření Úřadu pro ochranu osobních údajů. Více informací
Chystáte se prodat nemovitost?
Pomůžeme Vám!

Inzerát si prohlédlo 0 lidí

Prodejce

Mgr. Stanislav Židek

Mgr. Stanislav Židek

Hlídací pes

Chcete dostávat emailem podobné nabídky pronájmu bytů 3+kk v Praze 5?

Podobné nemovitosti