Prodej chalupy, Žlebské Chvalovice, 76 m2

Žlebské Chvalovice

3 290 000 Kč /za nemovitost HYPOTÉKA od 14 704 Kč /za měsíc

(včetně poplatků, včetně provize, včetně právního servisu)

Prověřené firmy v Žlebských Chvalovicích

Informace k domu

Hledáte nemovitost, která v sobě spojuje půvab venkovského života, klid přírody a prostor pro vaši vlastní realizaci?
Pak vás zaujme tato chalupa se zahradou ve Žlebských Chvalovicích – dům, který čeká na nového majitele, jenž mu znovu vdechne život.

Vesnička má ideální polohu mezi klidem a dosažitelností. Kompletní občanskou vybavenost máte na dosah do 10 minut jízdy autem v Třemošnici, Žlebech či Ronově nad Doubravou, poblíž je také Heřmanův Městec a do krajského města Pardubic se dostanete za 40 minut.

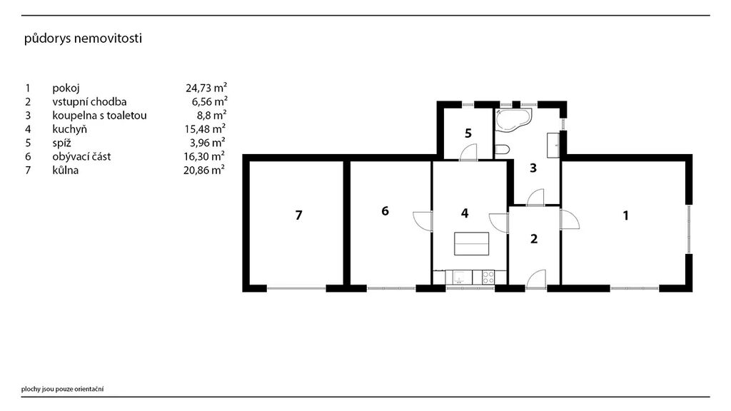
Na zastavěné ploše cca 130 m² stojí tato chalupa s původním kouzlem, která v sobě skrývá obytnou část, kůlnu se vstupem na půdu a menší dřevník umístěný na okraji pozemku. Stavba má smíšenou konstrukci a je částečně podsklepená – sklep je přístupný zvenčí a uchovává příjemný chlad, ideální pro víno nebo úrodu ze zahrady.

Chalupa je v autentickém stavu, připravená na citlivou rekonstrukci, která zachová její duši a přinese pohodlí dnešní doby. V obytné části se nachází tři místnosti, koupelna s vanou a umyvadlem, spíž a vstupní chodba s celkovou užitnou plochou cca 76 m2. Na toaletu už musíte ven, vedle dřevníku se nachází nostalgická kadibouda :-)

Hlavní dveře vás zavedou do chodby, odkud se vlevo vstupuje do kuchyně – prostorné místnosti s oknem do dvora. Kuchyň je dostatečně velká nejen pro kuchyňskou linku, ale i pro jídelní kout. V její zadní části kuchyně se nachází spíž, ideální pro skladování potravin a domácích zásob. Z kuchyně se prochází do zadního pokoje, komornějšího prostoru, který se přímo nabízí pro vytvoření ložnice či dětského pokoje. Zpět chodbou, napravo, se otevírá vstup do největší místnosti domu, která díky oknům na dvou stěnách působí svěže a světle a je tak ideální jako obývací pokoj. Poslední místností je koupelna, přístupná přímo z chodby naproti hlavnímu vchodu.

Dům je napojen na elektřinu a veřejný vodovod. Voda je však do domu přivedena skrze jeden uzávěr do umyvadla v koupelně, další rozvody teprve čekají na vybudování. Odpadní systém je v původní podobě, pouze sveden za hranici pozemku. Ohřev vody ani topení nejsou instalovány – teplo dosud zajišťovala dvě stará kamna, jedno v kuchyni, druhé v obývacím pokoji. Jednoduché, ale spolehlivé řešení, které se může stát inspirací pro budoucí obnovu v tradičním stylu.

Celková plocha pozemku činí 502 m² a jeho součástí je zahrada, obklopující dům ze všech stran. Poskytuje soukromí i prostor pro odpočinek či menší záhonky. Na kraji pozemku stojí vedle sebe kadibouda a jednoduchý dřevník, který může posloužit jako sklad dřeva či technické zázemí.

Prostory domu stále dýchají historií a nabízejí možnost vytvořit zde přesně takové místo, po jakém toužíte. Ať už půjde o rekreační chalupu pro víkendové útěky z města, nebo o trvalé venkovské bydlení s romantickým nádechem, základy tu jsou pevné a charakter nezaměnitelný.

Tato chalupa nabízí víc než jen zdi a střechu – nabízí příběh, který může pokračovat právě s vámi. Je to ideální místo pro ty, kteří mají zájem tvořit, renovovat, přetvářet a přitom zachovat duši starého venkova. Místo, kde se sen o klidném životě v přírodě může stát skutečností.

Pokud cítíte, že právě tady by mohl začít váš nový příběh, zavolejte mi a přijďte se podívat osobně. Možná zjistíte, že tohle není jen chalupa – ale domov, který na vás celou dobu čekal.

Parametry domu

Cena
3 290 000 Kč /za nemovitost Spočítat hypotéku
Poznámka k ceně
včetně poplatků, včetně provize, včetně právního servisu
Aktualizováno
12. 12. 2025
Adresa
Žlebské Chvalovice
ID
00244-1
Stavba
Smíšená
Stav objektu
Před rekonstrukcí
Vybaveno
Ne
Druh objektu
Samostatný
Lokalita objektu
Klidná část obce
Užitná plocha
76 m2
Zastavěná plocha
130 m2
Plocha pozemku
502 m2
Třída energetické náročnosti
G - Mimořádně nehospodárná
Elektřina
230V
Komunikace
Asfaltová
Doprava
Silnice
Voda
Vodovod
Topné těleso
Kamna
Zdroj topení
Kamna
Sklep
Výtah

Kontaktovat makléře

Realitní kancelář

FIRST HOLD INVEST s.r.o.

Za Pasáží 1429, Pardubice, Zelené Předměstí

Chystáte se prodat nemovitost?
Pomůžeme Vám!

Máte zájem o tento dům?

Tímto, v souladu s nařízením Evropského parlamentu a Rady (EU) 2016/679, v platném znění, prohlašuji, že mi je alespoň 16 let a uděluji tak svůj souhlas se zpracováním zadaných údajů (jméno, telefon, e-mail, ip adresa) společnosti B3 Technology, s.r.o., IČ: 07330600, se sídlem Novostavby 126/23, 435 11 Lom (správce dat), za účelem předání dotazu z tohoto formuláře Vámi vybranému inzerentovi a zpětného kontaktování mé osoby. Osobní údaje bude správce zpracovávat manuálně i automaticky přímo prostřednictvím svých zaměstnanců. Informace předané tímto formulářem budou uloženy v databázi správce maximálně po dobu 10 let. Odvolání souhlasu s uložením a zpracováním poskytnutých dat lze e-mailem na info@realitypro.eu. V případě podezření na neoprávněné použití Vámi poskytnutých údajů máte právo předat podnět k šetření Úřadu pro ochranu osobních údajů. Více informací
Chystáte se prodat nemovitost?
Pomůžeme Vám!

Inzerát si prohlédlo 6 lidí

Prodejce

Kryštof Kalhous

Kryštof Kalhous

Hlídací pes

Chcete dostávat emailem podobné nabídky prodeje chalup v Žlebských Chvalovicích?

Podobné nemovitosti