Prodej bytu 4+1, Buštěhrad, Švermova, 123 m2 (ID: 2718576)

Švermova, Buštěhrad

10 790 000 Kč /za nemovitost HYPOTÉKA od 48 225 Kč /za měsíc
Prověřené firmy v Buštěhradu

Informace k bytu

Nabízíme k prodeji mezonetový byt 4+1 v dvojdomku s vlastní zahradou a parkovacím stáním na Buštěhradě. Jedná se již o druhou realizaci tohoto objektu naší firmou v lokalitě, kde máme mnohaleté zkušenosti s výstavbou bytů a rodinných domů.

Přidejte se k desítkám spokojených zákazníků firmy Meritum Kladno s.r.o. ve vyhledávané lokalitě Buštěhrad a zažijte moderní rodinné bydlení v blízkosti Prahy, Kladna a letiště se základní občanskou vybaveností přímo u místa bydliště.

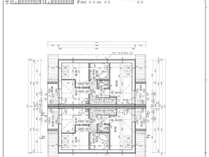
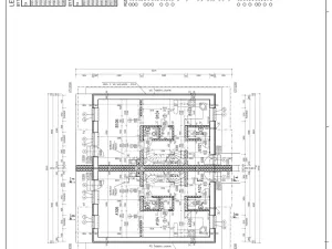
Byt je dispozičně řešen následovně:
První patro – Obývací pokoj, kuchyně, toaleta s umyvadlem, zádveří, prostor pod schody, technická místnost a komora.
Druhé patro – Tři pokoje, prostorná koupelna, samostatná toaleta s umyvadlem a chodba.

Byt lze rozšířit o půdní prostor (montáž podlahy a schodů na půdu), případně lze udělat lehké úpravy vnitřní dispozice.
Vytápění je řešeno podlahovým topením s elektrickým kotlem, alternativně lze nahradit tepelným čerpadlem. Bytová jednotka je vybavena vlastním elektroměrem a podružným vodoměrem.

Součástí bytu je výhradní právo na užívání adekvátní části pozemku – zahrady, která je přístupná z obývacího pokoje a dvou parkovacích stání.
Mezi jednotkami je dvojitá zeď s izolací a strop je přerušen – díky tomu jsou jednotky výborně akusticky oddělené.

Momentálně je volná jednotka B1
jednotka B2 je rezervována.
Užitná plocha každé jednotky je 123 m2 a plocha zahrad 380 m2 a 394 m2.

Cena jedné jednotky včetně zahrady: 10.900.000,- Kč vč. DPH (nyní sleva).

Doplatku podléhá: zámková dlažba parkování, oplocení, instalace půdních prostor, tepelné čerpadlo a další vybavení navíc.

Kolaudace do 12/2025.

Neváhejte nás kontaktovat pro další informace a případně domluvení prohlídky.

Parametry bytu

Cena
10 790 000 Kč /za nemovitost Spočítat hypotéku
Aktualizováno
12. 12. 2025
Adresa
Švermova, Buštěhrad
Stavba
Cihlová
Stav objektu
Velmi dobrý
Patro
1.
Vlastnictví
Osobní
Užitná plocha
123 m2
Třída energetické náročnosti
A - Mimořádně úsporná
Balkon
Terasa
Parkování

Kontaktovat makléře

Realitní kancelář

Meritum Kladno

Ctiborova 3091, Kladno

Chystáte se prodat nemovitost?
Pomůžeme Vám!

Máte zájem o tento byt?

Tímto, v souladu s nařízením Evropského parlamentu a Rady (EU) 2016/679, v platném znění, prohlašuji, že mi je alespoň 16 let a uděluji tak svůj souhlas se zpracováním zadaných údajů (jméno, telefon, e-mail, ip adresa) společnosti B3 Technology, s.r.o., IČ: 07330600, se sídlem Novostavby 126/23, 435 11 Lom (správce dat), za účelem předání dotazu z tohoto formuláře Vámi vybranému inzerentovi a zpětného kontaktování mé osoby. Osobní údaje bude správce zpracovávat manuálně i automaticky přímo prostřednictvím svých zaměstnanců. Informace předané tímto formulářem budou uloženy v databázi správce maximálně po dobu 10 let. Odvolání souhlasu s uložením a zpracováním poskytnutých dat lze e-mailem na info@realitypro.eu. V případě podezření na neoprávněné použití Vámi poskytnutých údajů máte právo předat podnět k šetření Úřadu pro ochranu osobních údajů. Více informací
Chystáte se prodat nemovitost?
Pomůžeme Vám!

Inzerát si prohlédlo 6 lidí

Prodejce

Tom Rus

Tom Rus

Hlídací pes

Chcete dostávat emailem podobné nabídky prodeje bytů 4+1 v Buštěhradu?

Podobné nemovitosti