Luleč
Hledáte místo, kde se zastaví čas, kde ráno zpívají ptáci a večer slyšíte jen praskání dřeva v kamnech?
Tahle celodřevěná chata z modřínu v obci Luleč, pár minut od Vyškova, nabízí přesně to – klid, vůni lesa a poctivou stavbu, která vydrží generace.
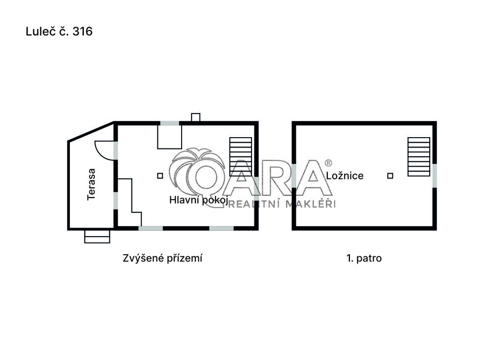
Chata byla postavena v roce 2012, má užitnou plochu 35 m² a zastavěnou 27 m².
Pozemek o velikosti 498 m² je rovinatý, oplocený a obklopený zelení.
Stavba je kvalitně zateplená (12 cm vaty, parozábrana, termoskla, šindelová střecha s izolací), má měděné rozvody elektřiny, rozvody pro užitkovou vodu a certifikovaný zděný komín.
Je ideální k rekreaci.
Luleč je vyhledávaná lokalita s krásnou přírodou, přírodním koupalištěm U Libuše, lesy a turistickými stezkami.
Perfektní dostupnost – 10 minut od Vyškova, 30 minut z Brna.
Místo, kde se dýchá lépe. Přijeďte se podívat – možná právě tady najdete svůj klid.
 
                                        Šafaříkova 201/17, Praha
Máte zájem o tento dům?
Inzerát si prohlédlo 4 lidí
 
                                Renata Válková
Chcete dostávat emailem podobné nabídky prodeje chat v Lulči?