Pronájem bytu 2+kk, Praha - Bohnice, Čimická, 44 m2 (ID: 2716730)

Čimická, Bohnice - Praha 8

18 800 Kč /za měsíc Získejte výhodnou HYPOTÉKU

(vratná jistota, náklady na bydlení 4100 Kč, poplatek za podnájem)

Prověřené firmy v Praze 8

Stěhovací služby

Výkup a prodej starého nábytku

Informace k bytu

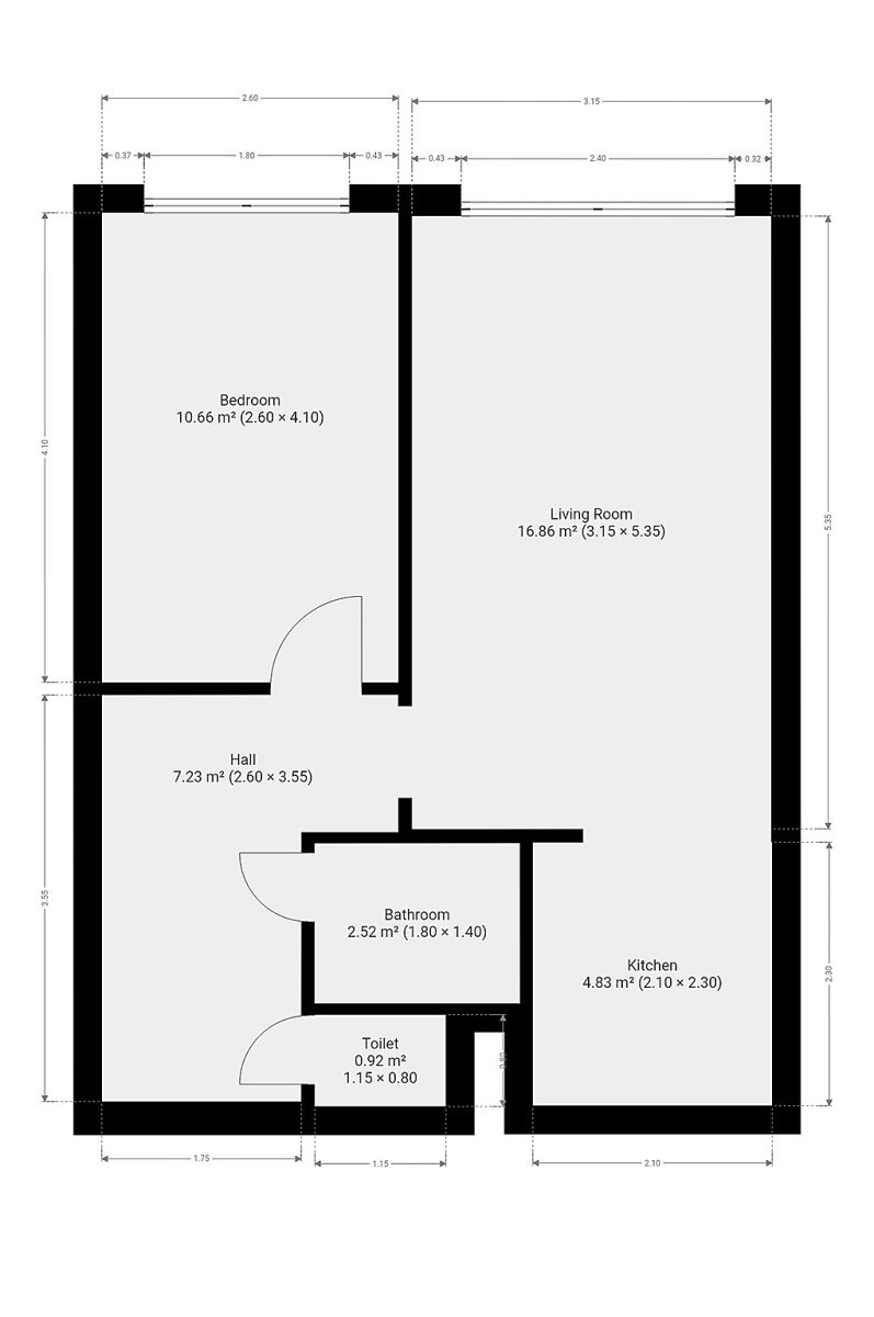
K dlouhodobému podnájmu nabízíme krásný byt o dispozici 2+kk v klidné lokalitě Praha 8 - Bohnice. Byt o celkové výměře 44 m2 se nachází ve 3. podlaží panelového domu s výtahem. K bytu patří i sklep.

Byt se nabízí plně vybavený. Kuchyně disponuje lednicí, myčkou, elektrickou troubou, varnou deskou a digestoří. Obývací část je zařízena pracovním a jídelním stolem s židlemi, pohovkou, křeslem a knihovnou. Součástí ložnice je postel a komoda. V předsíni najdeme vestavěnou šatní skříň a botník. V koupelně je vana, umyvadlo a pračka. Toaleta je umístěna samostatně.

V okolí domu najdeme nákupní centrum ODRA, prodejnu potravin, restaurace, supermarket Lidl, základní a mateřskou školu, dětské hřiště, lékárnu, poštu, kulturní dům Krakov, městskou knihovnu, lesopark Čimický háj atd. Přímo před domem je autobusová zastávka Podhajská pole (5 minut jízdy na stanici metra Kobylisy).

Domácí mazlíčci jsou v bytě povoleni.

Byt je volný k nastěhování od 16.12.2025.

Energetická třída: G (neuvedeno).

Parametry bytu

Cena
18 800 Kč /za měsíc
Poznámka k ceně
vratná jistota, náklady na bydlení 4100 Kč, poplatek za podnájem
Aktualizováno
29. 10. 2025
Adresa
Čimická, Bohnice - Praha 8
ID
N4791
Stavba
Panelová
Stav objektu
Velmi dobrý
Patro
3. z 7
Vybaveno
Ano
Typ objektu
Patrový
Lokalita objektu
Klidná část obce
Vlastnictví
Družstevní
Užitná plocha
44 m2
Podlahová plocha
44 m2
Třída energetické náročnosti
G - Mimořádně nehospodárná
Elektřina
230V
Topení
Ústřední dálkové
Doprava
Vlak, Dálnice, Silnice, MHD, Autobus
Voda
Vodovod
Sklep
Výtah
Převod do OV

Kontaktovat makléře

Máte zájem o tento byt?

Tímto, v souladu s nařízením Evropského parlamentu a Rady (EU) 2016/679, v platném znění, prohlašuji, že mi je alespoň 16 let a uděluji tak svůj souhlas se zpracováním zadaných údajů (jméno, telefon, e-mail, ip adresa) společnosti B3 Technology, s.r.o., IČ: 07330600, se sídlem Novostavby 126/23, 435 11 Lom (správce dat), za účelem předání dotazu z tohoto formuláře Vámi vybranému inzerentovi a zpětného kontaktování mé osoby. Osobní údaje bude správce zpracovávat manuálně i automaticky přímo prostřednictvím svých zaměstnanců. Informace předané tímto formulářem budou uloženy v databázi správce maximálně po dobu 10 let. Odvolání souhlasu s uložením a zpracováním poskytnutých dat lze e-mailem na info@realitypro.eu. V případě podezření na neoprávněné použití Vámi poskytnutých údajů máte právo předat podnět k šetření Úřadu pro ochranu osobních údajů. Více informací
Chystáte se prodat nemovitost?
Pomůžeme Vám!

Inzerát si prohlédlo 1 lidí

Prodejce

Miloslava Kačerová

Miloslava Kačerová

Hlídací pes

Chcete dostávat emailem podobné nabídky pronájmu bytů 2+kk v Praze 8?

Podobné nemovitosti