Prodej ubytování, Nový Bor, Gen. Svobody, 537 m2 (ID: 2715848)

Gen. Svobody, Nový Bor, Arnultovice

Cena na vyžádání /za nemovitost Získejte výhodnou HYPOTÉKU

(Cena k jednání.)

Prověřené firmy v Novém Boru

Rekonstrukce

Úklidové služby

Informace k nemovitosti

Arnultovice je část města Nový Bor v okrese Česká Lípa původně samostatná vesnice. Od Nového Boru ji odděluje silnice I/9, stavebně je s Novým Borem zcela spojena. Nový Bor je město s kompletní občanskou vybaveností ležící na rozhraní chráněných krajinných oblastí Lužické hory a České středohoří. Prochází tudy mnoho cyklotras a pěších tras.
Arnultovice leží v katastrálním území Arnultovice u Nového Boru o rozloze 7 km². Protéká jí od severu potok Šporka a na katastr Arnultovic zasahuje přírodní rezervace Klíč. Nyní vesnický charakter ztratila, je s městem Nový Bor pevně spojena. Zástavba je smíšená, převážně z rodinných domků. Na počátku čtvrti je základní škola a Parkhotel. Na Arnultovice ze severu přímo navazuje obec Polevsko.

Nabízená nemovitost se skládá ze dvou staveb o celkové zastavěné ploše 471 m2 a zahrady o výměře 286 m2.

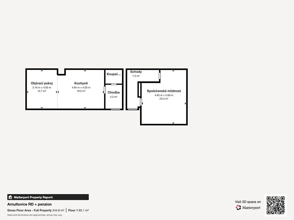
Rodinný dům č.p.122 je samostatně stojící zděný objekt, částečně podsklepený, s jedním nadzemním podlažím a podkrovím. V přízemí jsou dva byty dispozice 1+1, ale jen s jedním sociálním zázemím, v podkroví (patře) pak byt dispozice 6+1 (v minulosti také využívaný k ubytovacím službám). Vytápění je ústřední, plynový kotel, nefunkční, teplá voda je z boileru. Stáří domu je cca 80 roků. V současné době již několik let není dům užíván. Je napojen na elektřinu, veřejný vodovod, kanalizaci a plyn. Objekt k rekonstrukci. Užitná plocha 261 m2.
Virtuální prohlídka a fotografie interiéru domu k dispozici na vyžádání.

Dále se jedná o stavbu bez čp, která se dělí na část určenou k bydlení – řadový krajní zděný objekt, podsklepený, dvoupodlažní s podkrovím. Fasáda je zateplená, okna jsou plastová, vnitřní dveře do obložkových zárubní. Podlahy jsou z dlažby a vinylu. Schody jsou kovové s dřevěnými nášlapy. Kuchyň je s linkou, varná deska, spotřebiče. WC jsou splachovací, koupelny s vanou, sprchový kout, umyvadla. Vytápění je ústřední podlahové, alternativně krbová vložka, teplá voda je z kotle. Dispozičně jde o byt 3+kk. Objekt byl postaven v roce 2014, stav je velmi dobrý, celkové vybavení je standardní. Objekt je napojen na elektřinu, veřejný vodovod přes dům č.p.122 (odečtový vodoměr), kanalizaci a plyn. Užitná plocha 135 m2.

Druhá část je tvořena ubytovacím zařízení, které je situováno v zadní část objektu na pozemku p.č. 791/2, se samostatným vchodem i přípojkami. Dvoupodlažní zděný objekt, fasáda je zakázková novodobá, okna jsou plastová, střešní dřevěná. Vnitřní dveře jsou náplňové, podlahy jsou z dlažby a koberců. V objektu je společná kuchyňka a tři pokoje, každý s vlastní koupelnou a WC. Schody jsou betonové s kobercem.
Vytápění je ústřední, plynový kotel, teplá voda je ze zásobníku od kotle. V přízemí se kromě
kuchyňky nachází velká dvougaráž. Objekt je z roku 1940, původně jako hospodářské stavení, před několika lety proběhla celková rekonstrukce, se změnou využití na ubytovací zařízení. Je napojen na elektřinu, veřejný vodovod (z domu č.p. 122 s odečtovým vodoměrem), kanalizaci a plyn. Užitná plocha 141 m2.

Jedná se o atypickou nemovitost s rozmanitými možnostmi využití. Objekt v současné době využívaný jako penzion lze přebudovat na bytové jednotky příp. na objekt občanské vybavenosti (kanceláře).

Parametry nemovitosti

Cena
Cena na vyžádání Spočítat hypotéku
Poznámka k ceně
Cena k jednání.
Aktualizováno
28. 10. 2025
Adresa
Gen. Svobody, Nový Bor, Arnultovice
ID
1782
Stavba
Cihlová
Stav objektu
Velmi dobrý
Užitná plocha
537 m2
Zastavěná plocha
471 m2
Podlahová plocha
757 m2
Plocha zahrady
286 m2
Garáž
Parkování

Kontaktovat makléře

Máte zájem o tuto nemovistost?

Tímto, v souladu s nařízením Evropského parlamentu a Rady (EU) 2016/679, v platném znění, prohlašuji, že mi je alespoň 16 let a uděluji tak svůj souhlas se zpracováním zadaných údajů (jméno, telefon, e-mail, ip adresa) společnosti B3 Technology, s.r.o., IČ: 07330600, se sídlem Novostavby 126/23, 435 11 Lom (správce dat), za účelem předání dotazu z tohoto formuláře Vámi vybranému inzerentovi a zpětného kontaktování mé osoby. Osobní údaje bude správce zpracovávat manuálně i automaticky přímo prostřednictvím svých zaměstnanců. Informace předané tímto formulářem budou uloženy v databázi správce maximálně po dobu 10 let. Odvolání souhlasu s uložením a zpracováním poskytnutých dat lze e-mailem na info@realitypro.eu. V případě podezření na neoprávněné použití Vámi poskytnutých údajů máte právo předat podnět k šetření Úřadu pro ochranu osobních údajů. Více informací
Chystáte se prodat nemovitost?
Pomůžeme Vám!

Inzerát si prohlédlo 1 lidí

Prodejce

Marcela Koutná

Marcela Koutná

Hlídací pes

Chcete dostávat emailem podobné nabídky prodeje ubytování v Novém Boru?

Podobné nemovitosti