Pronájem bytu 1+kk, Praha - Modřany, Soukalova, 33 m2

Soukalova, Praha, Modřany

16 000 Kč /za měsíc Získejte výhodnou HYPOTÉKU

(+zálohy na energie a služby)

Prověřené firmy v Praze 4

Stěhovací služby

Výkup a prodej starého nábytku

Informace k bytu

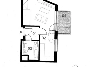
K pronájmu útulný byt 1+kk o výměře 33 m2 s garážovým stáním a zděným sklepem 2,1 m2. Byt se nachází ve 3.NP nízkoenergetické cihlové novostavby s výtahem v ulici Soukalova 2180/4, v Praze 4 v Modřanech. Dům byl zkolaudován na v roce 2016, byt je částečně vybaven kuchyňskou linkou se spotřebiči a nábytkem dle fotografií. Byt sestává z obývací místnosti s kuchyňským koutem a výstupem na prostorný balkón 4,4 m2, z předsíně je pak vstup do koupelny s vanou a záchodem. Bytové jednotce dominují příjemně velká okna. Byt je volný a tudíž vhodný k okamžitému nastehování. Dům zabezpečen kamerovým systémem a vstupem na čipy. Výborná dostupnost MHD i autem, zastávka MHD "Poliklinika Modřany" kousek od domu. Kompletní občanská vybavenost, v pěší dostupnosti množství obchodů a restaurací, lékař, školy, školky. Kousek se nachází přírodní park Modřanská rokle, řeka, cyklostezka..

Měsíční nájemné 16.000 Kč + zúčtovatelné zálohy na služby 2.822 Kč + převod elektřiny na nájemce.
Vratná kauce 36.000 Kč + odměna RK 16.000 Kč.
Prosíme zájemce max 2 osoby bez domácích zvířat.

Parametry bytu

Cena
16 000 Kč /za měsíc
Poznámka k ceně
+zálohy na energie a služby
Aktualizováno
23. 10. 2025
Adresa
Soukalova, Praha, Modřany
ID
0073
Stavba
Cihlová
Stav objektu
Velmi dobrý
Patro
3. z 8
Vybaveno
Částečně
Vlastnictví
Osobní
Užitná plocha
33 m2
Třída energetické náročnosti
A - Mimořádně úsporná
Ukazatel energetické náročnosti
73 kWh/m2 za rok
Elektřina
400V
Odpad
Veřejná kanalizace
Doprava
MHD
Voda
Vodovod
Topné těleso
Radiátory
Zdroj topení
Ústřední dálkové
Balkon
Sklep
Výtah

Kontaktovat makléře

Realitní kancelář

Ondřej Pravdivý REALITY

nám. Krále Jiřího z Poděbrad 626, Řevnice

Chystáte se prodat nemovitost?
Pomůžeme Vám!

Máte zájem o tento byt?

Tímto, v souladu s nařízením Evropského parlamentu a Rady (EU) 2016/679, v platném znění, prohlašuji, že mi je alespoň 16 let a uděluji tak svůj souhlas se zpracováním zadaných údajů (jméno, telefon, e-mail, ip adresa) společnosti B3 Technology, s.r.o., IČ: 07330600, se sídlem Novostavby 126/23, 435 11 Lom (správce dat), za účelem předání dotazu z tohoto formuláře Vámi vybranému inzerentovi a zpětného kontaktování mé osoby. Osobní údaje bude správce zpracovávat manuálně i automaticky přímo prostřednictvím svých zaměstnanců. Informace předané tímto formulářem budou uloženy v databázi správce maximálně po dobu 10 let. Odvolání souhlasu s uložením a zpracováním poskytnutých dat lze e-mailem na info@realitypro.eu. V případě podezření na neoprávněné použití Vámi poskytnutých údajů máte právo předat podnět k šetření Úřadu pro ochranu osobních údajů. Více informací
Chystáte se prodat nemovitost?
Pomůžeme Vám!

Inzerát si prohlédlo 1 lidí

Prodejce

Ing. Ondřej Pravdivý MRE

Ing. Ondřej Pravdivý MRE

Hlídací pes

Chcete dostávat emailem podobné nabídky pronájmu bytů 1+kk v Praze 4?

Podobné nemovitosti