Prodej kanceláře, Netřebice, 85 m2

Netřebice

4 250 000 Kč /za nemovitost HYPOTÉKA od 18 995 Kč /za měsíc
Prověřené firmy v Netřebicích

Informace k nemovitosti

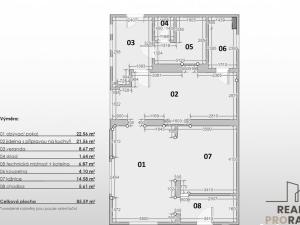
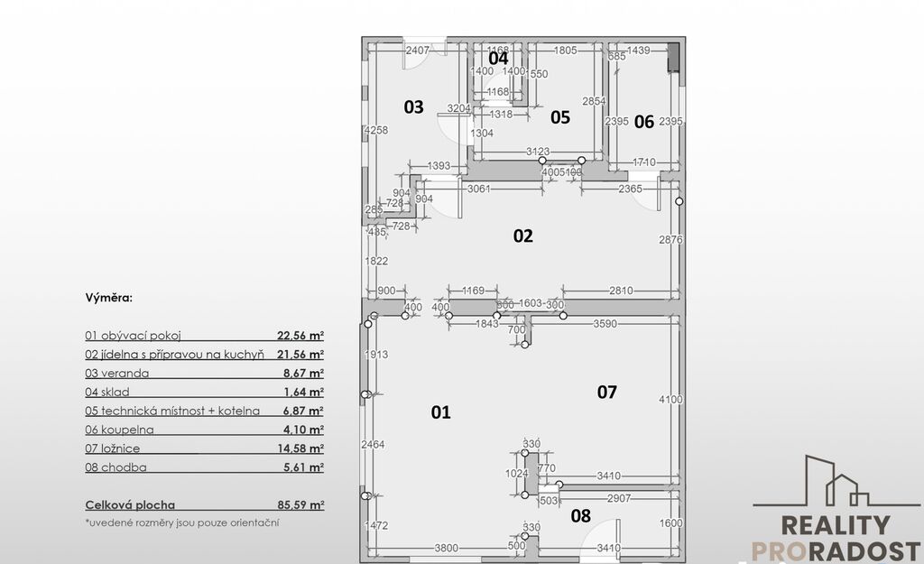
Hledáte sídlo pro svoji logistickou firmu se zahradou vhodnou na parkoviště nebo vystavení další budovy a prázdnou půdou vhodnou k vestavbě na tahu Č. Budějovice - Dolní Dvořiště? Pak doražte do Netřebic - menší vesničky vzdálené 20 minut autem od krajského města. Na pozemku o celkové ploše 701 m2 se nachází dům s obytným přízemím a prázdnou půdou. Ateliérové uspořádání přízemí Vás na první pohled zaujme a velký prostor v zadní části to jen podtrhne. Hned za ní je prostorná koupelna s vanou a WC a úplně vzadu pak najdete kotelnu s el. kotlem a bojlerem, velkou verandu vhodnou např. jako zimní zahradu a vstup na zmiňovanou půdu. Zde si můžete vybudovat krásný prostor v podobě open-space kanceláří či archivů. Obývací pokoj je propojen s ložnicí a vytváří tak jeden velký otevřený prostor s výhledem na zahradu, která je přímo přes cestu s celkovou plochou 524 m2. Na zahradě můžete zbudovat velké parkoviště, garáž nebo i další nemovitost. Dům prošel rozsáhlou rekonstrukcí - plastová okna, ústřední topení, omítky, podlahy, rozvody, fasáda, střecha. Je napojen na obecní vodovod i kanalizaci a samozřejmě elektřinu. Plyn v obci je. Auta můžete pohodlně parkovat na svém pozemku přímo před domem nebo na zmíněné zahradě. Veškerou občanskou vybavenost najdete v nedaleké Kaplici a na Lipno to budete mít skoro stejně daleko jako do Budějovic. Strategická poloha k dálnici D3 a do Rakouska může být pro podnikání do budoucna velmi zajímavá. Tak se příjeďte přesvědčit na vlastní oči.

Parametry nemovitosti

Cena
4 250 000 Kč /za nemovitost Spočítat hypotéku
Aktualizováno
21. 10. 2025
Adresa
Netřebice
ID
007
Stavba
Smíšená
Stav objektu
Velmi dobrý
Patro
1. z 2
Vybaveno
Ne
Typ objektu
Patrový
Lokalita objektu
Klidná část obce
Užitná plocha
85 m2
Zastavěná plocha
130 m2
Podlahová plocha
701 m2
Plocha zahrady
550 m2
Třída energetické náročnosti
D - Méně úsporná
Elektřina
230V
Odpad
Veřejná kanalizace
Komunikace
Asfaltová
Telekomunikace
Internet
Doprava
Silnice, Autobus
Voda
Vodovod
Převod do OV
Parkování

Kontaktovat makléře

Máte zájem o tuto nemovistost?

Tímto, v souladu s nařízením Evropského parlamentu a Rady (EU) 2016/679, v platném znění, prohlašuji, že mi je alespoň 16 let a uděluji tak svůj souhlas se zpracováním zadaných údajů (jméno, telefon, e-mail, ip adresa) společnosti B3 Technology, s.r.o., IČ: 07330600, se sídlem Novostavby 126/23, 435 11 Lom (správce dat), za účelem předání dotazu z tohoto formuláře Vámi vybranému inzerentovi a zpětného kontaktování mé osoby. Osobní údaje bude správce zpracovávat manuálně i automaticky přímo prostřednictvím svých zaměstnanců. Informace předané tímto formulářem budou uloženy v databázi správce maximálně po dobu 10 let. Odvolání souhlasu s uložením a zpracováním poskytnutých dat lze e-mailem na info@realitypro.eu. V případě podezření na neoprávněné použití Vámi poskytnutých údajů máte právo předat podnět k šetření Úřadu pro ochranu osobních údajů. Více informací
Chystáte se prodat nemovitost?
Pomůžeme Vám!

Inzerát si prohlédlo 1 lidí

Prodejce

Realitní poradce 501

Realitní poradce 501

Hlídací pes

Chcete dostávat emailem podobné nabídky prodeje kanceláří v Netřebicích (okr. Český Krumlov)?