Pronájem bytu 2+kk, Český Krumlov - Vyšný, Vyšenská, 56 m2

Vyšenská, Český Krumlov, Vyšný

13 700 Kč /za měsíc Získejte výhodnou HYPOTÉKU

(+popl. 2300, + elektřina. Kauce 30.000,-, odměna RK 16.000,-.)

Prověřené firmy v Českém Krumlově

Výkup a prodej starého nábytku

Informace k bytu

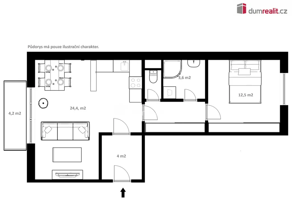
Dumrealit.cz Vám zprostředkuje pronájem bytu 2+kk s balkonem, o 56 m², ve druhém patře patře třípatrového zděného domu bez výtahu, v klidné části Českého Krumlova, ul. Vyšenská, sídliště Vyšný.

Nadstandardní byt prošel v nedávné době kompletní revitalizací a nabízí se k pronájmu bez vybavení/nábytku. Sestává ze zádveří, obýváku o 24,4 m² s moderní kuchyňskou linkou s dostatkem prostoru pro jídelní stůl a s přístupem na balkon o cca 4,2 m², úplně nové koupelny se sprchovým koutem, umyvadlem s místem pro pračku, chodby s vestavěnou skříní a ložnice o o cca 12,5 m².

Dům je průběžně udržovaný, klidný. Bezproblémové parkování na veřejném parkovišti před domem. Zastávka MHD 258 m od domu.

Měsíční nájem činní 13.700,- plus 2.300,- jako zálohová platba na vodu, TUV a topení, s termínem platby v měsíci předcházejícím, plus elektřina na samostatnou smlouvu nájemníka s dodavatelem (E.ON). Kauce 30.000,-, odměna RK za zprostředkování příležitosti uzavřít Smlouvu o nájmu 16.000,-. Byt je vhodný spíše pro menší počet osob 1-3. Volné po dohodě Ev. číslo: 652845.

Parametry bytu

Cena
13 700 Kč /za měsíc
Poznámka k ceně
+popl. 2300, + elektřina. Kauce 30.000,-, odměna RK 16.000,-.
Aktualizováno
19. 12. 2025
Adresa
Vyšenská, Český Krumlov, Vyšný
ID
653459
Stavba
Cihlová
Stav objektu
Velmi dobrý
Patro
3. z 4
Vlastnictví
Družstevní
Užitná plocha
56 m2
Podlahová plocha
56 m2
Třída energetické náročnosti
B - Velmi úsporná
Ukazatel energetické náročnosti
74 kWh/m2 za rok
Topení
Ústřední dálkové
Balkon
Sklep

Kontaktovat makléře

Máte zájem o tento byt?

Tímto, v souladu s nařízením Evropského parlamentu a Rady (EU) 2016/679, v platném znění, prohlašuji, že mi je alespoň 16 let a uděluji tak svůj souhlas se zpracováním zadaných údajů (jméno, telefon, e-mail, ip adresa) společnosti B3 Technology, s.r.o., IČ: 07330600, se sídlem Novostavby 126/23, 435 11 Lom (správce dat), za účelem předání dotazu z tohoto formuláře Vámi vybranému inzerentovi a zpětného kontaktování mé osoby. Osobní údaje bude správce zpracovávat manuálně i automaticky přímo prostřednictvím svých zaměstnanců. Informace předané tímto formulářem budou uloženy v databázi správce maximálně po dobu 10 let. Odvolání souhlasu s uložením a zpracováním poskytnutých dat lze e-mailem na info@realitypro.eu. V případě podezření na neoprávněné použití Vámi poskytnutých údajů máte právo předat podnět k šetření Úřadu pro ochranu osobních údajů. Více informací
Chystáte se prodat nemovitost?
Pomůžeme Vám!

Inzerát si prohlédlo 33 lidí

Prodejce

Jiří Kejšar

Jiří Kejšar

Hlídací pes

Chcete dostávat emailem podobné nabídky pronájmu bytů 2+kk v Českém Krumlově?

Podobné nemovitosti