Pronájem kanceláře, Ostrava, Kralická, 128 m2

Kralická, Ostrava, Mariánské Hory a Hulváky

29 400 Kč /za měsíc Získejte výhodnou HYPOTÉKU
Prověřené firmy v Ostravě

Informace k nemovitosti

Nabízíme reprezentativní kancelářské prostory, nacházející se v přízemí budovy na ulici Kralická v Ostravě–Mariánských Horách, v klidné a dobře dostupné lokalitě.
Budova, ve které se tyto kanceláře nacházejí, byla zkolaudována v roce 2011 a je ve výborném stavu.

Tyto prostory poskytují profesionální zázemí pro vaše podnikání a zároveň nabízejí dostatek soukromí i pohodlí.

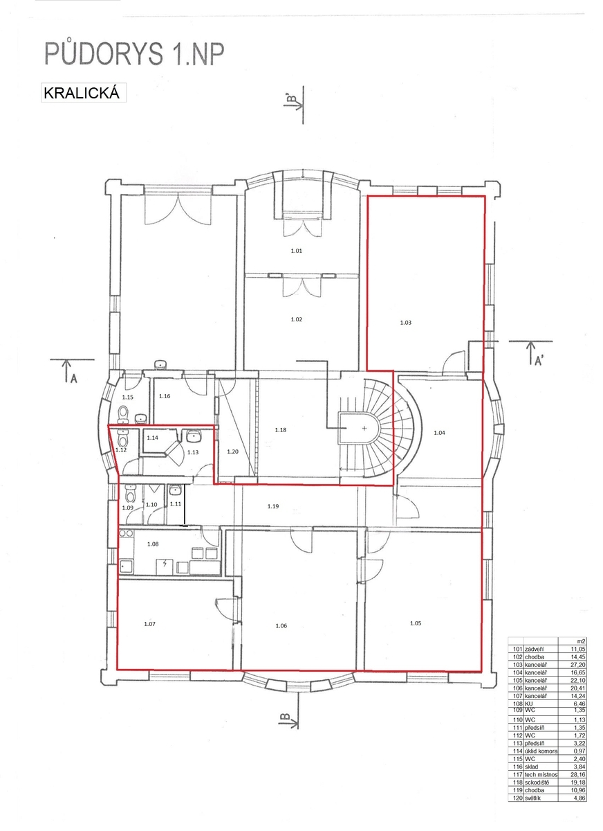
Prostory tvoří pět samostatných kanceláří o velikosti od 14 m² až po 27 m², propojených vlastní chodbou. Součástí je kuchyňka a oddělené dámské a pánské toalety, určené výhradně pro tyto prostory.

Kanceláře jsou nově vymalované a mají nové koberce, takže působí velmi čistě a upraveně.

Je zde možnost parkování na ulici, případně za poplatek v uzavřeném dvoře.
Samozřejmostí je klimatizace, ústřední topení, kamerový systém uvnitř i vně budovy, elektronické zabezpečení a dálkové ovládání vstupu.
Nechybí rozvody datové sítě, centrální vysavač ani eurookna s trojsklem, která zajišťují klid a tepelný komfort. Nájemci mohou využít také úschovnu kol.

Podlahy v kancelářích pokrývají koberce, v ostatních částech je dlažba.
Budova se nachází v klidné, avšak výborně dostupné části Mariánských Hor, v blízkosti tramvajové, trolejbusové i autobusové zastávky.

Prostory jsou k dispozici ihned.

Tyto prostory jsou ideální pro menší firmu, která hledá reprezentativní, bezpečné a pohodlné zázemí v klidné lokalitě s výbornou dostupností.

Pro více informací nebo sjednání prohlídky mě neváhejte kontaktovat.

Parametry nemovitosti

Cena
29 400 Kč /za měsíc
Aktualizováno
16. 10. 2025
Adresa
Kralická, Ostrava, Mariánské Hory a Hulváky
ID
1639
Stavba
Cihlová
Stav objektu
Velmi dobrý
Patro
1. z 3
Vybaveno
Ne
Typ objektu
Přízemní
Lokalita objektu
Centrum obce
Užitná plocha
128 m2
Zastavěná plocha
264 m2
Podlahová plocha
128 m2
Třída energetické náročnosti
G - Mimořádně nehospodárná
Plyn
Plynovod
Odpad
Veřejná kanalizace
Telekomunikace
Internet
Doprava
Vlak, Silnice, MHD, Autobus
Převod do OV

Kontaktovat makléře

Máte zájem o tuto nemovistost?

Tímto, v souladu s nařízením Evropského parlamentu a Rady (EU) 2016/679, v platném znění, prohlašuji, že mi je alespoň 16 let a uděluji tak svůj souhlas se zpracováním zadaných údajů (jméno, telefon, e-mail, ip adresa) společnosti B3 Technology, s.r.o., IČ: 07330600, se sídlem Novostavby 126/23, 435 11 Lom (správce dat), za účelem předání dotazu z tohoto formuláře Vámi vybranému inzerentovi a zpětného kontaktování mé osoby. Osobní údaje bude správce zpracovávat manuálně i automaticky přímo prostřednictvím svých zaměstnanců. Informace předané tímto formulářem budou uloženy v databázi správce maximálně po dobu 10 let. Odvolání souhlasu s uložením a zpracováním poskytnutých dat lze e-mailem na info@realitypro.eu. V případě podezření na neoprávněné použití Vámi poskytnutých údajů máte právo předat podnět k šetření Úřadu pro ochranu osobních údajů. Více informací
Chystáte se prodat nemovitost?
Pomůžeme Vám!

Inzerát si prohlédlo 1 lidí

Prodejce

Markéta Cieslarová

Markéta Cieslarová

Hlídací pes

Chcete dostávat emailem podobné nabídky pronájmu kanceláří v Ostravě?

Podobné nemovitosti