Prodej bytu 3+kk, Praha - Vysočany, Kolmá, 74 m2 (ID: 2700808)

Kolmá, Praha 9 - Vysočany

9 850 000 Kč HYPOTÉKA od 44 024 Kč /za měsíc

(včetně provize RK)

Prověřené firmy v Praze 9

Stěhovací služby

Výkup a prodej starého nábytku

Informace k bytu

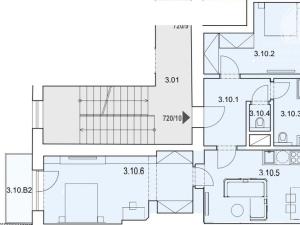
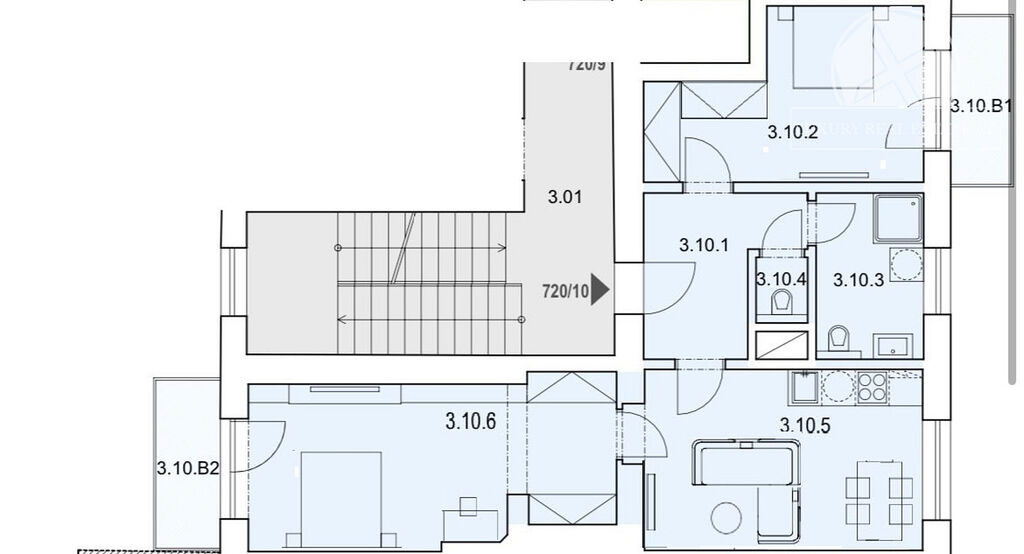
Poslední volný byt 3+KK s 2 balkony, TRIANGLE B (byt č.10)

Tento poslední volný byt, kolaudovaný v loňském roce (2024), byl užíván obchodním partnerem developera. Nyní jej uvolňujeme do prodeje a může být Vás za skvělou cenu. Aktuální cena je platná při rezervaci do 30.10.2025

Nejedná se o aukci - rozhodujícím faktorem bude pouze rychlost jednání a podpis rezervační smlouvy. Neváhejte tedy-

Nabízíme k prodeji byt 3+KK s plochou přes 74 m² se dvěma balkóny v novostavbě kolaudované v roce 2024 – jedná se o krásné bydlení nebo také skvělou investici s klidné části Prahy 9 - Vysočan. Ideálně řešená dispozice a plocha bytu je účelně rozdělena do jednotlivých místností, nechybí hned 2 ložnice s vlastní lodžií či obývací pokoj s plně vybavenou kuchyňskou linkou vč. spotřebičů. V koupelně dostatek místa pro pračku a sušičku, sprchový kout, WC a k dispozici je také další oddělená toaleta - tak, jak to u rodinných typů bytu potřebné. Orientace oken na východ a západ dodávají bytu dostatečný přísun denního světla.

V suterénu domu budete mít i zabezpečenou sklepní kóji, kam lze umístit sezónní věci.

Výhodou této lokality je velmi snadná dostupnost všech služeb, metro 3 minuty od domu a zcela jistě oceníte i možnost parkovat přímo před domem bez nutnosti investice do parkovacího stání. Existuje jen málo míst, kde tuto kombinaci v Praze naleznete.

Díky dispozičnímu řešení je tento byt vhodnější především pro mladé páry, popřípadě rodinu nevyžadující zrovna obrovský obývací pokoj. Detaily naleznete v přiloženém půdorysu. Fotografie upraveny pomocí AI pro představu budoucího vybavení nábytkem (byt se prodává vybavený kuchyňskou linkou vč. spotřebičů)

Využijte této mimořádně zajímavé nabídky. Jedná se o krásný nový byt za skvělou cenu.

Parametry bytu

Cena
9 850 000 Kč Spočítat hypotéku
Poznámka k ceně
včetně provize RK
Aktualizováno
16. 10. 2025
Adresa
Kolmá, Praha 9 - Vysočany
ID
0284
Stavba
Cihlová
Stav objektu
Novostavba
Vybaveno
Částečně
Lokalita objektu
Klidná část obce
Vlastnictví
Osobní
Užitná plocha
74 m2
Třída energetické náročnosti
C - Úsporná

Kontaktovat makléře

Máte zájem o tento byt?

Tímto, v souladu s nařízením Evropského parlamentu a Rady (EU) 2016/679, v platném znění, prohlašuji, že mi je alespoň 16 let a uděluji tak svůj souhlas se zpracováním zadaných údajů (jméno, telefon, e-mail, ip adresa) společnosti B3 Technology, s.r.o., IČ: 07330600, se sídlem Novostavby 126/23, 435 11 Lom (správce dat), za účelem předání dotazu z tohoto formuláře Vámi vybranému inzerentovi a zpětného kontaktování mé osoby. Osobní údaje bude správce zpracovávat manuálně i automaticky přímo prostřednictvím svých zaměstnanců. Informace předané tímto formulářem budou uloženy v databázi správce maximálně po dobu 10 let. Odvolání souhlasu s uložením a zpracováním poskytnutých dat lze e-mailem na info@realitypro.eu. V případě podezření na neoprávněné použití Vámi poskytnutých údajů máte právo předat podnět k šetření Úřadu pro ochranu osobních údajů. Více informací
Chystáte se prodat nemovitost?
Pomůžeme Vám!

Inzerát si prohlédlo 1 lidí

Prodejce

Michal Kopejtko

Michal Kopejtko

Hlídací pes

Chcete dostávat emailem podobné nabídky prodeje bytů 3+kk v Praze 9?

Podobné nemovitosti