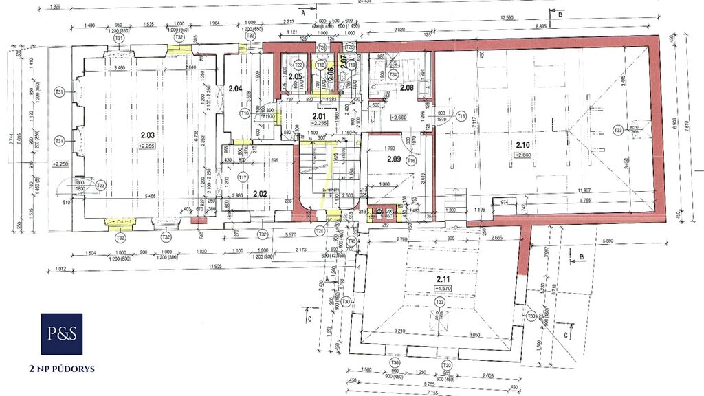
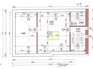
Prodej činžovního domu, Třebíč, Blahoslavova, 533 m2 (ID: 2700667)

Blahoslavova, Třebíč, Zámostí

29 700 000 Kč /za nemovitost HYPOTÉKA od 132 741 Kč /za měsíc
Prověřené firmy v Třebíči

Informace k nemovitosti

V srdci Třebíče stojí dům, který pamatuje celé generace. Objekt, postavený v roce 1853, je víc než jen zděná stavba — je to kus historie, který přežil proměny města i doby a dodnes nabízí bezpečné útočiště i pevný investiční základ.


Historie a atmosféra

Za masivními zdmi a původními architektonickými prvky se ukrývá příběh poctivé řemeslné práce a sousedských vztahů, které tvořily město po více než 170 let.
Dům prošel zásadní rekonstrukcí v roce 2003, díky které si zachoval svůj historický ráz, ale získal nový, funkční život.
Vysoké stropy, velká okna a vzdušné prostory dnes tvoří ideální zázemí pro kanceláře, obchody i bydlení — s možností úprav podle potřeb nového majitele.

Strategická lokalita: město, které roste

Třebíč je okresní město s bohatou historií, památkami UNESCO a výbornou dopravní dostupností. Žije zde přes 35 000 obyvatel a město se stabilně rozvíjí — nejen v oblasti služeb, ale i průmyslu.
Velkou roli hraje i blízkost Jaderné elektrárny Dukovany, která je jedním z největších zaměstnavatelů v regionu. Navíc se připravuje stavba nového bloku elektrárny, která v příštích letech přinese tisíce pracovních míst pro projektanty, inženýry, řemeslníky a doprovodné služby.
Tato investice výrazně posiluje poptávku po kvalitním nájemním bydlení i komerčních prostorách.

Objekt tak těží z výjimečné polohy — klidná část města, ale pár kroků do centra, perfektní občanská vybavenost, školy, obchody, kavárny i zastávky MHD. To je kombinace, kterou nájemci ocení dnes i za deset let.

Ozvěte se a řekněte si o prezentaci na míru — včetně reálných fotografií, plánů a všech detailů, které potřebujete k rozhodnutí.

Jak na tomto domě vydělat?

Krátkodobě:
Převeďte dům na SVJ, rozdělte na samostatné byty, udělejte kvalitní rekonstrukci interiérů a prodejte jednotlivé jednotky. Historická atmosféra a nedostatek krásných staroměstských bytů vám umožní cílit na náročnější klientelu.

Dlouhodobě:
Zachovejte stávající nájemní mix — kanceláře, obchody, sklady. Optimalizujte dispozice a rozvíjejte sklepní a půdní prostory. Díky Dukovanům a silné místní ekonomice bude o nájem stabilně zájem. Již nyní mám jistého nájemce, který podepíše nájemní smlouvu okamžitě po zapsání do katastru nemovitostí Vás jako nového vlastníka.
Odhad ročního příjmu: 1,3–1,5 mil. CZK s možností dalšího růstu.

Proč právě tento objekt?

- Tradice & historie — dům s duší, který bude mít vždy svou hodnotu.
- Strategická poloha — stabilní město s růstem díky Dukovanům, UNESCO a službám.
- Okamžitý výnos — nájemce zajištěn, nulové riziko prázdných prostor.
- Flexibilita využití — byty, kanceláře, obchody, rozvoj půd a sklepů.
- Bezpečné uložiště kapitálu — investice chránící před inflací.

Chcete vědět víc?

Ať už uvažujete o strategické investici, nebo hledáte jedinečný objekt pro vlastní sídlo firmy, kanceláře nebo stylové bydlení, jsme vám zcela otevření a rádi s vámi vše probereme.

Připravíme pro vás:
- Podrobný finanční model (výnos, ROI, scénáře)
- Osobní prohlídku objektu s majitelem
- Doporučení, jak z domu vytěžit maximum — ať už z krátkodobého flipu, dlouhodobého nájmu, nebo vlastního užívání

V případě spolupráci s naši RK, kromě kouzelné nemovitosti, vždy dostanete zdarma:
• konzultační servis
• jazyková vybavenost (mluvíme česky, anglicky, francouzsky, italsky)
• právnický servis od AK Hafner & Partneři
• servis daňové amortizace
• analýzy trhu

V případě zájmu mě prosím kontaktujte pro bližší informace nebo k domluvení osobní prohlídky. Ráda Vám nemovitost představím a budu se těšit na setkání.

Parametry nemovitosti

Cena
29 700 000 Kč /za nemovitost Spočítat hypotéku
Aktualizováno
16. 10. 2025
Adresa
Blahoslavova, Třebíč, Zámostí
ID
K.TR.12
Stavba
Cihlová
Stav objektu
Velmi dobrý
Patro
1. z 4
Vybaveno
Částečně
Lokalita objektu
Centrum obce
Užitná plocha
533 m2
Zastavěná plocha
303 m2
Plyn
Plynovod
Odpad
Veřejná kanalizace
Komunikace
Dlážděná, Asfaltová
Doprava
Silnice, MHD, Autobus
Voda
Vodovod
Topné těleso
Radiátory
Zdroj topení
Plynový kotel
Výtah
Parkování

Kontaktovat makléře

Realitní kancelář

Protsenko & Co.

Pod Havránkou 7/10, Praha

Chystáte se prodat nemovitost?
Pomůžeme Vám!

Máte zájem o tuto nemovistost?

Tímto, v souladu s nařízením Evropského parlamentu a Rady (EU) 2016/679, v platném znění, prohlašuji, že mi je alespoň 16 let a uděluji tak svůj souhlas se zpracováním zadaných údajů (jméno, telefon, e-mail, ip adresa) společnosti B3 Technology, s.r.o., IČ: 07330600, se sídlem Novostavby 126/23, 435 11 Lom (správce dat), za účelem předání dotazu z tohoto formuláře Vámi vybranému inzerentovi a zpětného kontaktování mé osoby. Osobní údaje bude správce zpracovávat manuálně i automaticky přímo prostřednictvím svých zaměstnanců. Informace předané tímto formulářem budou uloženy v databázi správce maximálně po dobu 10 let. Odvolání souhlasu s uložením a zpracováním poskytnutých dat lze e-mailem na info@realitypro.eu. V případě podezření na neoprávněné použití Vámi poskytnutých údajů máte právo předat podnět k šetření Úřadu pro ochranu osobních údajů. Více informací
Chystáte se prodat nemovitost?
Pomůžeme Vám!

Inzerát si prohlédlo 0 lidí

Prodejce

Tina Nesibová

Tina Nesibová

Hlídací pes

Chcete dostávat emailem podobné nabídky prodeje činžovních domů v Třebíči?

Podobné nemovitosti