Pronájem kanceláře, Praha - Vinohrady, Chrudimská, 326 m2 (ID: 2700449)

Chrudimská, Praha, Vinohrady

350 Kč /za metr čtvereční / měsíc Získejte výhodnou HYPOTÉKU

(cena od 350,- /m2 v závislosti na délce nájemní smlouvy)

Prověřené firmy v Praze 3

Stěhovací služby

Výkup a prodej starého nábytku

Informace k nemovitosti

Prostory a nájemné

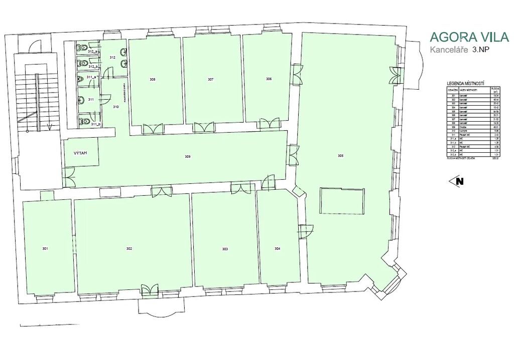
Pronajímatel nabízí zájemci od 1.4.2026 klimatizované nebytové prostory ve 3. NP (s výtahem) v secesní vile, která nabízí typické historické prostorné místnosti s velkou plochou a vysokými stropy se štukovou výzdobou. Dostatek světla v interiérech zajišťuje nárožní poloha vily s jihozápadní orientací, vysokými členěnými obloukovými okny, které doplňují vnitřní prosklené dveře s dekorativními motivy secese.
Vila, která je součástí komplexu AGORA FLORA nabízí celkem čtyři nadzemní podlaží, přičemž nabízený nebytový prostor o výměře 325,35 m2 se nachází ve 3.NP. Prostory jsou svým charakterem vhodné pro využití jako kanceláře, případně po rekolaudaci i jako ordinace lékařů.

Pro případného zájemce o pronájem větší plochy je možné využít i prostory o podlaží níže, čímž by vznikla plocha celkem 650 m2.

Popis objektu a lokalita

Objekt „VILA“ je součástí multifunkčního komplexu AGORA FLORA, který vznikl revitalizací areálu bývalého elektrotechnického závodu Duda na Královských Vinohradech. Komplex AGORA FLORA má exkluzivní polohu, nachází se v centru Vinohrad, a je výborně dostupný pražskou MHD i autem. Stanice metra A – Flora, tramvajové i autobusové zastávky jsou v bezprostřední blízkosti objektu.

V rámci projektu Agora Flora bylo vybudováno:
• bytové jednotky – 54 jednotek
• nebytové prostory – kanceláře, maloobchod, relax
• podzemní parkovací stání

Komplex AGORA FLORA je ohraničen ulicemi Chrudimská, Slezská a Hradecká, má vlastní pasáž s obchody propojující Chrudimskou a Hradeckou ulici. V objektu se nachází mimo jiné:
• prodejna PENNY,
• fitness centrum,
• kancelářské prostory,
• ordinace psychoterapeuta,
• studio Hot jógy,
• kadeřnictví, manikúra,
• ordinace dětských lékařů
• ordinace zubních lékařů
• klinika stomatologie a zubní hygieny,
• psychoterapeutická klinika ALETHEA,
• restaurace, kavárna ,
• půjčovna sportovních potřeb (lyže, kola),
• servis jízdních kol

Nájemné: cena k jednání, od 350,- Kč/m2/měsíc (bez DPH).
K pronájmu: od 1.4.2026
Zálohy na služby (aktuální): 145,- Kč/m2/měsíc vč. DPH (vč. záloh na vlastní spotřebu energií), zúčtovatelná záloha s ročním vyúčtováním
Doba nájmu: preferujeme nájemní smlouvu na dobu určitou, min. 3 let.
Jistota: Jistota ve výši 2měsíčních nájmů vč. DPH a 2 záloh na poskytované služby bude uhrazena při podpisu smlouvy, resp. nejpozději v den počátku nájmu.
Indexace nájemného: roční indexace nájemného (dle aktuálních údajů ČSÚ)

Pronájem garážového stání je možný v podzemních garážích objektu.

Technická specifikace nebytového prostoru:
o elektrická energie, přívod teplé a studené vody
o centrální vytápění
o klimatizace
o vlastní sociální zázemí
o vstup do společných prostor na čipy
o výtah (přímo do prostor)

Vybavení budovy:
o ostraha 24/7
o EPS, CCTV
o vstup na čipy
o podzemní garáže

Pronajímatel je připraven:
o konzultovat technické požadavky nájemce na úpravu prostor
o realizovat stavební úpravy prostor
o zajistit projednávání požadovaných změn s dotčenými orgány

Parametry nemovitosti

Cena
350 Kč /za metr čtvereční / měsíc
Poznámka k ceně
cena od 350,- /m2 v závislosti na délce nájemní smlouvy
Aktualizováno
15. 10. 2025
Adresa
Chrudimská, Praha, Vinohrady
Stavba
Smíšená
Stav objektu
Velmi dobrý
Patro
3.
Užitná plocha
326 m2
Třída energetické náročnosti
D - Méně úsporná
Ukazatel energetické náročnosti
185 kWh/m2 za rok

Kontaktovat makléře

Realitní kancelář

SEPIREA

Chrudimská 1418/2, Praha

Chystáte se prodat nemovitost?
Pomůžeme Vám!

Máte zájem o tuto nemovistost?

Tímto, v souladu s nařízením Evropského parlamentu a Rady (EU) 2016/679, v platném znění, prohlašuji, že mi je alespoň 16 let a uděluji tak svůj souhlas se zpracováním zadaných údajů (jméno, telefon, e-mail, ip adresa) společnosti B3 Technology, s.r.o., IČ: 07330600, se sídlem Novostavby 126/23, 435 11 Lom (správce dat), za účelem předání dotazu z tohoto formuláře Vámi vybranému inzerentovi a zpětného kontaktování mé osoby. Osobní údaje bude správce zpracovávat manuálně i automaticky přímo prostřednictvím svých zaměstnanců. Informace předané tímto formulářem budou uloženy v databázi správce maximálně po dobu 10 let. Odvolání souhlasu s uložením a zpracováním poskytnutých dat lze e-mailem na info@realitypro.eu. V případě podezření na neoprávněné použití Vámi poskytnutých údajů máte právo předat podnět k šetření Úřadu pro ochranu osobních údajů. Více informací
Chystáte se prodat nemovitost?
Pomůžeme Vám!

Inzerát si prohlédlo 1 lidí

Prodejce

Petr Bořuta

Petr Bořuta

Hlídací pes

Chcete dostávat emailem podobné nabídky pronájmu kanceláří v Praze 3?

Podobné nemovitosti