Pronájem bytu 2+kk, Praha - Bubeneč, Verdunská, 43 m2

Verdunská, Praha 6

17 000 Kč /za měsíc Získejte výhodnou HYPOTÉKU
Prověřené firmy v Praze 6

Stěhovací služby

Výkup a prodej starého nábytku

Informace k bytu

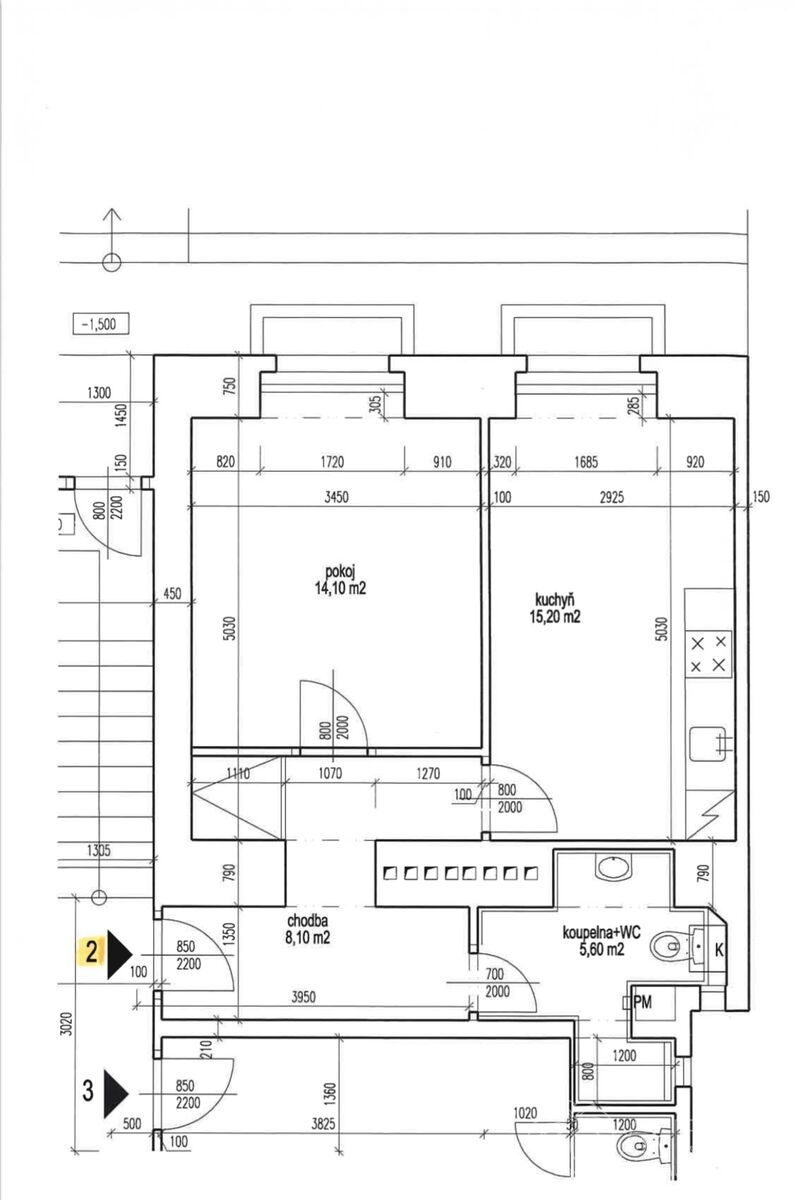
Dovolujeme si Vám nabídnout zrekonstruovaný byt k dlouhodobému pronájmu v osobním vlastnictví o velikosti 2kk, 43 m². Byt se nachází v atraktivní lokalitě pražských Dejvic a je umístěn ve zvýšeném přízemí čtyřpodlažního cihlového domu po rekonstrukci. Bytovou jednotku tvoří dvě místnosti s výhledem do přilehlé zahrady, přičemž jedna z nich je vybavená kuchyňskými spotřebiči (myčka, lednice, trouba, sporák a digestoř) a vestavěnou pračkou. Pokoje propojuje vstupní hala, ze které vedou dveře nejen do koupelny se sprchovým koutem, toaletou, ale i do dvou neprůchozích pokojů. Úložný prostor lze využít ve vestavěné skříni umístěné v hale. Byt je pronajímán částečně vybaven (pračka, postel). Na podlahách jsou položeny parkety a dlažba. Pokoje mají dostatek denního světla a byt působí čistě a světle. Bytová jednotka je vhodná pro bydlení i jako firemní kancelář. Majitel disponuje vhodným nábytkem - skříně, stoly, který je možný do bytu pro nového nájemce přidat v době stěhování. Vytápění bytu a ohřev vody zabezpečuje kombinovaný plynový kotel. Smlouvy na dodávku elektrické energie a plynu si budoucí nájemce uzavírá na své jméno. Výhodou pronájmu bytu je možnost využití zahrady o velikosti 50m2, ve které je možnost relaxovat bez ruchu velkoměsta. Velikou devizou je vynikající dopravní dostupnost. Nedaleko domu lze využít metra A – Dejvická nebo tramvaj – Vítězné náměstí či BUS. V docházkové vzdálenosti se nachází veškerá občanská vybavenost i volnočasové využití, např. restaurace, obchody, lékárna, základní i mateřská škola a také ČVUT. Nájemné 17.000,- Kč včetně služeb (mimo elektřiny a plynu), vratná kauce 1 měsíční nájem + provize RK. Bytová jednotka je k nastěhování od 1.12.2025. Pro sjednání osobní prohlídky kontaktujte realitního makléře.

Parametry bytu

Cena
17 000 Kč /za měsíc
Aktualizováno
14. 10. 2025
Adresa
Verdunská, Praha 6
ID
17620
Stavba
Smíšená
Stav objektu
Velmi dobrý
Patro
1. z 7
Vybaveno
Částečně
Vlastnictví
Osobní
Užitná plocha
43 m2
Zastavěná plocha
270 m2
Plocha zahrady
50 m2
Třída energetické náročnosti
E - Nehospodárná
Plyn
Plynovod
Odpad
Veřejná kanalizace
Výtah

Kontaktovat makléře

Realitní kancelář

Logo QARA, s.r.o.

QARA, s.r.o.

Šafaříkova 201/17, Praha

Chystáte se prodat nemovitost?
Pomůžeme Vám!

Máte zájem o tento byt?

Tímto, v souladu s nařízením Evropského parlamentu a Rady (EU) 2016/679, v platném znění, prohlašuji, že mi je alespoň 16 let a uděluji tak svůj souhlas se zpracováním zadaných údajů (jméno, telefon, e-mail, ip adresa) společnosti B3 Technology, s.r.o., IČ: 07330600, se sídlem Novostavby 126/23, 435 11 Lom (správce dat), za účelem předání dotazu z tohoto formuláře Vámi vybranému inzerentovi a zpětného kontaktování mé osoby. Osobní údaje bude správce zpracovávat manuálně i automaticky přímo prostřednictvím svých zaměstnanců. Informace předané tímto formulářem budou uloženy v databázi správce maximálně po dobu 10 let. Odvolání souhlasu s uložením a zpracováním poskytnutých dat lze e-mailem na info@realitypro.eu. V případě podezření na neoprávněné použití Vámi poskytnutých údajů máte právo předat podnět k šetření Úřadu pro ochranu osobních údajů. Více informací
Chystáte se prodat nemovitost?
Pomůžeme Vám!

Inzerát si prohlédlo 0 lidí

Prodejce

Katy Sasková

Katy Sasková

Hlídací pes

Chcete dostávat emailem podobné nabídky pronájmu bytů 2+kk v Praze 6?

Podobné nemovitosti