Pronájem kanceláře, Ostrava, Vítkovická, 38 m2

Vítkovická, Moravská Ostrava

160 Kč /za metr čtvereční / měsíc Získejte výhodnou HYPOTÉKU

(bez DPH, bez služeb, jistota 3 měsíční nájmy)

Prověřené firmy v Ostravě

Informace k nemovitosti

K pronájmu nabízíme kancelářské prostory v atraktivní lokalitě na ul. Vítkovická v Moravské Ostravě, u nákupního centra Karolína.

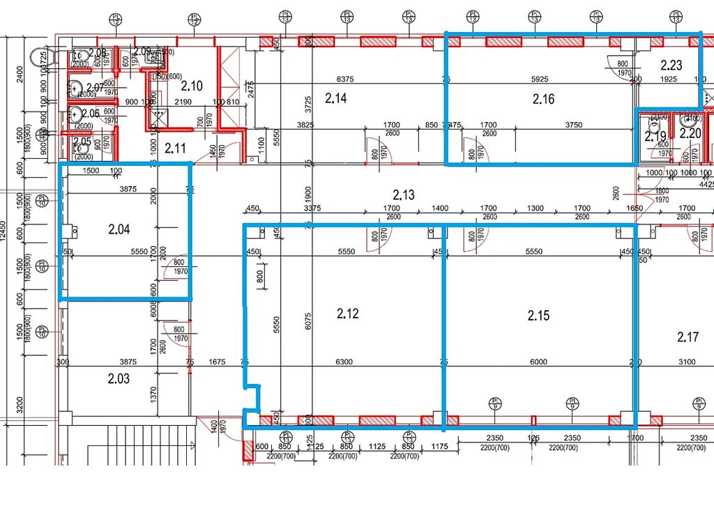
Prostory se nacházejí ve 2.NP podlaží budovy, jedná se o čtyři samostatné kanceláře, k dispozici je kuchyňka a sociální zázemí.

Výměry dle půdorysu:

kancelář č.2.04 - 16,6 m2
kancelář č. 2.12 - 37,5 m2
kancelář č. 2.15 - 35,5 m2
kancelář č. 2.16 + 2.23 - 25,9 m2

Možno pronajmout jednotlivě, případně jako celek nebo vhodnou variantu pro potřeby nájemce.

Výhodou je možnost časově omezeného bezplatného parkování u obchodního centra, což ocení zejména návštěvy.

Objekt je elektronicky zabezpečen.

V rámci energetické náročnosti je budova klasifikována v kategorii C – úsporná.

Parametry nemovitosti

Cena
160 Kč /za metr čtvereční / měsíc
Poznámka k ceně
bez DPH, bez služeb, jistota 3 měsíční nájmy
Aktualizováno
14. 10. 2025
Adresa
Vítkovická, Moravská Ostrava
ID
10570451251
Stavba
Skeletová
Stav objektu
Velmi dobrý
Užitná plocha
38 m2

Kontaktovat makléře

Máte zájem o tuto nemovistost?

Tímto, v souladu s nařízením Evropského parlamentu a Rady (EU) 2016/679, v platném znění, prohlašuji, že mi je alespoň 16 let a uděluji tak svůj souhlas se zpracováním zadaných údajů (jméno, telefon, e-mail, ip adresa) společnosti B3 Technology, s.r.o., IČ: 07330600, se sídlem Novostavby 126/23, 435 11 Lom (správce dat), za účelem předání dotazu z tohoto formuláře Vámi vybranému inzerentovi a zpětného kontaktování mé osoby. Osobní údaje bude správce zpracovávat manuálně i automaticky přímo prostřednictvím svých zaměstnanců. Informace předané tímto formulářem budou uloženy v databázi správce maximálně po dobu 10 let. Odvolání souhlasu s uložením a zpracováním poskytnutých dat lze e-mailem na info@realitypro.eu. V případě podezření na neoprávněné použití Vámi poskytnutých údajů máte právo předat podnět k šetření Úřadu pro ochranu osobních údajů. Více informací
Chystáte se prodat nemovitost?
Pomůžeme Vám!

Inzerát si prohlédlo 2 lidí

Prodejce

Petr Šrámek

Petr Šrámek

Hlídací pes

Chcete dostávat emailem podobné nabídky pronájmu kanceláří v Ostravě?

Podobné nemovitosti