Pronájem bytu 4+kk, Brno, Lidická, 125 m2

Lidická, Brno, Veveří

46 000 Kč /za měsíc Získejte výhodnou HYPOTÉKU
Prověřené firmy v Brně

Informace k bytu

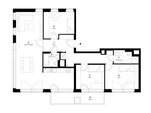
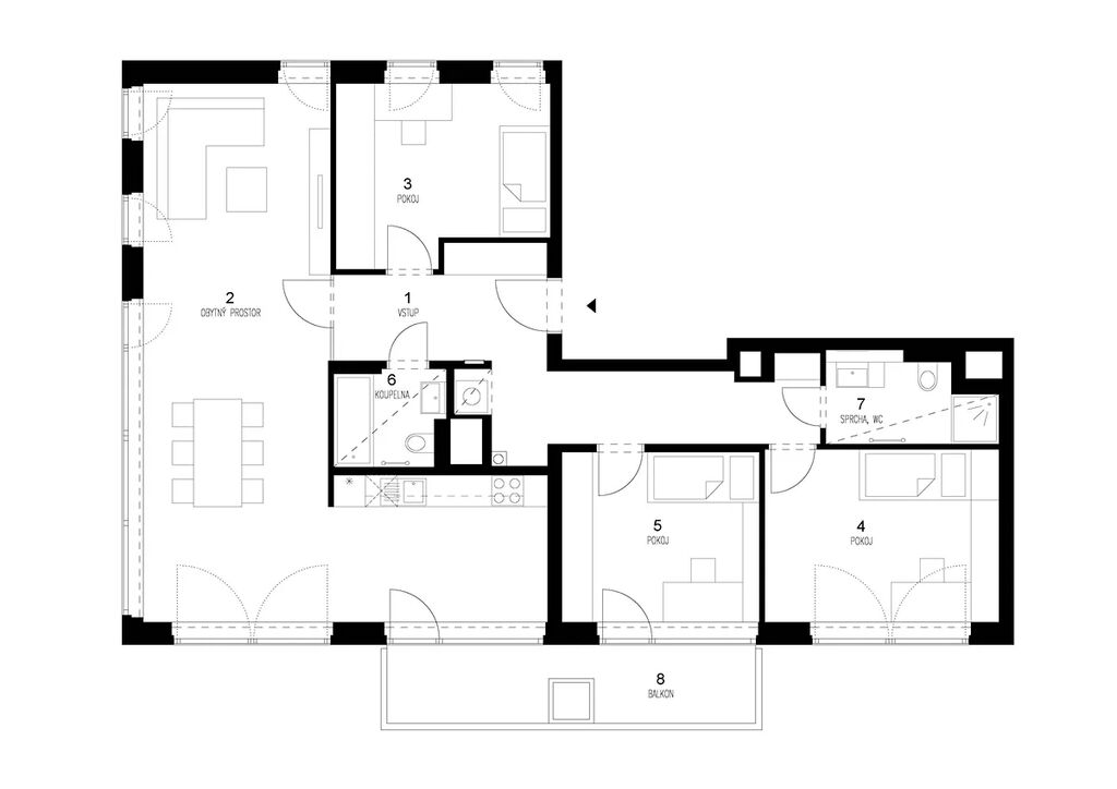
V exkluzivním zastoupení majitele Vám nabízíme Byt 4+kk v třináctém patře v nejvyšší ze tří budov Rezidence Lužánky (ul. Lidická) s krásným výhledem na Lužánecký park. Tento byt tvoří celou stranu tohoto domu a přehlédne vedlejší budovy, výhled se rozšiřuje o centrum Brna i Řečkovice

- Krásný a světlý byt byl nadstandardně zařízen architektonickou kanceláří architekti.in
- Rozloha bytu je 125m2 včetně 12m2 velkého balkónu
- V obývacím pokoji jsou velká francouzská okna a stejně jako na všech ostatních oknech jsou textilní rolety pro vytvoření většího soukromí a komfortu. Rozloha obývacího pokoje s jídelnou a kuchyní je bezmala 40m2. Vztup na prostorný balkón
- Byt je vybavený moderní, na míru vyrobenou kuchyňskou linkou a se všemi spotřebiči značky Whirpool (lednička, myčka, trouba, sklokeramická deska, mikrovlnná trouba)
- V ložnici je na míru zhotovená vestavěná skřín s efektivně vymyšleným vnitřním řešením s posuvnými dveřmi
- Koupelna je vybavena jak vanou tak I sprchovým koutem, toaletou a pračkou
- Oddělená toaleta pro hosty
- Klimatizace
- Možnost připojení kabelové TV a internetu přes poskytovatele DialTelecom
- Byt se pronajímá nevybavený

Jako doplňkové služby poskytujeme:

- Možnost pronájmu parkovacího stání
- Úplné vybavení bytu Rent&Live
- Jednorázový nebo pravidelný úklid

Parametry bytu

Cena
46 000 Kč /za měsíc
Náklady na bydlení
+ Zálohy na služby: 8000,-Kč
Aktualizováno
14. 10. 2025
Adresa
Lidická, Brno, Veveří
ID
31302
Stavba
Skeletová
Stav objektu
Velmi dobrý
Patro
13.
Vlastnictví
Osobní
Užitná plocha
125 m2
Balkon
Garáž
Sklep

Kontaktovat makléře

Máte zájem o tento byt?

Tímto, v souladu s nařízením Evropského parlamentu a Rady (EU) 2016/679, v platném znění, prohlašuji, že mi je alespoň 16 let a uděluji tak svůj souhlas se zpracováním zadaných údajů (jméno, telefon, e-mail, ip adresa) společnosti B3 Technology, s.r.o., IČ: 07330600, se sídlem Novostavby 126/23, 435 11 Lom (správce dat), za účelem předání dotazu z tohoto formuláře Vámi vybranému inzerentovi a zpětného kontaktování mé osoby. Osobní údaje bude správce zpracovávat manuálně i automaticky přímo prostřednictvím svých zaměstnanců. Informace předané tímto formulářem budou uloženy v databázi správce maximálně po dobu 10 let. Odvolání souhlasu s uložením a zpracováním poskytnutých dat lze e-mailem na info@realitypro.eu. V případě podezření na neoprávněné použití Vámi poskytnutých údajů máte právo předat podnět k šetření Úřadu pro ochranu osobních údajů. Více informací
Chystáte se prodat nemovitost?
Pomůžeme Vám!

Inzerát si prohlédlo 1 lidí

Prodejce

Lukáš Patočka

Lukáš Patočka

Hlídací pes

Chcete dostávat emailem podobné nabídky pronájmu bytů 4+kk v Brně?

Podobné nemovitosti