Prodej bytu 4+kk, Stará Huť, K Lomu, 106 m2 (ID: 2695833)

K Lomu, Stará Huť

8 995 000 Kč /za nemovitost HYPOTÉKA od 40 202 Kč /za měsíc
Prověřené firmy v Staré Huti

Revize elektrických zařízení

Informace k bytu

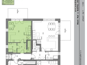
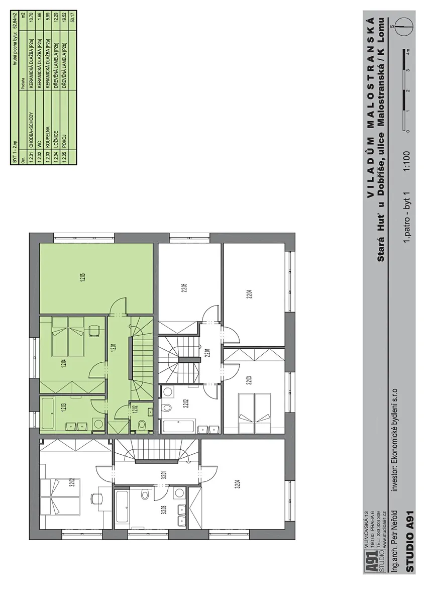
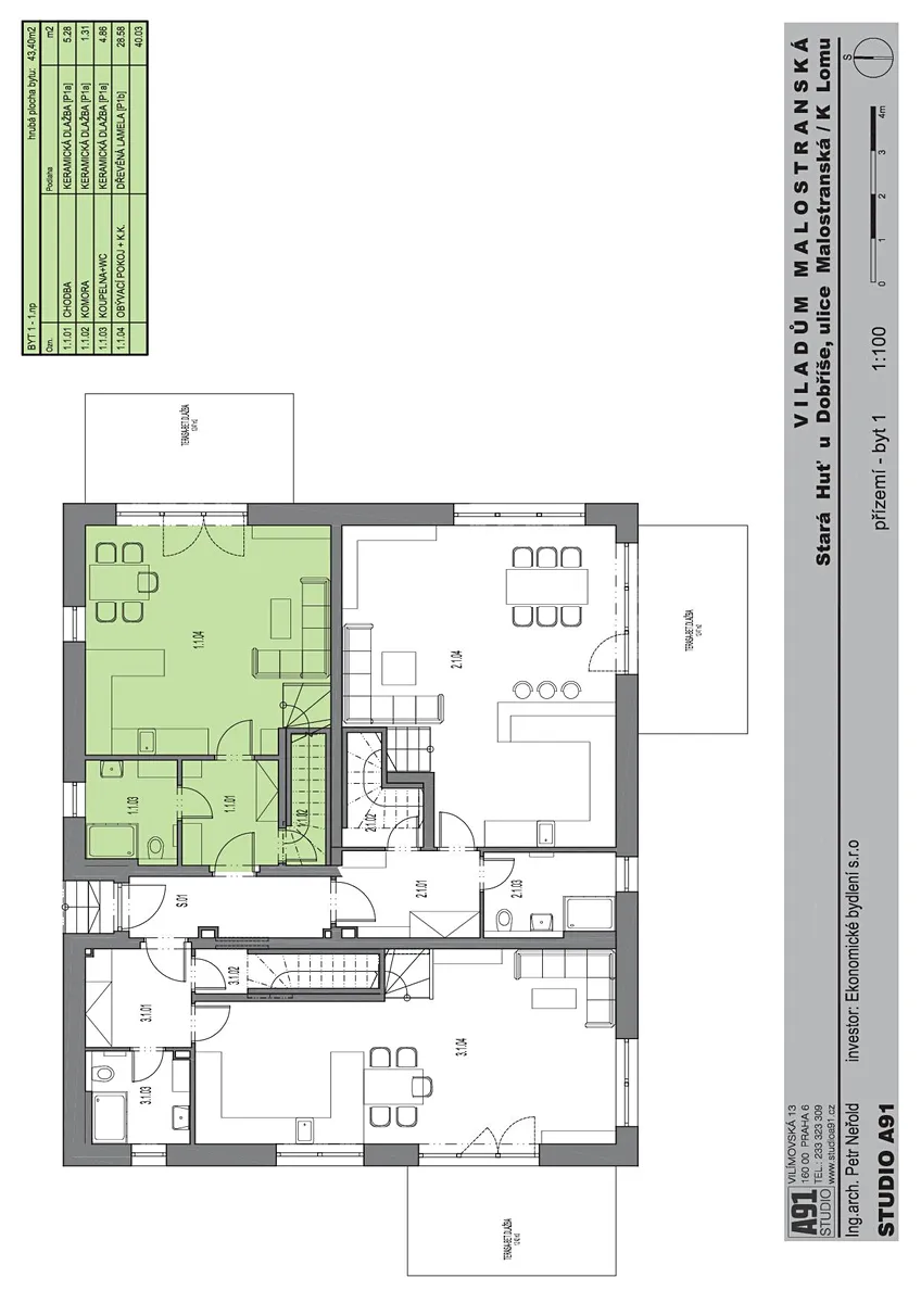
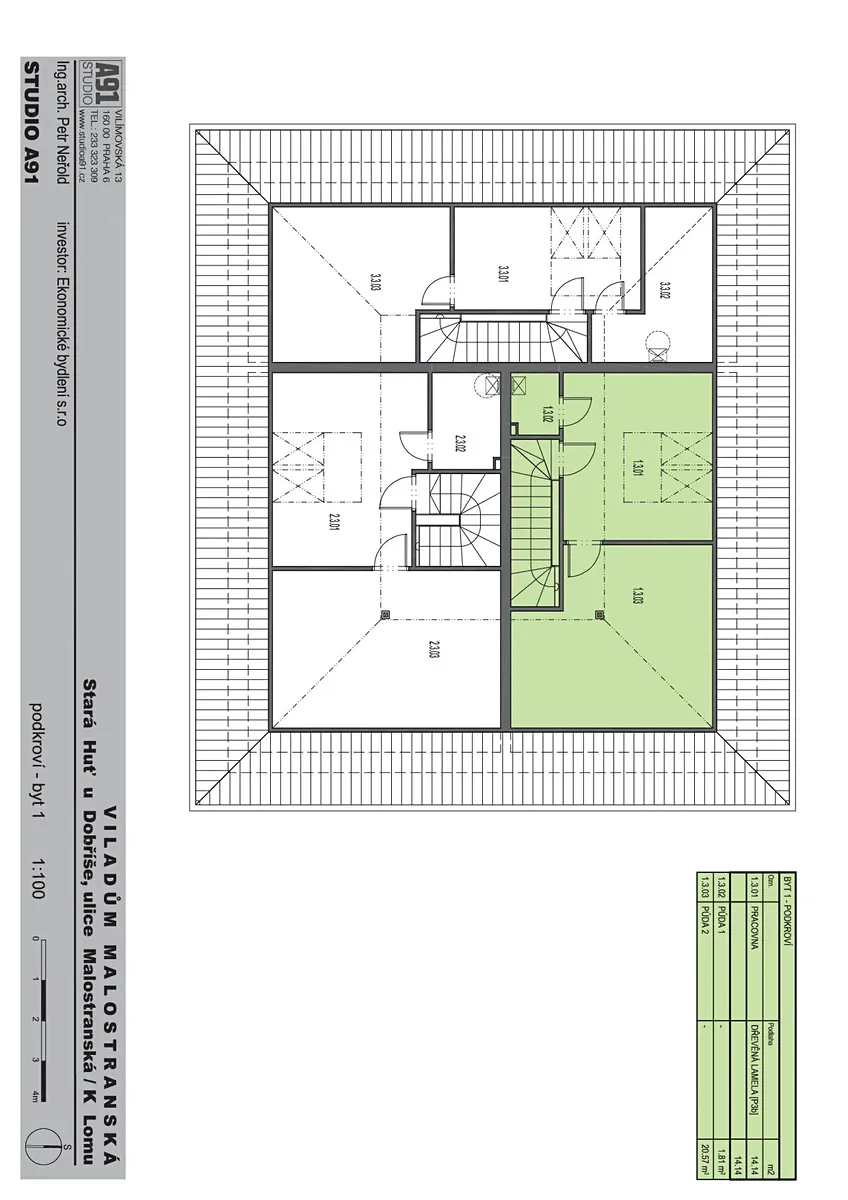
Nabízíme k prodeji moderní třípodlažní byt ve viladomě ve Staré Huti u Dobříše.
Lokalita na úpatí Brdských lesů nabízí ideální propojení klidného bydlení v zeleni s veškerým komfortem města Dobříš a snadnou dostupností po dálnici D4 – do Prahy či Příbrami se dostanete zhruba za 30 minut.

Byt o podlahové ploše 135 m² disponuje soukromou zahradou o výměře 178 m². Nabízí prostorný obývací pokoj s kuchyňským koutem, dvě ložnice, dvě koupelny a přímý vstup na zahradní terasu. V podkroví se nachází pracovna a půdní úložný prostor.

V ceně jsou zahrnuta dvě parkovací stání ze zámkové dlažby a elektro příprava pro dobíjení elektromobilů.
Dům je postaven v nadstandardní kvalitě – cihelné zdivo Porotherm 30 cm, zateplení Extrapor 20 cm, silikonová fasáda Weber, střešní krytina Bramac, zateplení střechy minerální vlnou Domo Plus 300 mm. Plastová okna v provedení trojsklo se šestikomorovým rámem zajišťují výbornou tepelnou izolaci.

Dům je částečně zkolaudován – zbývá dokončit koupelny dle vašich představ a zkolaudovat jednotku. Cena nezahrnuje koupelny, vinylové podlahy a dveře.

Ozvěte se nám a domluvte si osobní prohlídku.
Vizualizace v prezentaci jsou ilustrativní a mohou se lišit od finálního provedení.

Parametry bytu

Cena
8 995 000 Kč /za nemovitost Spočítat hypotéku
Aktualizováno
23. 10. 2025
Adresa
K Lomu, Stará Huť
ID
23
Stavba
Cihlová
Stav objektu
Novostavba
Patro
1. z 3
Vlastnictví
Osobní
Užitná plocha
106 m2
Třída energetické náročnosti
B - Velmi úsporná
Elektřina
230V
Plyn
Individuální, Plynovod
Odpad
Veřejná kanalizace
Komunikace
Asfaltová
Telekomunikace
Telefon, Internet, Satelit, Kabelová televize, Kabelové rozvody, Ostatní
Doprava
Vlak, Dálnice, Silnice, MHD, Autobus
Voda
Vodovod
Výtah
Bezbarierový přístup
Parkování

Kontaktovat makléře

Realitní kancelář

Ekonomické bydlení, s.r.o.

náměstí Osvoboditelů 69/5a, Praha

Chystáte se prodat nemovitost?
Pomůžeme Vám!

Máte zájem o tento byt?

Tímto, v souladu s nařízením Evropského parlamentu a Rady (EU) 2016/679, v platném znění, prohlašuji, že mi je alespoň 16 let a uděluji tak svůj souhlas se zpracováním zadaných údajů (jméno, telefon, e-mail, ip adresa) společnosti B3 Technology, s.r.o., IČ: 07330600, se sídlem Novostavby 126/23, 435 11 Lom (správce dat), za účelem předání dotazu z tohoto formuláře Vámi vybranému inzerentovi a zpětného kontaktování mé osoby. Osobní údaje bude správce zpracovávat manuálně i automaticky přímo prostřednictvím svých zaměstnanců. Informace předané tímto formulářem budou uloženy v databázi správce maximálně po dobu 10 let. Odvolání souhlasu s uložením a zpracováním poskytnutých dat lze e-mailem na info@realitypro.eu. V případě podezření na neoprávněné použití Vámi poskytnutých údajů máte právo předat podnět k šetření Úřadu pro ochranu osobních údajů. Více informací
Chystáte se prodat nemovitost?
Pomůžeme Vám!

Inzerát si prohlédlo 8 lidí

Prodejce

Adam Knetl

Adam Knetl

Hlídací pes

Chcete dostávat emailem podobné nabídky prodeje bytů 4+kk v Staré Huti?

Podobné nemovitosti