Prodej vily, Františkovy Lázně, Školní, 415 m2

Školní, Františkovy Lázně

12 540 000 Kč /za nemovitost HYPOTÉKA od 56 046 Kč /za měsíc
Prověřené firmy v Františkových Lázních

Informace k domu

Prodej – dvougenerační vila ve Františkových Lázních, Školní ul.

Velmi klidná lokalita v docházkové vzdálenosti do centra města.

Dům je ve velmi dobrém a udržovaném technickém stavu, po postupné modernizaci – nová krytina střechy a nové okapy a svody, plastová okna, zateplené fasáda, modernizované interiéry domu vč. síťových rozvodů.

Jsou zachovány původní sta­vebně technické prvky jako jsou dřevěné dveře, zárubně, parkety, funkční a užívaná kachlová kamna.

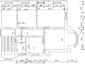
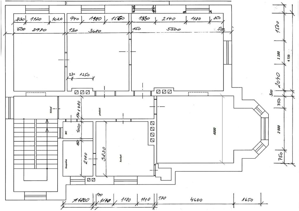
V přízemí je zádveří, centrální chodba se schodištěm, prostorný byt 4+1 o výměře 105 m2.

V 1. patře je stejný prostorný byt 4+1 o výměře 105 m2 jako v přízemí.

V podkroví jsou dva pokoje se společnou koupelnou, WC a půdní prostor připravený na vybudování dalších místností o celkové výměře 80 m2.

Dům je celý podsklepený – v suterénu je technická místnost, dílna, kotelna, sklady.

K vlastnictví domu patří také dřevěná kolna.

Parkování ve dvou vlastních garážich, případně na vlastním pozemku nebo před domem na veřejné komunikaci.

Energie: elektřina 230/400 V, vodovodní a kanalizační řád, každý byt má vlastní ústřední plynové vytápění.

Zastavěná plocha domu o výměře 155 m2.

Užitná plocha domu 415 m2.

Garážemi zastavěná plocha o výměře 47 m2.

Pozemek 1.236 m2.

PENB – energ. tř. G

Parametry domu

Cena
12 540 000 Kč /za nemovitost Spočítat hypotéku
Aktualizováno
9. 10. 2025
Adresa
Školní, Františkovy Lázně
ID
5705
Stavba
Cihlová
Stav objektu
Velmi dobrý
Druh objektu
Samostatný
Lokalita objektu
Klidná část obce
Užitná plocha
415 m2
Zastavěná plocha
155 m2
Plocha pozemku
1236 m2
Plocha zahrady
1034 m2
Třída energetické náročnosti
G - Mimořádně nehospodárná
Elektřina
230V, 400V
Plyn
Plynovod
Odpad
Veřejná kanalizace
Komunikace
Asfaltová
Telekomunikace
Internet
Doprava
Vlak, Silnice, MHD, Autobus
Voda
Vodovod
Topné těleso
Radiátory
Zdroj topení
Plynový kondenzační kotel, Plynový kotel
Zdroj teplé vody
Plynový kondenzační kotel, Bojler - elektro
Garáž
Sklep

Kontaktovat makléře

Máte zájem o tento dům?

Tímto, v souladu s nařízením Evropského parlamentu a Rady (EU) 2016/679, v platném znění, prohlašuji, že mi je alespoň 16 let a uděluji tak svůj souhlas se zpracováním zadaných údajů (jméno, telefon, e-mail, ip adresa) společnosti B3 Technology, s.r.o., IČ: 07330600, se sídlem Novostavby 126/23, 435 11 Lom (správce dat), za účelem předání dotazu z tohoto formuláře Vámi vybranému inzerentovi a zpětného kontaktování mé osoby. Osobní údaje bude správce zpracovávat manuálně i automaticky přímo prostřednictvím svých zaměstnanců. Informace předané tímto formulářem budou uloženy v databázi správce maximálně po dobu 10 let. Odvolání souhlasu s uložením a zpracováním poskytnutých dat lze e-mailem na info@realitypro.eu. V případě podezření na neoprávněné použití Vámi poskytnutých údajů máte právo předat podnět k šetření Úřadu pro ochranu osobních údajů. Více informací
Chystáte se prodat nemovitost?
Pomůžeme Vám!

Inzerát si prohlédlo 6 lidí

Prodejce

Karel Marek

Karel Marek

Hlídací pes

Chcete dostávat emailem podobné nabídky prodeje vil v Františkových Lázních?

Podobné nemovitosti