Pronájem obchodního prostoru, Poděbrady, Hakenova, 53 m2

Hakenova, Poděbrady III

16 125 Kč /za měsíc Získejte výhodnou HYPOTÉKU
Prověřené firmy v Poděbradech

Informace k nemovitosti

Dobrý den.

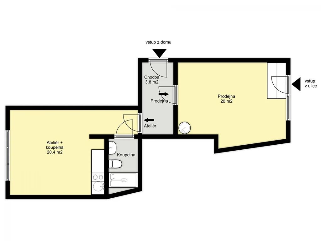
Nabízím Vám nové komerční prostory o velikosti 53 m2 na adrese Hakenova 722, Poděbrady.
Jedná s o prostory v těsné blízkosti kolonády, které byly navrženy tak, aby měly co nejširší možnost využití.

Mohou zde být kanceláře, prodejna a vzhledem k tomu, že je zde příprava na vodu a odpady, tak i kadeřnický salón.
Prostor se skládá ze dvou samostatných místností a každá z nich má své sociální zázemí a dokonce i samostatné měření elektřiny a vody.
Proto je možné tyto prostory využívat i samostatně.
Je zde plnohodnotná kuchyňská linka, sprchový kout, 2x wc a úložné prostory.
Výloha do ul. Hakenova je opatřena roletou a vstupní dveře jsou chráněny uzamykatelnou mříží.
Měsíční nájem činí 16.125 Kč a při podpisu nájemní smlouvy se skládá vratná kauce 30.000 Kč.

Parametry nemovitosti

Cena
16 125 Kč /za měsíc
Aktualizováno
9. 10. 2025
Adresa
Hakenova, Poděbrady III
ID
948
Stavba
Cihlová
Stav objektu
Po rekonstrukci
Užitná plocha
53 m2
Elektřina
230V, 400V
Odpad
Veřejná kanalizace
Topení
Lokální elektrické
Doprava
Vlak, Dálnice, Silnice, MHD, Autobus
Voda
Vodovod
Topné těleso
Podlahové vytápění, Přímotop
Zdroj topení
Přímotop
Bezbarierový přístup

Kontaktovat makléře

Máte zájem o tuto nemovistost?

Tímto, v souladu s nařízením Evropského parlamentu a Rady (EU) 2016/679, v platném znění, prohlašuji, že mi je alespoň 16 let a uděluji tak svůj souhlas se zpracováním zadaných údajů (jméno, telefon, e-mail, ip adresa) společnosti B3 Technology, s.r.o., IČ: 07330600, se sídlem Novostavby 126/23, 435 11 Lom (správce dat), za účelem předání dotazu z tohoto formuláře Vámi vybranému inzerentovi a zpětného kontaktování mé osoby. Osobní údaje bude správce zpracovávat manuálně i automaticky přímo prostřednictvím svých zaměstnanců. Informace předané tímto formulářem budou uloženy v databázi správce maximálně po dobu 10 let. Odvolání souhlasu s uložením a zpracováním poskytnutých dat lze e-mailem na info@realitypro.eu. V případě podezření na neoprávněné použití Vámi poskytnutých údajů máte právo předat podnět k šetření Úřadu pro ochranu osobních údajů. Více informací
Chystáte se prodat nemovitost?
Pomůžeme Vám!

Inzerát si prohlédlo 2 lidí

Prodejce

Petr Šmíd

Petr Šmíd

Hlídací pes

Chcete dostávat emailem podobné nabídky pronájmu obchodních prostor v Poděbradech?

Podobné nemovitosti