Pronájem bytu 2+kk, Praha - Háje, Steinerova, 63 m2

Steinerova, Háje - Praha 11

23 000 Kč /za měsíc Získejte výhodnou HYPOTÉKU

(vratná jistota, náklady na bydlení 5 402 czk, poplatek za podnájem)

Prověřené firmy v Praze 4

Stěhovací služby

Výkup a prodej starého nábytku

Informace k bytu

Prohlídky
Pro registraci na prohlídku použijte prosím tento formulář:
inbyty.cz/byt-feeua

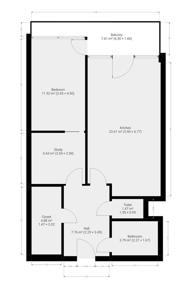
K dlouhodobému podnájmu nabízíme krásný prosluněný byt o dispozici 2+kk v klidné lokalitě Háje. Byt o celkové výměře 63 m2 se nachází v 9. podlaží cihlového domu s výtahem. K bytu patří balkon.

Byt se nabízí částečně vybavený. Kuchyně disponuje lednicí, troubou, varnou deskou, mikrovlnnou troubou a digestoří. Obývací část je zařízena pohovkou. Součástí ložnice je postel a oddělená menší místnost s pracovním stolem. V koupelně je sprchový kout. Toaleta je umístěna samostatně. Byt disponuje ještě větší šatní místností.

V okolí domu najdeme restaurace, supermarket Lidl, základní a mateřskou školu, lékárnu atd. Pět minut chůze od domu je vzdálená stanice metra Háje.

Majitel preferuje zájemce bez domácích mazlíčků.
Byt je volný k nastěhování od 1.11.2025.

Uvedena energetická kategorie G, jelikož nemáme k dispozici PENB.

Byt pronajímá Ideální nájemce - služba, se kterou budete bydlet bezstarostně a za férových podmínek. Když se něco přihodí, k dispozici jsou správci, kteří s vámi vše vyřeší. Pomůžeme s veškerou administrativou, s nastavením plateb a zajistíme vám speciální pojištění. Pojďte bydlet s námi!

Parametry bytu

Cena
23 000 Kč /za měsíc
Poznámka k ceně
vratná jistota, náklady na bydlení 5 402 czk, poplatek za podnájem
Aktualizováno
9. 10. 2025
Adresa
Steinerova, Háje - Praha 11
ID
N3603
Stavba
Cihlová
Stav objektu
Velmi dobrý
Patro
9. z 12
Vybaveno
Částečně
Typ objektu
Patrový
Lokalita objektu
Klidná část obce
Vlastnictví
Osobní
Užitná plocha
63 m2
Podlahová plocha
63 m2
Elektřina
230V
Topení
Ústřední dálkové
Doprava
MHD, Autobus
Balkon
Výtah

Kontaktovat makléře

Máte zájem o tento byt?

Tímto, v souladu s nařízením Evropského parlamentu a Rady (EU) 2016/679, v platném znění, prohlašuji, že mi je alespoň 16 let a uděluji tak svůj souhlas se zpracováním zadaných údajů (jméno, telefon, e-mail, ip adresa) společnosti B3 Technology, s.r.o., IČ: 07330600, se sídlem Novostavby 126/23, 435 11 Lom (správce dat), za účelem předání dotazu z tohoto formuláře Vámi vybranému inzerentovi a zpětného kontaktování mé osoby. Osobní údaje bude správce zpracovávat manuálně i automaticky přímo prostřednictvím svých zaměstnanců. Informace předané tímto formulářem budou uloženy v databázi správce maximálně po dobu 10 let. Odvolání souhlasu s uložením a zpracováním poskytnutých dat lze e-mailem na info@realitypro.eu. V případě podezření na neoprávněné použití Vámi poskytnutých údajů máte právo předat podnět k šetření Úřadu pro ochranu osobních údajů. Více informací
Chystáte se prodat nemovitost?
Pomůžeme Vám!

Inzerát si prohlédlo 4 lidí

Prodejce

Miloslava Kačerová

Miloslava Kačerová

Hlídací pes

Chcete dostávat emailem podobné nabídky pronájmu bytů 2+kk v Praze 4?

Podobné nemovitosti