Pronájem obchodního prostoru, Brandýs nad Labem-Stará Boleslav, Boleslavská, 66 m2 (ID: 2694145)

Boleslavská, Brandýs nad Labem-Stará Boleslav

Cena na vyžádání /za měsíc Získejte výhodnou HYPOTÉKU
Prověřené firmy v Brandýse nad Labem

Informace k nemovitosti

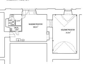
Nabízíme k pronájmu obchodní prostory v areálu Jezuitské rezidence ve Staré Boleslavi. Prostory nabízejí užitnou plochu o výměře 66 m² a jsou vhodné pro maloobchodní činnost, jako kanceláře nebo ordinace a různé služby, mimo gastro provozu.

Tyto prostory jsou k dispozici od října 2025. Prohlídky jsou možné po předchozí domluvě. Pro více informací o této nemovitosti nebo sjednání prohlídky nás prosím kontaktujte nebo vyplňte níže uvedený formulář.

Parametry nemovitosti

Cena
Cena na vyžádání
Aktualizováno
14. 10. 2025
Adresa
Boleslavská, Brandýs nad Labem-Stará Boleslav
Stavba
Smíšená
Stav objektu
Velmi dobrý
Užitná plocha
66 m2
Parkování

Kontaktovat makléře

Realitní kancelář

Obchodni centrum Stará Boleslv

Boleslavská 31/4, Brandýs nad Labem-Stará Boleslav

Chystáte se prodat nemovitost?
Pomůžeme Vám!

Máte zájem o tuto nemovistost?

Tímto, v souladu s nařízením Evropského parlamentu a Rady (EU) 2016/679, v platném znění, prohlašuji, že mi je alespoň 16 let a uděluji tak svůj souhlas se zpracováním zadaných údajů (jméno, telefon, e-mail, ip adresa) společnosti B3 Technology, s.r.o., IČ: 07330600, se sídlem Novostavby 126/23, 435 11 Lom (správce dat), za účelem předání dotazu z tohoto formuláře Vámi vybranému inzerentovi a zpětného kontaktování mé osoby. Osobní údaje bude správce zpracovávat manuálně i automaticky přímo prostřednictvím svých zaměstnanců. Informace předané tímto formulářem budou uloženy v databázi správce maximálně po dobu 10 let. Odvolání souhlasu s uložením a zpracováním poskytnutých dat lze e-mailem na info@realitypro.eu. V případě podezření na neoprávněné použití Vámi poskytnutých údajů máte právo předat podnět k šetření Úřadu pro ochranu osobních údajů. Více informací
Chystáte se prodat nemovitost?
Pomůžeme Vám!

Inzerát si prohlédlo 1 lidí

Prodejce

Michaela Laštůvková

Michaela Laštůvková

Hlídací pes

Chcete dostávat emailem podobné nabídky pronájmu obchodních prostor v Brandýse nad Labem?

Podobné nemovitosti