Prodej bytu 2+kk, Praha, Spořická, 56 m2

Spořická, Praha 8

7 820 000 Kč /za nemovitost HYPOTÉKA od 34 951 Kč /za měsíc

(Cena obsahuje parkovací stání v stuterénu domu vč. komory v přízemí domu)

Prověřené firmy v Praze 8

Stěhovací služby

Výkup a prodej starého nábytku

Informace k bytu

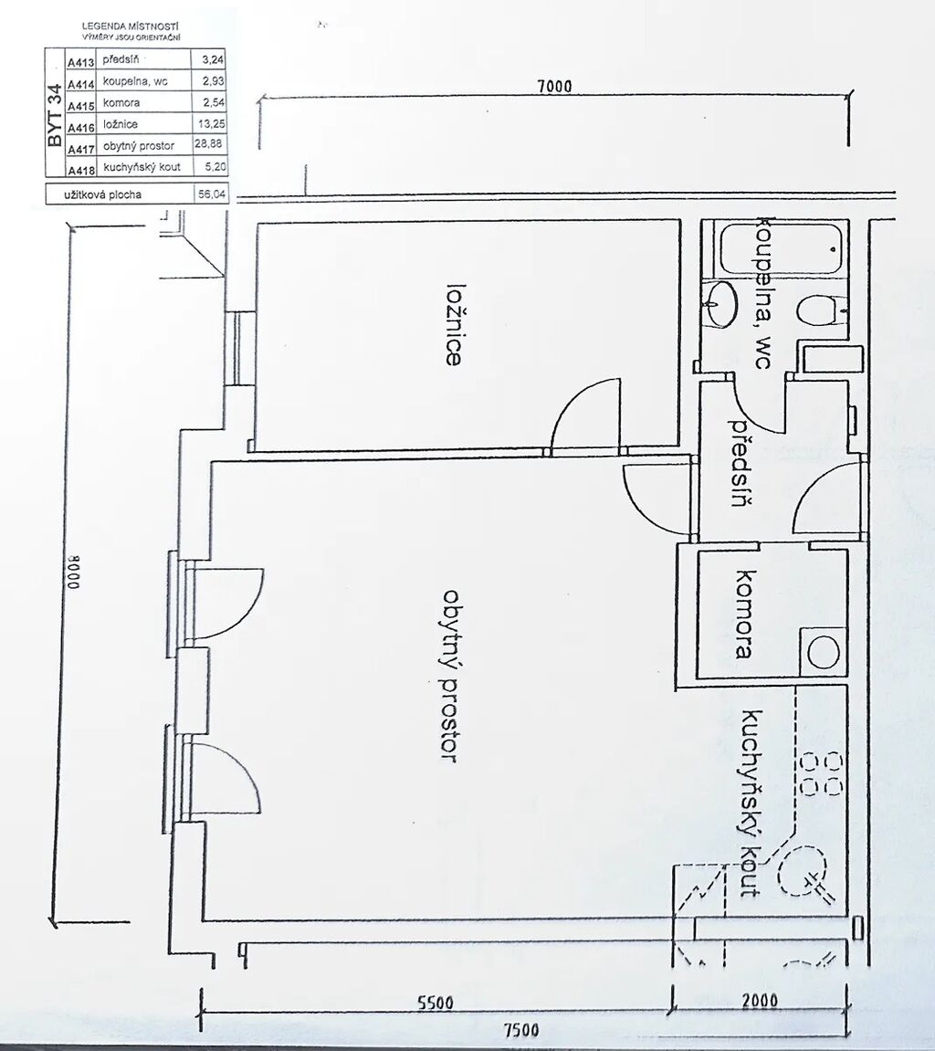
Dovolujeme si Vám nabídnout ve výhradním zastoupení ke koupi slunný cihlový byt v osobním vlastnictví, situovaný v novostavbě bytového domu v ulici Spořická v Pražských Dolních Chabrech, Praha 8. Jedná se o byt 2+kk o celkové ploše 58 m², ke kterému náleží samostatná komora a parkovací stání v garáži umístěné v suterénu domu. Bytový dům byl postaven v roce 2003 a tvoří zdařilou nárožní stavbu na rohu ulic Spořická a U Václava.
Byt se nachází ve 2. patře z celkem tří pater a je orientován na západ do klidové zástavby s výhledem do Drahaňské rokle.
Konkrétní dispozice Předsíň 3,2 m², Koupelna s vanou a WC 2,9 m²
Ložnice s novým kobercem a vestavěnou skříní – 13,2 m²
Obývací pokoj s kuchyňským koutem – 34,1 m² K bytu rovněž náleží komora v přízemí domu pod uzamčením o velikosti 2,1 m²
V suterénu je k dispozici samostatné parkovací stání, přístupné přes sekční garážová vrata z ulice U Václava
Technické informace, dům je napojen na plynovou kotelnu s ústředním topením a centrálním ohřevem vody
Měsíční náklady na byt činí cca 4 500 Kč, elektřina kolem 1 500 Kč Okna (dvě francouzská) jsou plastová s izolačním dvojsklem a pravouhlým rastrem. Vnitřní parapety lamino, vnější hliníkové. Vstupní dveře foliované do ocelové zárubně, střešní okno dřevěné s izolačním dvojsklem. Vybavení, koupelna: vana, umyvadlo, topný žebřík, vzduchotechnika. Kuchyň: lednice s mrazničkou, místo pro myčku 60 cm, varná deska s troubou, dřez s vodovodní baterií
, kuchyňská linka byla vyrobena na míru a je ve velmi zachovalém stavu. Lokalita a občanská vybavenost
Zastávka MHD přímo před domem (V Kratinach), metro linky C Kobylisy  –  cca 8 minut V okolí: základní škola (přímo naproti domu), dvě mateřské školky, obchod s potravinami přímo v domě, několik restaurací, cukrárna, Billa, lékárna, pošta, zdravotní středisko, služby (kadeřnictví, kosmetika, pedikúra, květiny), autoservis a pneuservis. Rekreační vyžití: Drahaňská rokle, Ďáblický háj, Sokol, fitness, tenis, bowling, jízdárna, fotbalové hřiště SK Dolni Chabry, golfové hřiště ve výstavbě, kulturní akce v Chaberském dvoře. Byt je zcela bez právních závazků, list vlastnictví je čistý a financování hypotékou je bezproblémové. Prohlídky jsou možné po předchozí domluvě.

Parametry bytu

Cena
7 820 000 Kč /za nemovitost Spočítat hypotéku
Poznámka k ceně
Cena obsahuje parkovací stání v stuterénu domu vč. komory v přízemí domu
Náklady na bydlení
6000,- Kč měsíční náklady za byt vč. elektřiny
Aktualizováno
8. 10. 2025
Adresa
Spořická, Praha 8
ID
01102025
Stavba
Cihlová
Stav objektu
Novostavba
Patro
3.
Vybaveno
Částečně
Lokalita objektu
Klidná část obce
Vlastnictví
Osobní
Užitná plocha
56 m2
Elektřina
230V
Odpad
Veřejná kanalizace
Komunikace
Betonová
Telekomunikace
Internet
Doprava
Silnice, MHD, Autobus
Voda
Vodovod
Topné těleso
Radiátory
Zdroj topení
Ústřední dálkové
Zdroj teplé vody
Bojler - elektro
Sklep
Výtah
Bezbarierový přístup
Parkování

Kontaktovat makléře

Máte zájem o tento byt?

Tímto, v souladu s nařízením Evropského parlamentu a Rady (EU) 2016/679, v platném znění, prohlašuji, že mi je alespoň 16 let a uděluji tak svůj souhlas se zpracováním zadaných údajů (jméno, telefon, e-mail, ip adresa) společnosti B3 Technology, s.r.o., IČ: 07330600, se sídlem Novostavby 126/23, 435 11 Lom (správce dat), za účelem předání dotazu z tohoto formuláře Vámi vybranému inzerentovi a zpětného kontaktování mé osoby. Osobní údaje bude správce zpracovávat manuálně i automaticky přímo prostřednictvím svých zaměstnanců. Informace předané tímto formulářem budou uloženy v databázi správce maximálně po dobu 10 let. Odvolání souhlasu s uložením a zpracováním poskytnutých dat lze e-mailem na info@realitypro.eu. V případě podezření na neoprávněné použití Vámi poskytnutých údajů máte právo předat podnět k šetření Úřadu pro ochranu osobních údajů. Více informací
Chystáte se prodat nemovitost?
Pomůžeme Vám!

Inzerát si prohlédlo 1 lidí

Prodejce

Robert Sommer

Robert Sommer

Hlídací pes

Chcete dostávat emailem podobné nabídky prodeje bytů 2+kk v Praze 8?

Top nabídky

Podobné nemovitosti