Prodej kanceláře, Teplice, Českobratrská, 88 m2 (ID: 2692980)

Českobratrská, Teplice

Prověřené firmy v Teplicích

Okna a dveře

Rekonstrukce

Zámečnické práce

Informace k nemovitosti

Nebytový prostor k prodeji, Teplice - centrum, ul. Českobratrská

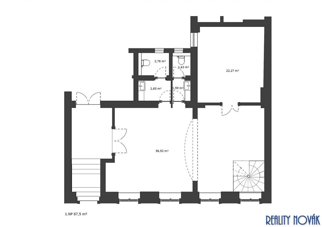
Výjimečná investiční příležitost. Nabízíme k prodeji velmi atraktivní nebytové prostory o celkové výměře 87,5 m², které se nachází v přízemí činžovního domu v ulici Českobratrská. Nabízené prostory jsou aktuálně ve stavu Shell and Core (viz. foto) a budoucí majitel má tedy jedinečnou možnost provést finální úpravy přesně dle svých požadavků a potřeb. Prostory mohou být využívány jako gastronomický provoz (např. kavárna, cukrárna, restaurace) a pro tento případ jsou připravené i oddělené sociální zařízení a nové rozvody vody, odpadu a elektřiny. Stejně tak ale mohou prostory velmi dobře posloužit jako obchod, kanceláře, klientské centrum, ordinace, případně k jakékoliv jiné administrativní nebo obchodní činnosti. Nemovitost je napojená na elektřinu, plyn a obecní vodovod i kanalizaci. V případě zájmu je možné prostory rozšířit o další místnosti v suterénu budovy, které lze využít pro navýšení kapacity gastronomického provozu nebo jako technické a skladovací zázemí. Tato nemovitost je velmi zajímavá také jako investice pro další pronájem, pro tento případ jsme schopní zajistit i kompletní správu nemovitosti od prověřené firmy. Pro bližší informace a prohlídky kontaktujte makléře.

Parametry nemovitosti

Cena
3 960 000 Kč Spočítat hypotéku
Aktualizováno
8. 10. 2025
Adresa
Českobratrská, Teplice
ID
86/5047
Stavba
Cihlová
Stav objektu
Před rekonstrukcí
Vybaveno
Ne
Vlastnictví
Osobní
Užitná plocha
88 m2
Zastavěná plocha
391 m2
Plocha pozemku
391 m2

Kontaktovat makléře

Máte zájem o tuto nemovistost?

Tímto, v souladu s nařízením Evropského parlamentu a Rady (EU) 2016/679, v platném znění, prohlašuji, že mi je alespoň 16 let a uděluji tak svůj souhlas se zpracováním zadaných údajů (jméno, telefon, e-mail, ip adresa) společnosti B3 Technology, s.r.o., IČ: 07330600, se sídlem Novostavby 126/23, 435 11 Lom (správce dat), za účelem předání dotazu z tohoto formuláře Vámi vybranému inzerentovi a zpětného kontaktování mé osoby. Osobní údaje bude správce zpracovávat manuálně i automaticky přímo prostřednictvím svých zaměstnanců. Informace předané tímto formulářem budou uloženy v databázi správce maximálně po dobu 10 let. Odvolání souhlasu s uložením a zpracováním poskytnutých dat lze e-mailem na info@realitypro.eu. V případě podezření na neoprávněné použití Vámi poskytnutých údajů máte právo předat podnět k šetření Úřadu pro ochranu osobních údajů. Více informací
Chystáte se prodat nemovitost?
Pomůžeme Vám!

Inzerát si prohlédlo 1 lidí

Prodejce

Ladislav Novák

Ladislav Novák

Hlídací pes

Chcete dostávat emailem podobné nabídky prodeje kanceláří v Teplicích?

Podobné nemovitosti