Prodej bytu 2+kk, Praha - Nusle, U družstva Život, 49 m2 (ID: 2692008)

U družstva Život, Praha, Nusle

6 950 000 Kč /za nemovitost HYPOTÉKA od 31 062 Kč /za měsíc

(Cena je uvedena včetně právního servisu a kompletních služeb RK.)

Prověřené firmy v Praze 4

Stěhovací služby

Výkup a prodej starého nábytku

Informace k bytu

Prosíme, nepište – zavolejte.
Telefon je nejrychlejší způsob, jak s vámi můžeme vše probrat bez zbytečného zdržení.
Volejte ve všední dny mezi 9:00 a 19:00 – pokud telefon hned nevezmeme, ozveme se zpět.

Prodej bytu 2+kk po kompletní rekonstrukci, ul. U Družstva Život – Praha 4, Nusle.

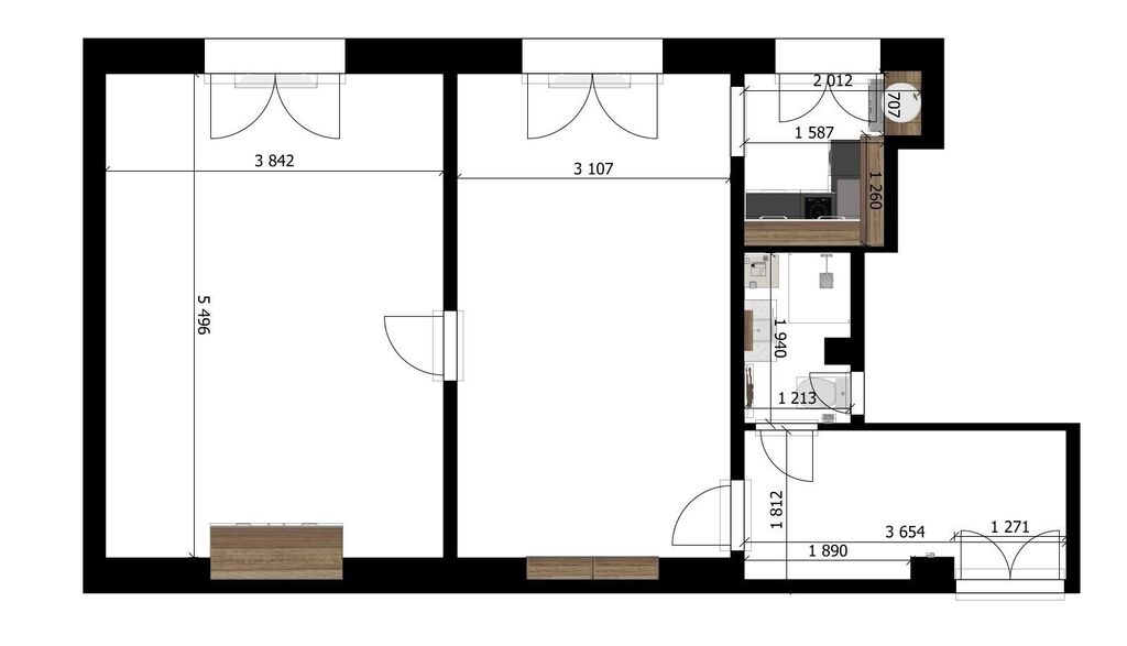
Zprostředkujeme ke koupi světlý byt o dispozici 2+kk, o podlahové ploše 49,1 m², který se nachází ve 2. patře (3. NP) udržovaného cihlového domu z 30. let. K bytu náleží také právo využívat nadstandardní sklepní kóji o velikosti 9,5 m².

Byt prošel v roce 2020 změnou dispozice a kompletní rekonstrukcí: nové rozvody elektroinstalace i slaboproudu, rozvody vody a odpadu, nové omítky a kvalitní povrchové materiály. V obytných místnostech byla položena dřevěná podlaha, v kuchyni, koupelně a na toaletě je velkoformátová keramická dlažba.

Dispozice je prakticky řešena – vstupní chodba s úložným prostorem, obývací pokoj s moderní kuchyní na míru umístěnou v samostatné místnosti s oknem (vybavenou vestavnými spotřebiči: varná deska, digestoř, myčka nádobí a lednice), ložnice se zakázkovou vestavnou skříní a koupelna s toaletou a sprchovým koutem. Všechny místnosti jsou orientovány na východní stranu, díky čemuž je byt velmi světlý a působí vzdušným dojmem.

Součástí prodeje jsou vestavné skříně na míru v obývacím pokoji a ložnici a moderní kuchyňská linka, byt se tedy nabízí částečně vybavený. Koupelna i WC jsou vybaveny značkovými zařizovacími předměty. K vytápění slouží přímotopy, ohřev vody zajišťuje kombinovaný elektrický boiler.

Dům je v dobrém technickém stavu – má novou střechu a modernizovanou elektroinstalaci ve společných prostorách. Společenství vlastníků hospodaří zodpovědně, což zajišťuje stabilní výši příspěvků do fondu oprav.

Lokalita
Ulice U Družstva Život je velmi klidná, přesto vyniká skvělou dopravní dostupností. Stanice metra C – Pankrác a obchodní centrum Arkády jsou vzdáleny cca 8 minut pěšky. V blízkosti je také tramvajová zastávka Na Veselí (linky 18, 19) a autobusová zastávka Jezerka (linka 188), které zajišťují rychlé spojení do centra.

V okolí nechybí park Jezerka, základní i střední škola, školka, místní potraviny, kavárny, restaurace ani zdravotní služby. Oblast je oblíbená pro svou funkcionalistickou architekturu a propojení klidného bydlení s výbornou občanskou vybaveností.

Investiční potenciál
Díky blízkosti metra, kancelářského centra Pankrác a plné občanské vybavenosti je byt atraktivní i jako investice k pronájmu.

Pro zaslání veškerých informací k nemovitosti, okamžité sjednání prohlídky, nebo více dalších informací nás neváhejte kontaktovat přímo telefonicky. Volejte každý pracovní den 9:00-19:00.
Pokud se nedovoláte, jsme zrovna na prohlídce a 100% Vám zavoláme zpět.

Upozornění
Prodávající si vyhrazuje právo vybrat kupujícího na základě jím zvolených kritérií.

Parametry bytu

Cena
6 950 000 Kč /za nemovitost Spočítat hypotéku
Poznámka k ceně
Cena je uvedena včetně právního servisu a kompletních služeb RK.
Aktualizováno
9. 10. 2025
Adresa
U družstva Život, Praha, Nusle
ID
703-1
Stavba
Cihlová
Stav objektu
Dobrý
Patro
3. z 5
Vybaveno
Částečně
Druh objektu
Řadový
Lokalita objektu
Klidná část obce
Vlastnictví
Osobní
Užitná plocha
49 m2
Třída energetické náročnosti
E - Nehospodárná
Ukazatel energetické náročnosti
191 kWh/m2 za rok
Elektřina
230V
Plyn
Plynovod
Odpad
Veřejná kanalizace
Topení
Lokální elektrické
Komunikace
Asfaltová
Telekomunikace
Internet
Doprava
Silnice, MHD
Voda
Vodovod
Sklep
Výtah
Bezbarierový přístup

Kontaktovat makléře

Máte zájem o tento byt?

Tímto, v souladu s nařízením Evropského parlamentu a Rady (EU) 2016/679, v platném znění, prohlašuji, že mi je alespoň 16 let a uděluji tak svůj souhlas se zpracováním zadaných údajů (jméno, telefon, e-mail, ip adresa) společnosti B3 Technology, s.r.o., IČ: 07330600, se sídlem Novostavby 126/23, 435 11 Lom (správce dat), za účelem předání dotazu z tohoto formuláře Vámi vybranému inzerentovi a zpětného kontaktování mé osoby. Osobní údaje bude správce zpracovávat manuálně i automaticky přímo prostřednictvím svých zaměstnanců. Informace předané tímto formulářem budou uloženy v databázi správce maximálně po dobu 10 let. Odvolání souhlasu s uložením a zpracováním poskytnutých dat lze e-mailem na info@realitypro.eu. V případě podezření na neoprávněné použití Vámi poskytnutých údajů máte právo předat podnět k šetření Úřadu pro ochranu osobních údajů. Více informací
Chystáte se prodat nemovitost?
Pomůžeme Vám!

Inzerát si prohlédlo 1 lidí

Prodejce

Michael Mandík

Michael Mandík

Hlídací pes

Chcete dostávat emailem podobné nabídky prodeje bytů 2+kk v Praze 4?

Podobné nemovitosti