Prodej bytu 4+1, České Budějovice, Netolická, 85 m2

Netolická, České Budějovice 2

6 150 000 Kč /za nemovitost HYPOTÉKA od 27 487 Kč /za měsíc
Prověřené firmy v Českých Budějovicích

Informace k bytu

Ve výhradním zastoupení vlastníka nabízíme k prodeji atypický rohový panelový byt velikosti 4+1 s balkonem umístěný v revitalizovaném panelovém bytovém domě na okraji sídliště Šumava v ulici Netolická v Českých Budějovicích.

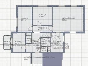
Celková plocha bytu 90m2, podlahová plocha bytu [84,6m2] + balkon [2,3m2] + větší sklep [3,0m2].
Bytová jednotka je v původním stavebně-technickém stavu (odpovídající roku výstavby 1984) bez provedení rekonstrukce či stavebních úprav, vyklizený a připravený k modernizaci. Okna plastová, bytový dům je částečně revitalizovaný, v plánu výměna výtahu.

Svým umístěným v okrajové části sídliště a nejvyšším patrem a dispozicí nabízí panoramatický výhled na město, dostupnost veškeré vybavenosti (doprava, obchody, školy…), když okna obytných místností a balkon jsou orientována mimo zástavbu sídliště.

Svým novým majitelům byt nabízí nadstandartní užitnou plochu bytu, atypickou / rohovou dispozici (původní řešení jako dvougenerační byt) prostorný obývací pokoj, neprůchozí pokoje, balkon na sever mimo zástavbu sídliště. V rámci rekonstrukce lze bez větších stavebních úprav změnit dispozici bytu, zvětšit koupelnu a využít a zvětšit úložné prostory bytu. Byt je kompletně vyklizený, připravený buď k nastěhování, nebo k modernizaci či rekonstrukci. Současní bytu je kuchyňská linka, elektrický sporák a vestavěné skříně. V bytě jsou osazena plastová okna. Orientace oken bytu (obytných místností) na sever, východ i západ.
Dispozice bytu: obývací pokoj [25,8m2], pokoj [12m2], pokoj [12,09m2], pokoj [8m2] s balkonem [2,25m2], kuchyně [8,2m2], prostorná předsíň [13,76m2], koupelna [2,8m2] a WC [1,0m2] a WC [1,0m2]. K bytu je k dispozici sklepní koje v 1.NP (technické podlaží – přízemí) domu o výměře [3,0m2]. Topení v bytě centrální / ústřední dálkové (radiátory), podružné měření spotřeby teplé a studené vody (vodoměry), samostatné měření spotřeby elektřiny (elektroměr). V bytě je možnost připojení internetu (Starnet) a STA.
Byt je po celou dobu ve vlastnictví jednoho majitele (rodiny), který v bytě bydlel (byt nebyl nikdy pronajatý).
Byt je umístěn v 9.nadzemním podlaží, poslední (8.obytné patro) bytového domu s výtahem, bytový dům je průběžně udržovaný. Kolaudace objektu proběhla v roce 1984, jsou pouze 2 byty na patře.
Energetická náročnost budovy / PENB v hodnotě [C].
Vlastnictví: bytová jednotka ve vlastnictví (osobní vlastnictví) zapsaná v katastru nemovitostí. Na nemovitosti (bytové jednotce) neváznou žádná věcná břemena hypotéka či exekuce, jiná práva třetích osob. Financování koupě lze řešit hypotékou čí úvěrem banky.
Veškerá občanská vybavenost včetně MHD je v dosahu, základní škola, školka, obchody, služby, banka v blízkosti. Parkování na parkovišti podél domu / v blízkosti domu.
Byt je k dispozici po dohodě ihned.
Aktuální cena uvedená shora je kompletní cenou včetně provize RK a majetkoprávního servisu spojeného s koupí nemovitosti.
Pro bližší informace a termíny prohlídky volejte makléře (Jindřich Dvořák, Dipl.Tech).
Nemovitost je nabízena výhradně v nabídce realitní kanceláře AD-REALITY České Budějovice.

Parametry bytu

Cena
6 150 000 Kč /za nemovitost Spočítat hypotéku
Aktualizováno
6. 10. 2025
Adresa
Netolická, České Budějovice 2
ID
AD-2732-2025
Stavba
Panelová
Stav objektu
Dobrý
Patro
9. z 9
Vybaveno
Částečně
Lokalita objektu
Sídliště
Vlastnictví
Osobní
Užitná plocha
85 m2
Podlahová plocha
90 m2
Třída energetické náročnosti
C - Úsporná
Elektřina
230V
Odpad
Veřejná kanalizace
Komunikace
Asfaltová
Telekomunikace
Internet
Doprava
Vlak, Dálnice, Silnice, MHD, Autobus
Voda
Vodovod
Topné těleso
Radiátory
Zdroj topení
Centrální dálkové
Zdroj teplé vody
Centrální dálkový ohřev
Balkon
Sklep
Výtah

Kontaktovat makléře

Realitní kancelář

AD reality CB

Dr. Stejskala 108/7, České Budějovice

Chystáte se prodat nemovitost?
Pomůžeme Vám!

Máte zájem o tento byt?

Tímto, v souladu s nařízením Evropského parlamentu a Rady (EU) 2016/679, v platném znění, prohlašuji, že mi je alespoň 16 let a uděluji tak svůj souhlas se zpracováním zadaných údajů (jméno, telefon, e-mail, ip adresa) společnosti B3 Technology, s.r.o., IČ: 07330600, se sídlem Novostavby 126/23, 435 11 Lom (správce dat), za účelem předání dotazu z tohoto formuláře Vámi vybranému inzerentovi a zpětného kontaktování mé osoby. Osobní údaje bude správce zpracovávat manuálně i automaticky přímo prostřednictvím svých zaměstnanců. Informace předané tímto formulářem budou uloženy v databázi správce maximálně po dobu 10 let. Odvolání souhlasu s uložením a zpracováním poskytnutých dat lze e-mailem na info@realitypro.eu. V případě podezření na neoprávněné použití Vámi poskytnutých údajů máte právo předat podnět k šetření Úřadu pro ochranu osobních údajů. Více informací
Chystáte se prodat nemovitost?
Pomůžeme Vám!

Inzerát si prohlédlo 29 lidí

Prodejce

Jindřich DVOŘÁK, Dipl.Tech.

Jindřich DVOŘÁK, Dipl.Tech.

Hlídací pes

Chcete dostávat emailem podobné nabídky prodeje bytů 4+1 v Českých Budějovicích?

Podobné nemovitosti