Prodej bytu 5+kk, Poděbrady, 138 m2 (ID: 2690973)

Poděbrady

10 899 000 Kč /za nemovitost HYPOTÉKA od 48 712 Kč /za měsíc

(včetně DPH)

Prověřené firmy v Poděbradech

Informace k bytu

Nabízíme atypický byt ihned k nastěhování s dispozicí 5+kk s terasou, vlastní zahradou a parkováním v bezprostřední blízkosti lázeňského města Poděbrady, v obci Písková Lhota.

Součástí příslušenství je parkovací stání ze zámkové dlažby pro osobní automobil, stejně tak přístupový chodník a terasa.

Byt v domě je nejen praktický, s velkým množstvím úložných prostor, úsporný, ale splňuje také všechny požadavky moderní architektury. Obytná plocha 138 m², navíc technická místnost, šatna, komora, plnohodnotné patro, prostě vše, co potřebujete k pohodlnému rodinnému životu. K dispozici je zahrada o výměře 465 m² s již realizovanou terasou vhodnou pro společně strávené chvíle na zahradě.

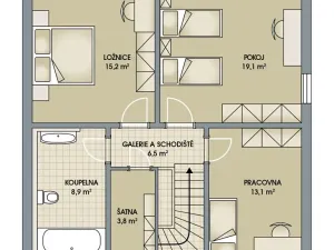
V přízemí naleznete vstupní halu, velkorysý obývací pokoj s kuchyňským koutem 34,9 m² s výstupem na terasu, pokoj pro hosty, koupelnu se sprchou a WC, hobby místnost a komoru. V patře jsou k dispozici další 2 pokoje, 1 ložnice, koupelna s vanou a WC a prostorná šatna.

Dům je koncipován v nízkoenergetickém standardu, který Vám zaručuje nízké náklady na vytápění a za uvedenou cenu je kompletně dokončen a připraven ihned k nastěhování.

V koupelnách jsou luxusní velkoformátové obklady a dlažby, zařizovací předměty značky Villeroy&Boch a GROHE, stejně tak nabízíme plovoucí vinylové podlahy, koberce ve vysokém standardu a elegantní bílé dveře značky Sapeli. Vytápění je řešeno úsporným otopným systémem včetně lokální rekuperační jednotky, v obývacím pokoji je umístěn krbový komín, který umožňuje nezávislé vytápění.

Cena je konečná včetně pozemku, provize a DPH.

Obec Písková Lhota u Poděbrad se nachází v těsné blízkosti lázeňského města Poděbrady s kompletní občanskou vybaveností (školy, školky, banky, pošta, obchody, zdravotnické služby, kulturní a sportovní zařízení, MHD). Domy se nachází v blízkosti nájezdu na dálnici D11, v Praze jste tak do 20minut. Pro milovníky přírody je tu řeka Labe, množství cyklostezek a písečné jezero jak na koupání, tak si zde přijdou na své i milovníci rybolovu.

Rádi a zdarma Vám zajistíme výhodný hypoteční úvěr s nejnižší úrokovou sazbou na trhu.
V případě zájmu nás neváhejte kontaktovat a my dáme vašemu životu místo.
Pro více informací navštivte naše webové stránky.

*fotografie jsou pouze informativní a může na nich být zobrazeno vybavení, které není předmětem prodeje

Parametry bytu

Cena
10 899 000 Kč /za nemovitost Spočítat hypotéku
Poznámka k ceně
včetně DPH
Aktualizováno
6. 10. 2025
Adresa
Poděbrady
ID
01465
Stavba
Cihlová
Stav objektu
Novostavba
Patro
1.
Vlastnictví
Osobní
Užitná plocha
138 m2
Třída energetické náročnosti
B - Velmi úsporná
Ukazatel energetické náročnosti
102 kWh/m2 za rok

Kontaktovat makléře

Máte zájem o tento byt?

Tímto, v souladu s nařízením Evropského parlamentu a Rady (EU) 2016/679, v platném znění, prohlašuji, že mi je alespoň 16 let a uděluji tak svůj souhlas se zpracováním zadaných údajů (jméno, telefon, e-mail, ip adresa) společnosti B3 Technology, s.r.o., IČ: 07330600, se sídlem Novostavby 126/23, 435 11 Lom (správce dat), za účelem předání dotazu z tohoto formuláře Vámi vybranému inzerentovi a zpětného kontaktování mé osoby. Osobní údaje bude správce zpracovávat manuálně i automaticky přímo prostřednictvím svých zaměstnanců. Informace předané tímto formulářem budou uloženy v databázi správce maximálně po dobu 10 let. Odvolání souhlasu s uložením a zpracováním poskytnutých dat lze e-mailem na info@realitypro.eu. V případě podezření na neoprávněné použití Vámi poskytnutých údajů máte právo předat podnět k šetření Úřadu pro ochranu osobních údajů. Více informací
Chystáte se prodat nemovitost?
Pomůžeme Vám!

Inzerát si prohlédlo 2 lidí

Prodejce

Ing. Adriana Čarnecká

Ing. Adriana Čarnecká

Hlídací pes

Chcete dostávat emailem podobné nabídky prodeje bytů 5+kk v Poděbradech?

Podobné nemovitosti