Prodej bytu 2+kk, Velešovice, 62 m2

Velešovice

6 499 000 Kč /za nemovitost HYPOTÉKA od 29 047 Kč /za měsíc

(včetně provize, včetně právního servisu)

Prověřené firmy v Velešovicích

Informace k bytu

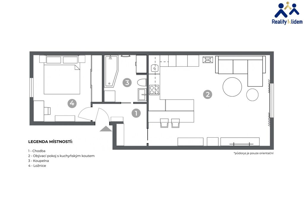
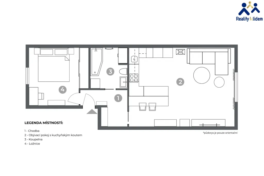
Rádi bychom vám představili tento útulný byt nacházející se v obci Velešovice.

Jedná se o byt o rozloze 62 m² podlahové plochy a komorou 4 m², který je umístěn na 1. nadzemním podlaží cihlového bytového domu.

Vyúčtování za služby z loňského roku je k dispozici k nahlédnutí.
V bytě jsou instalovány bezpečností dveře, plastová okna jsou vybavena žaluziemi a ochrannými sítěmi proti hmyzu.
Součástí obývacího pokoje je krásná, na míru zhotovená, kuchyňská linka s vestavnými spotřebiči. Myčka na nádobí, trouba, mikrovlnná trouba, indukční deska a lednička s mrazákem jsou vkusně zakomponovány do interiéru. Byt je vytápěn deskovými radiátory, v koupelně se nachází topný žebřík.
Byt je zařízený s vynilovými podlahami, moderní koupelnou a vestavnou skříní v ložnici a na chodbě.
Součástí prodeje je i podíl na společné zahradě za domem k bytu též náleží 2 parkovací místa v garáži pod domem.
V okolí je dostatek parkovacích stání pro návštěvy a pěší vzdálenost od veškeré občanské vybavenosti, obchodů, restaurací a škol.

Velešovice jsou klidná obec nacházející se v blízkosti Brna a Rousínova.
Současně Velešovice nabízí vše, co je potřeba k pohodlnému bydlení, mateřskou školu, praktického lékaře, poštu, dětská hřiště, sportoviště i výběh pro psy. V případě potřeby se lze pohodlně a rychle dostat do centra Brna.

Tato nabídka je ideální pro ty, kteří hledají moderní a pohodlné bydlení v klidné lokalitě s dobrou dostupností služeb.

Parametry bytu

Cena
6 499 000 Kč /za nemovitost Spočítat hypotéku
Poznámka k ceně
včetně provize, včetně právního servisu
Aktualizováno
24. 2. 2026
Adresa
Velešovice
ID
00179
Stavba
Cihlová
Stav objektu
Velmi dobrý
Patro
1. z 3
Vybaveno
Částečně
Druh objektu
Rohový
Lokalita objektu
Klidná část obce
Vlastnictví
Osobní
Užitná plocha
62 m2
Třída energetické náročnosti
C - Úsporná
Ukazatel energetické náročnosti
174 kWh/m2 za rok
Elektřina
230V
Plyn
Plynovod
Odpad
Veřejná kanalizace
Topení
Ústřední plynové
Komunikace
Dlážděná, Asfaltová
Telekomunikace
Internet
Doprava
Dálnice, Silnice, MHD, Autobus
Voda
Vodovod
Garáž
Sklep
Výtah

Kontaktovat makléře

Máte zájem o tento byt?

Tímto, v souladu s nařízením Evropského parlamentu a Rady (EU) 2016/679, v platném znění, prohlašuji, že mi je alespoň 16 let a uděluji tak svůj souhlas se zpracováním zadaných údajů (jméno, telefon, e-mail, ip adresa) společnosti B3 Technology, s.r.o., IČ: 07330600, se sídlem Novostavby 126/23, 435 11 Lom (správce dat), za účelem předání dotazu z tohoto formuláře Vámi vybranému inzerentovi a zpětného kontaktování mé osoby. Osobní údaje bude správce zpracovávat manuálně i automaticky přímo prostřednictvím svých zaměstnanců. Informace předané tímto formulářem budou uloženy v databázi správce maximálně po dobu 10 let. Odvolání souhlasu s uložením a zpracováním poskytnutých dat lze e-mailem na info@realitypro.eu. V případě podezření na neoprávněné použití Vámi poskytnutých údajů máte právo předat podnět k šetření Úřadu pro ochranu osobních údajů. Více informací
Chystáte se prodat nemovitost?
Pomůžeme Vám!

Inzerát si prohlédlo 25 lidí

Prodejce

Irena Kotolanová

Irena Kotolanová

Hlídací pes

Chcete dostávat emailem podobné nabídky prodeje bytů 2+kk v Velešovicích?

Podobné nemovitosti