Pronájem bytu 2+kk, Tursko, Krátká, 60 m2

Krátká, Tursko

20 000 Kč /za měsíc Získejte výhodnou HYPOTÉKU

(vratná jistota, náklady na bydlení 4788 Kč v ceně i internet a parkování, poplatek za podná)

Prověřené firmy v Tursku

Informace k bytu

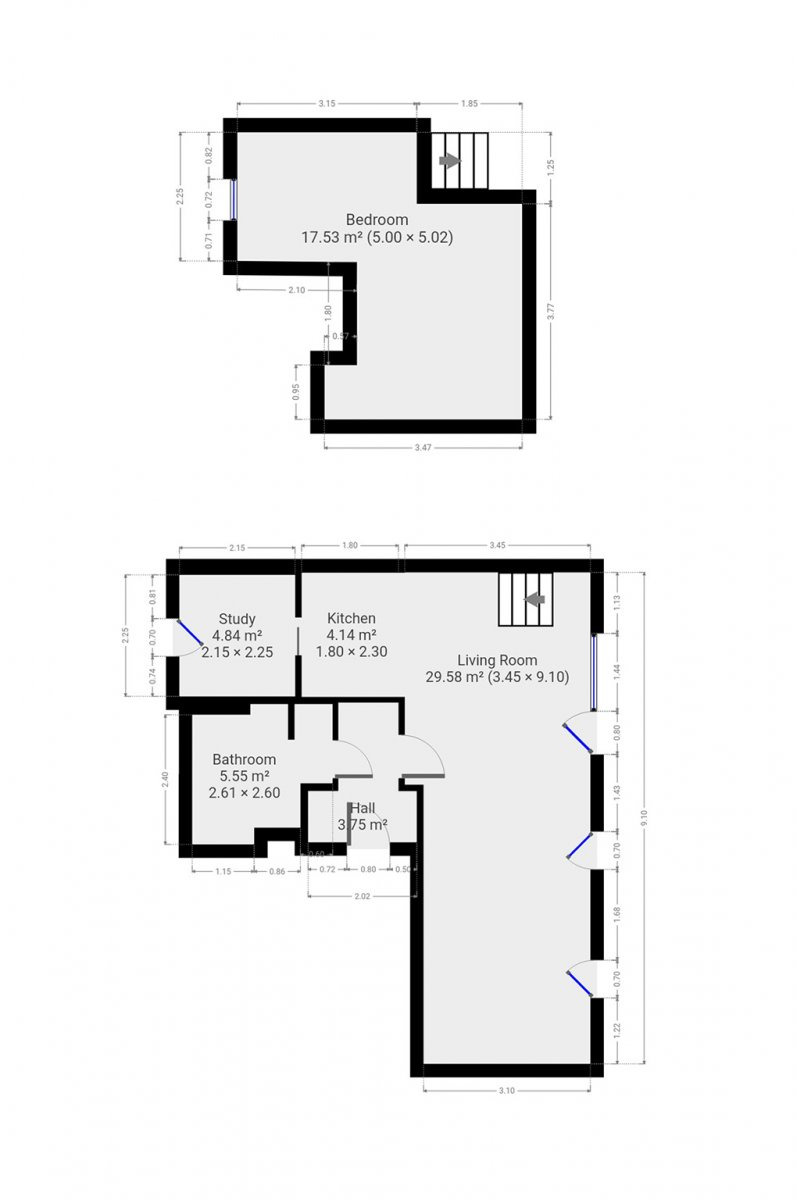
K dlouhodobému podnájmu nabízíme luxusní loftový byt o dispozici 2+kk v novém projektu U Turkského rybníka. Byt o celkové výměře 60 m2 se nachází ve třetím patře cihlové novostavby. K bytu navíc patří i parkovací stání. Okna bytu jsou směřovaná na jihozápad.

Byt se nabízí nadstandardně vybavený, disponuje chytrou domácností a vyhřívanými podlahami. Na oknech jsou elektrické rolety. V kuchyni najdeme lednici, elektrickou troubu, varnou desku, mikrovlnnou troubu a digestoř. Obývací prostor je zařízen jídelním stolem s židlemi, pohovkou, televizní stěnou a televizí. V prvním patře je i útulná pracovna s pracovním stolem, židlí a komodou. V prvním patře najdeme moderní koupelnu s vanou, umyvadlem, pračkou se sušičkou a toaletou, která má vyhřívané prkénko. Součástí druhého patra je ložnice - zde se nachází postel a příjemné posezení s kobercem.

Byt je lokalitou ve městě Tursko - pár minut od Prahy. V blízkosti najdeme Turský rybník, obchod s potravinami, zákaladní školu atd. Skvělá dopravní dostupnost - autobusem 15 minut na metro Bořislavka.

Byt je volný k nastěhování od 1.4 2025. Domácí mazlíčci jsou možní po domluvě s majitelem. Internet je v ceně.

Uvedena energetická kategorie G, jelikož nemáme k dispozici PENB.

Byt pronajímá Ideální nájemce - služba, se kterou budete bydlet bezstarostně a za férových podmínek. Když se něco přihodí, k dispozici jsou správci, kteří s vámi vše vyřeší. Pomůžeme s veškerou administrativou, s nastavením plateb a zajistíme vám speciální pojištění. Pojďte bydlet s námi!
_____________

Najděte bydlení bezkontaktně díky virtuální prohlídce a elektronickým podpisům.

Zavázali jsme se, že budeme z pronajímání dělat bezstarostnou záležitost, a svému slibu chceme dostát i v této nelehké situaci. Proto vám nabízíme možnost najít dlouhodobý pronájem bezpečně a bezkontaktně. Osobní či virtuální prohlídku bytu si u nás zarezervujete online a všechny dokumenty podepíšeme elektronicky. S jakýmkoliv dotazem vám pomůže naše posílené oddělení klientské podpory.

Parametry bytu

Cena
20 000 Kč /za měsíc
Poznámka k ceně
vratná jistota, náklady na bydlení 4788 Kč v ceně i internet a parkování, poplatek za podná
Aktualizováno
1. 10. 2025
Adresa
Krátká, Tursko
ID
N2776
Stavba
Cihlová
Stav objektu
Novostavba
Patro
3. z 3
Vybaveno
Ano
Typ objektu
Patrový
Lokalita objektu
Klidná část obce
Vlastnictví
Osobní
Užitná plocha
60 m2
Podlahová plocha
60 m2
Elektřina
230V
Topení
Ústřední dálkové
Telekomunikace
Internet
Výtah
Parkování

Kontaktovat makléře

Máte zájem o tento byt?

Tímto, v souladu s nařízením Evropského parlamentu a Rady (EU) 2016/679, v platném znění, prohlašuji, že mi je alespoň 16 let a uděluji tak svůj souhlas se zpracováním zadaných údajů (jméno, telefon, e-mail, ip adresa) společnosti B3 Technology, s.r.o., IČ: 07330600, se sídlem Novostavby 126/23, 435 11 Lom (správce dat), za účelem předání dotazu z tohoto formuláře Vámi vybranému inzerentovi a zpětného kontaktování mé osoby. Osobní údaje bude správce zpracovávat manuálně i automaticky přímo prostřednictvím svých zaměstnanců. Informace předané tímto formulářem budou uloženy v databázi správce maximálně po dobu 10 let. Odvolání souhlasu s uložením a zpracováním poskytnutých dat lze e-mailem na info@realitypro.eu. V případě podezření na neoprávněné použití Vámi poskytnutých údajů máte právo předat podnět k šetření Úřadu pro ochranu osobních údajů. Více informací
Chystáte se prodat nemovitost?
Pomůžeme Vám!

Inzerát si prohlédlo 2 lidí

Prodejce

Miloslava Kačerová

Miloslava Kačerová

Hlídací pes

Chcete dostávat emailem podobné nabídky pronájmu bytů 2+kk v Tursku?

Podobné nemovitosti